Mauruse Maja ärihoones on vabanemas suur kaubanduspind koos laoga.
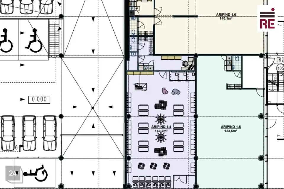
Üürile on anda 1. korruse äripind suurusega 442m². Pind on väga hästi nähtav Tammsaare tee poolt liiklejatele tänu suurtele vitriinakendele. Lisaks on võimalik üürida kõrvalasuvad 186m2 suurused laoruumid.
Ruumides on ka väike kontor, kus on üks kabinet, nõupidamisruum, puhkeruum kööginurga valmidusega, tualett, duširuum ja koristajaruum/panipaik.
Korruse plaan on leitav piltide galeriis.
A.H. Tammsaare teel asuv Mauruse Maja on 8-korruseline hoone, milles paiknevad:
- 6870m² büroopinda 5. - 8. korrusel;
- 900m² äripinda 1. korrusel;
- 420 kohaga parkimismaja 1.-5. korrusel
- 100 kohaga väliparkla hoone ees.
Hoone energiaklass on A, mis tähendab soodsaid kõrvalkulusid.
Hoone fassaadile saab paigutada üürniku logo ja reklaami ning muuta seeläbi asukohta veel nähtavamaks.
Hoone on hästi ligipääsetav ühistranspordiga - bussipeatused on hoone ees. Vahetus läheduses paikneb Mustamäe Keskus, Apollo kino, Mustika Keskus, Magistrali Keskus.
Üürihinnale lisanduvad kõrvalkulud ja käibemaks.
Pakkumine on vahendustasuta.
Kui soovite rohkem infot, siis palun võtke minuga ühendust.
Kõiki äripindade pakkumisi Mauruse Majas saab vaadata siin: https://re.ee/projektid/aripinnad/buroopinnad-arihooned/mauruse-maja-a-h-tammsaare-tee-92/
RE Kinnisvara AS on tegutsenud 1995. aastast, olles üks vanimaid Eesti kinnisvaraettevõtteid.
Pakume kinnisvaraga seotud täisteenust:
- äri- ja elamispindade maaklerteenus
- kinnisvara hindamine laenu tagatiseks, sh kohtutele, finantsaruandluseks jne.
- äri- ja elukondlike arendusprojektide müügikorraldus
- kinnisvaraturu ja -projektide analüüs ja konsultatsioon
- kinnisvara seadustamine
Teeme koostööd kõigi Eesti pankade ja finantsasutustega. Meie eksperthinnangud on aktsepteeritud kõigi Eestis tegutsevate krediidiasutuste poolt.
Tutvu lähemalt re.ee.
RE Kinnisvara AS – PARIM OSA KINNISVARAST
Helista 66 88 666 või saada e-mail ***@***.ee
https://facebook.com/re.kinnisvara
https://www.instagram.com/rekinnisvara/
https://ee.linkedin.com/company/re-kinnisvara
Üürile on anda 1. korruse äripind suurusega 442m². Pind on väga hästi nähtav Tammsaare tee poolt liiklejatele tänu suurtele vitriinakendele. Lisaks on võimalik üürida kõrvalasuvad 186m2 suurused laoruumid.
Ruumides on ka väike kontor, kus on üks kabinet, nõupidamisruum, puhkeruum kööginurga valmidusega, tualett, duširuum ja koristajaruum/panipaik.
Korruse plaan on leitav piltide galeriis.
A.H. Tammsaare teel asuv Mauruse Maja on 8-korruseline hoone, milles paiknevad:
- 6870m² büroopinda 5. - 8. korrusel;
- 900m² äripinda 1. korrusel;
- 420 kohaga parkimismaja 1.-5. korrusel
- 100 kohaga väliparkla hoone ees.
Hoone energiaklass on A, mis tähendab soodsaid kõrvalkulusid.
Hoone fassaadile saab paigutada üürniku logo ja reklaami ning muuta seeläbi asukohta veel nähtavamaks.
Hoone on hästi ligipääsetav ühistranspordiga - bussipeatused on hoone ees. Vahetus läheduses paikneb Mustamäe Keskus, Apollo kino, Mustika Keskus, Magistrali Keskus.
Üürihinnale lisanduvad kõrvalkulud ja käibemaks.
Pakkumine on vahendustasuta.
Kui soovite rohkem infot, siis palun võtke minuga ühendust.
Kõiki äripindade pakkumisi Mauruse Majas saab vaadata siin: https://re.ee/projektid/aripinnad/buroopinnad-arihooned/mauruse-maja-a-h-tammsaare-tee-92/
RE Kinnisvara AS on tegutsenud 1995. aastast, olles üks vanimaid Eesti kinnisvaraettevõtteid.
Pakume kinnisvaraga seotud täisteenust:
- äri- ja elamispindade maaklerteenus
- kinnisvara hindamine laenu tagatiseks, sh kohtutele, finantsaruandluseks jne.
- äri- ja elukondlike arendusprojektide müügikorraldus
- kinnisvaraturu ja -projektide analüüs ja konsultatsioon
- kinnisvara seadustamine
Teeme koostööd kõigi Eesti pankade ja finantsasutustega. Meie eksperthinnangud on aktsepteeritud kõigi Eestis tegutsevate krediidiasutuste poolt.
Tutvu lähemalt re.ee.
RE Kinnisvara AS – PARIM OSA KINNISVARAST
Helista 66 88 666 või saada e-mail ***@***.ee
https://facebook.com/re.kinnisvara
https://www.instagram.com/rekinnisvara/
https://ee.linkedin.com/company/re-kinnisvara






















