Jõesuu tee 6 aadressil on 2022. aastal valminud büroohoone Pirita jõe ja Pirita männimetsa vahel. Seda väärtust näitavad ka üüripinnalt avanevad kaunid vaated Pirita Jahisadamale ning männimetsale. Tegemist on modernse hoonega, mille autoriks on hinnatud KOKO arhitektid.
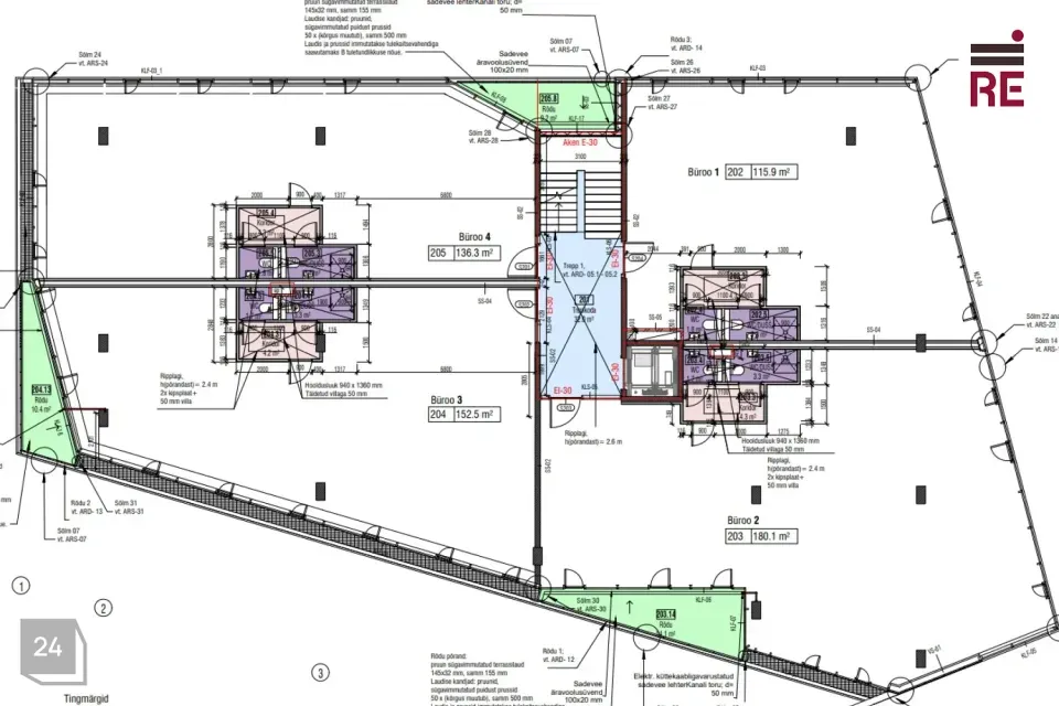
Büroo paikneb 2. korrusel ja on suurusega 152,5m2.
Pind on hetkel avatud alana, aga koosolekuruum ja/või kabineti juurde ehitada.
Ruumides on tualett ja pesemisruum ning köögivalmidus. Lisaks 10,4 m2 rõdu.
Korruse plaan on leitav galeriist.
Hoone on kolmekorruseline, millest esimesel asub suurem fuajee, olemas on ka lift.
Hoones on veel pakkuda ruume vahemikus 152-180m2.
Ruumid on avarad ja valgusküllased, lagede kõrgus 3 meetrit. Igal bürool on oma privaatne rõdu, kus saab puhata ja nautida imelisi vaateid mere ja metsa suunas.
Hoone maa-aluses küttega parklas on 17 kohta ja maja ees on kolm parkimiskohta hoone külalistele. Lisaks on vaid minutilise jalutuskäigu kaugusel parkimisalad, kuhu saavad mugavalt parkida nii töötajad kui ka külalised.
Maja kütte- ja jahutussüsteem baseerub kulusäästlikul vaiadel maaküttel/-jahutusel. Hoones on kaasaegne sundventilatsioon ja jahutus. Olemas tänapäevased side- ja läbipääsulahendused.
Üürnikele on tagatud sissepääs 24/7. Turvalisust lisab hoonet ümbritsev videovalve.
Büroohoone asub logistiliselt väga heas asukohas - kesklinna vaid 6 km ja hoone lähistel asub bussipeatus Pirita. Ainulaadne võimalus tulla kontorisse mööda merd, parkides oma aluse Pirita Jahisadamasse. Ümbruses on mitmed söögikohad, Pirita Keskus, Pirita Marina Hotel & Spa.
Üürihinnale lisanduvad kõrvalkulud ning käibemaks.
Pakkumine on teile vahendustasuta!
Vaata Jõesuu tee 6 kõiki üüripakkumisi siit: https://re.ee/kinnisvaraprojekt/aripinnad/buroopinnad-arihooned/joesuu-tee-6/
Olete oodatud hoonega tutvuma. Palun võtke ühendust, leiame teile sobivaima lahenduse!
RE Kinnisvara AS on tegutsenud 1995. aastast, olles üks vanimaid Eesti kinnisvaraettevõtteid.
Pakume kinnisvaraga seotud täisteenust:
- äri- ja elamispindade maaklerteenus
- kinnisvara hindamine laenu tagatiseks, sh kohtutele, finantsaruandluseks jne.
- äri- ja elukondlike arendusprojektide müügikorraldus
- kinnisvaraturu ja -projektide analüüs ja konsultatsioon
- kinnisvara seadustamine
Teeme koostööd kõigi Eesti pankade ja finantsasutustega. Meie eksperthinnangud on aktsepteeritud kõigi Eestis tegutsevate krediidiasutuste poolt.
Tutvu lähemalt re.ee.
RE Kinnisvara AS – PARIM OSA KINNISVARAST
Helista 66 88 666 või saada e-mail ***@***.ee
https://facebook.com/re.kinnisvara
https://www.instagram.com/rekinnisvara/
https://ee.linkedin.com/company/re-kinnisvara
Büroo paikneb 2. korrusel ja on suurusega 152,5m2.
Pind on hetkel avatud alana, aga koosolekuruum ja/või kabineti juurde ehitada.
Ruumides on tualett ja pesemisruum ning köögivalmidus. Lisaks 10,4 m2 rõdu.
Korruse plaan on leitav galeriist.
Hoone on kolmekorruseline, millest esimesel asub suurem fuajee, olemas on ka lift.
Hoones on veel pakkuda ruume vahemikus 152-180m2.
Ruumid on avarad ja valgusküllased, lagede kõrgus 3 meetrit. Igal bürool on oma privaatne rõdu, kus saab puhata ja nautida imelisi vaateid mere ja metsa suunas.
Hoone maa-aluses küttega parklas on 17 kohta ja maja ees on kolm parkimiskohta hoone külalistele. Lisaks on vaid minutilise jalutuskäigu kaugusel parkimisalad, kuhu saavad mugavalt parkida nii töötajad kui ka külalised.
Maja kütte- ja jahutussüsteem baseerub kulusäästlikul vaiadel maaküttel/-jahutusel. Hoones on kaasaegne sundventilatsioon ja jahutus. Olemas tänapäevased side- ja läbipääsulahendused.
Üürnikele on tagatud sissepääs 24/7. Turvalisust lisab hoonet ümbritsev videovalve.
Büroohoone asub logistiliselt väga heas asukohas - kesklinna vaid 6 km ja hoone lähistel asub bussipeatus Pirita. Ainulaadne võimalus tulla kontorisse mööda merd, parkides oma aluse Pirita Jahisadamasse. Ümbruses on mitmed söögikohad, Pirita Keskus, Pirita Marina Hotel & Spa.
Üürihinnale lisanduvad kõrvalkulud ning käibemaks.
Pakkumine on teile vahendustasuta!
Vaata Jõesuu tee 6 kõiki üüripakkumisi siit: https://re.ee/kinnisvaraprojekt/aripinnad/buroopinnad-arihooned/joesuu-tee-6/
Olete oodatud hoonega tutvuma. Palun võtke ühendust, leiame teile sobivaima lahenduse!
RE Kinnisvara AS on tegutsenud 1995. aastast, olles üks vanimaid Eesti kinnisvaraettevõtteid.
Pakume kinnisvaraga seotud täisteenust:
- äri- ja elamispindade maaklerteenus
- kinnisvara hindamine laenu tagatiseks, sh kohtutele, finantsaruandluseks jne.
- äri- ja elukondlike arendusprojektide müügikorraldus
- kinnisvaraturu ja -projektide analüüs ja konsultatsioon
- kinnisvara seadustamine
Teeme koostööd kõigi Eesti pankade ja finantsasutustega. Meie eksperthinnangud on aktsepteeritud kõigi Eestis tegutsevate krediidiasutuste poolt.
Tutvu lähemalt re.ee.
RE Kinnisvara AS – PARIM OSA KINNISVARAST
Helista 66 88 666 või saada e-mail ***@***.ee
https://facebook.com/re.kinnisvara
https://www.instagram.com/rekinnisvara/
https://ee.linkedin.com/company/re-kinnisvara





















