Üürile anda büroo Tallinna Teaduspargis Tehnopol paiknevas ärihoones Tehnopol 1.
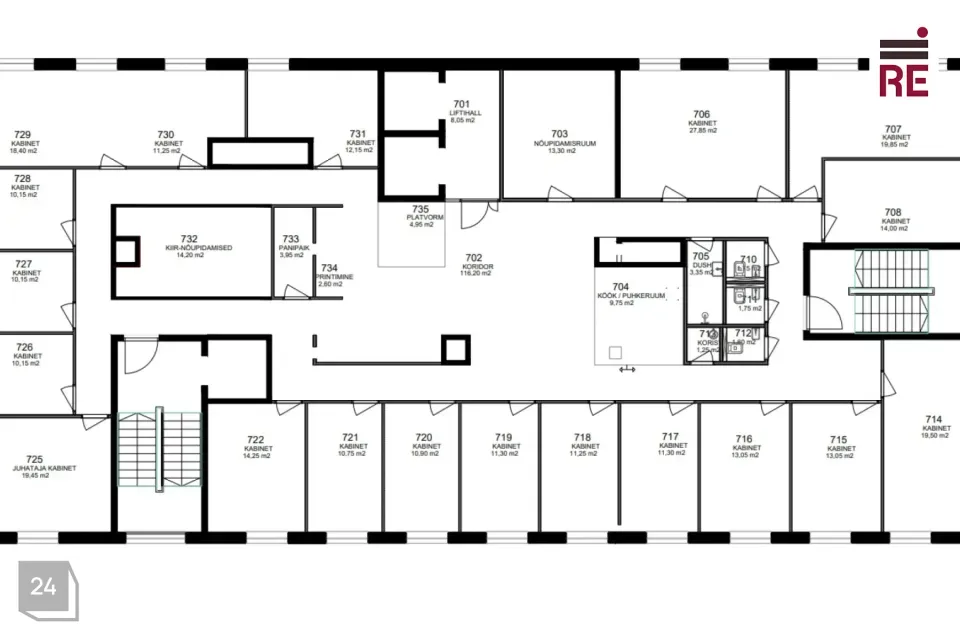
Ruumid asuvad hoone 7. korrusel, plaan on leitav piltide galeriis.
Ruumid jagatud valdavalt väikesteks 1-2 inimese kabinettideks, lisaks mõned suuremad 2-3 inimese kabinetid ja kaks nõupidamisruumi.
Loomulikult puhkeala koos köögimööbli ja -tehnikaga, tualetid, koristajaruum, panipaik ja pesemisruum.
Kokku töökohti ca 30 inimese jaoks.
Tallinna Teaduspark Tehnopol on Tallinna Tehnikaülikooli naabruses paiknev teadus- ja ärilinnak, mille eesmärk on edendada Eestis tehnoloogiapõhist ettevõtlust, tuua kokku teadlased ja ettevõtjad ning pakkuda sobivaid tingimusi ja keskkonda läbimurdeliste äriideede elluviimiseks.
2012. aastal ehitatud kaasaegne ja kõrge kvaliteediga äri- ja büroohoone Tehnopol 1 on suunatud info- ja kommunikatsioonitehnoloogia ja Tehnopoli piirkonnas teenuseid pakkuvatele ettevõtetele. Hoones tegutseb ka alustavatele ettevõtetele mõeldud äriinkubaator – Startup Inkubaator, kus oma äri kasvatavad ligi 20 alustavat tehnoloogiaettevõtet.
Hoones asuvad lõunarestoran Mets ja Aatomiku lastehoid.
Hoonega külgnevad ruumikad väliparklad, kus parkimine on tasuta. Võimalik on üürida parkimiskohti hoone aluses garaažis.
Ruumide üürile võtmine on vahendustasuta.
Üürihinnale lisanduvad kõrvalkulud ja käibemaks.
Kui soovite ruume vaadata või rohkem infot, siis palun võtke ühendust.
Rohkem pakkumisi Tallinna Teaduspargi Tehnopol hoonetes on leitavad siin.
Uus hoone Tehnopol 3 (2022) Mäealuse 2/4 - https://re.ee/kinnisvaraprojekt/aripinnad/buroopinnad-arihooned/maealuse-2-4
Tehnopol 2 (2017) Mäealuse 2/3 - https://re.ee/kinnisvaraprojekt/aripinnad/buroopinnad-arihooned/tehnopol-2-buroohoone/
Tehnpol 1 (2012) Mäealuse 2/1 - https://re.ee/kinnisvaraprojekt/aripinnad/buroopinnad-arihooned/tehnopol-1-maealuse-21/
RE Kinnisvara AS on tegutsenud 1995. aastast, olles üks vanimaid Eesti kinnisvaraettevõtteid.
Pakume kinnisvaraga seotud täisteenust:
- äri- ja elamispindade maaklerteenus
- kinnisvara hindamine laenu tagatiseks, sh kohtutele, finantsaruandluseks jne.
- äri- ja elukondlike arendusprojektide müügikorraldus
- kinnisvaraturu ja -projektide analüüs ja konsultatsioon
- kinnisvara seadustamine
Teeme koostööd kõigi Eesti pankade ja finantsasutustega. Meie eksperthinnangud on aktsepteeritud kõigi Eestis tegutsevate krediidiasutuste poolt.
Tutvu lähemalt re.ee.
RE Kinnisvara AS – PARIM OSA KINNISVARAST
Helista 66 88 666 või saada e-mail ***@***.ee
https://facebook.com/re.kinnisvara
https://www.instagram.com/rekinnisvara/
https://ee.linkedin.com/company/re-kinnisvara
Ruumid asuvad hoone 7. korrusel, plaan on leitav piltide galeriis.
Ruumid jagatud valdavalt väikesteks 1-2 inimese kabinettideks, lisaks mõned suuremad 2-3 inimese kabinetid ja kaks nõupidamisruumi.
Loomulikult puhkeala koos köögimööbli ja -tehnikaga, tualetid, koristajaruum, panipaik ja pesemisruum.
Kokku töökohti ca 30 inimese jaoks.
Tallinna Teaduspark Tehnopol on Tallinna Tehnikaülikooli naabruses paiknev teadus- ja ärilinnak, mille eesmärk on edendada Eestis tehnoloogiapõhist ettevõtlust, tuua kokku teadlased ja ettevõtjad ning pakkuda sobivaid tingimusi ja keskkonda läbimurdeliste äriideede elluviimiseks.
2012. aastal ehitatud kaasaegne ja kõrge kvaliteediga äri- ja büroohoone Tehnopol 1 on suunatud info- ja kommunikatsioonitehnoloogia ja Tehnopoli piirkonnas teenuseid pakkuvatele ettevõtetele. Hoones tegutseb ka alustavatele ettevõtetele mõeldud äriinkubaator – Startup Inkubaator, kus oma äri kasvatavad ligi 20 alustavat tehnoloogiaettevõtet.
Hoones asuvad lõunarestoran Mets ja Aatomiku lastehoid.
Hoonega külgnevad ruumikad väliparklad, kus parkimine on tasuta. Võimalik on üürida parkimiskohti hoone aluses garaažis.
Ruumide üürile võtmine on vahendustasuta.
Üürihinnale lisanduvad kõrvalkulud ja käibemaks.
Kui soovite ruume vaadata või rohkem infot, siis palun võtke ühendust.
Rohkem pakkumisi Tallinna Teaduspargi Tehnopol hoonetes on leitavad siin.
Uus hoone Tehnopol 3 (2022) Mäealuse 2/4 - https://re.ee/kinnisvaraprojekt/aripinnad/buroopinnad-arihooned/maealuse-2-4
Tehnopol 2 (2017) Mäealuse 2/3 - https://re.ee/kinnisvaraprojekt/aripinnad/buroopinnad-arihooned/tehnopol-2-buroohoone/
Tehnpol 1 (2012) Mäealuse 2/1 - https://re.ee/kinnisvaraprojekt/aripinnad/buroopinnad-arihooned/tehnopol-1-maealuse-21/
RE Kinnisvara AS on tegutsenud 1995. aastast, olles üks vanimaid Eesti kinnisvaraettevõtteid.
Pakume kinnisvaraga seotud täisteenust:
- äri- ja elamispindade maaklerteenus
- kinnisvara hindamine laenu tagatiseks, sh kohtutele, finantsaruandluseks jne.
- äri- ja elukondlike arendusprojektide müügikorraldus
- kinnisvaraturu ja -projektide analüüs ja konsultatsioon
- kinnisvara seadustamine
Teeme koostööd kõigi Eesti pankade ja finantsasutustega. Meie eksperthinnangud on aktsepteeritud kõigi Eestis tegutsevate krediidiasutuste poolt.
Tutvu lähemalt re.ee.
RE Kinnisvara AS – PARIM OSA KINNISVARAST
Helista 66 88 666 või saada e-mail ***@***.ee
https://facebook.com/re.kinnisvara
https://www.instagram.com/rekinnisvara/
https://ee.linkedin.com/company/re-kinnisvara




















