2023.a alguses valmis Tallinna Teaduspargis Tehnopol uus büroohoone.
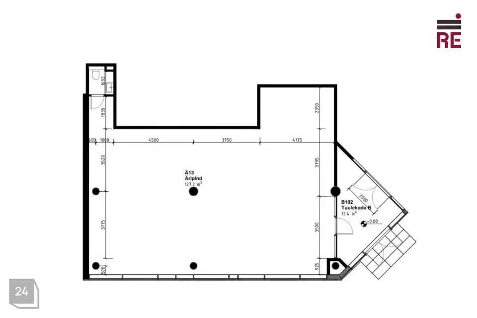
Hoone 1. korrusel on pakkuda 127,2 m² suurune äripind. Ruumil on suured vitriinaknad ja asub suure fuajee kõrval. Pakutava ruumi Ä13 plaan on leitav piltide galeriis.
Tallinna Teaduspark Tehnopol on Tallinna Tehnikaülikooli naabruses paiknev teadus- ja ärilinnak, mille eesmärk on edendada Eestis tehnoloogiapõhist ettevõtlust, tuua kokku teadlased ja ettevõtjad ning pakkuda sobivaid tingimusi ja keskkonda läbimurdeliste äriideede elluviimiseks.
Mäealuse 2-4 büroohoones on ca 12 000m² üüritavat büroopinda, sealjuures:
ca 479m² 8. korrusel;
ca 3148m² 7. korrusel;
ca 1702m² 3.-6. korrusel;
ca 1577m² 2. korrusel.
Hoone keldrikorrusel ja 1.-6. korrusel paikneb parkimismaja, milles on kokku ca 600 parkimiskohta.
Mäealuse 2-4 kinnistule rajatud ärihoone moodustab tervikliku ärikvartali varasemalt valminud hoonetega, millede üürnikud on valdavalt IT- ettevõtted:
Mäealuse 2-1 büroohoone valmis 2012. aastal ja selle üürnikud on Cybernetica, BCS Itera, Eliko Tehnoloogia Arenduskeskus, Girf, GoSwift jpt. Hoones tegutseb Tegutseb Tehnopol Startup Inkubaator.
Mäealuse 2-2 ja 2-3 büroohooned valmisid 2017. aastal. Hoonete üürnikeks on SMIT (Siseministeeriumi infotehnoloogia ja arenduskeskus), Tööinspektsioon, Proact Estonia jpt.
Ruumide üürile võtmine on vahendustasuta.
Üürihinnale lisanduvad kõrvalkulud ja käibemaks.
Tutvuge teiste pakkumistega siin: https://re.ee/projektid/aripinnad/buroopinnad-arihooned/maealuse-2-4/
Loe lähemalt Tehnopol 3 kohta kodulehelt: https://tehnopol.re.ee/
Kui soovite hoone kohta rohkem infot, siis palun võtke ühendust.
RE Kinnisvara AS on tegutsenud 1995. aastast, olles üks vanimaid Eesti kinnisvaraettevõtteid.
Pakume kinnisvaraga seotud täisteenust:
- äri- ja elamispindade maaklerteenus
- kinnisvara hindamine laenu tagatiseks, sh kohtutele, finantsaruandluseks jne.
- äri- ja elukondlike arendusprojektide müügikorraldus
- kinnisvaraturu ja -projektide analüüs ja konsultatsioon
- kinnisvara seadustamine
Teeme koostööd kõigi Eesti pankade ja finantsasutustega. Meie eksperthinnangud on aktsepteeritud kõigi Eestis tegutsevate krediidiasutuste poolt.
Tutvu lähemalt re.ee.
RE Kinnisvara AS – PARIM OSA KINNISVARAST
Helista 66 88 666 või saada e-mail ***@***.ee
https://facebook.com/re.kinnisvara
https://www.instagram.com/rekinnisvara/
https://ee.linkedin.com/company/re-kinnisvara
Hoone 1. korrusel on pakkuda 127,2 m² suurune äripind. Ruumil on suured vitriinaknad ja asub suure fuajee kõrval. Pakutava ruumi Ä13 plaan on leitav piltide galeriis.
Tallinna Teaduspark Tehnopol on Tallinna Tehnikaülikooli naabruses paiknev teadus- ja ärilinnak, mille eesmärk on edendada Eestis tehnoloogiapõhist ettevõtlust, tuua kokku teadlased ja ettevõtjad ning pakkuda sobivaid tingimusi ja keskkonda läbimurdeliste äriideede elluviimiseks.
Mäealuse 2-4 büroohoones on ca 12 000m² üüritavat büroopinda, sealjuures:
ca 479m² 8. korrusel;
ca 3148m² 7. korrusel;
ca 1702m² 3.-6. korrusel;
ca 1577m² 2. korrusel.
Hoone keldrikorrusel ja 1.-6. korrusel paikneb parkimismaja, milles on kokku ca 600 parkimiskohta.
Mäealuse 2-4 kinnistule rajatud ärihoone moodustab tervikliku ärikvartali varasemalt valminud hoonetega, millede üürnikud on valdavalt IT- ettevõtted:
Mäealuse 2-1 büroohoone valmis 2012. aastal ja selle üürnikud on Cybernetica, BCS Itera, Eliko Tehnoloogia Arenduskeskus, Girf, GoSwift jpt. Hoones tegutseb Tegutseb Tehnopol Startup Inkubaator.
Mäealuse 2-2 ja 2-3 büroohooned valmisid 2017. aastal. Hoonete üürnikeks on SMIT (Siseministeeriumi infotehnoloogia ja arenduskeskus), Tööinspektsioon, Proact Estonia jpt.
Ruumide üürile võtmine on vahendustasuta.
Üürihinnale lisanduvad kõrvalkulud ja käibemaks.
Tutvuge teiste pakkumistega siin: https://re.ee/projektid/aripinnad/buroopinnad-arihooned/maealuse-2-4/
Loe lähemalt Tehnopol 3 kohta kodulehelt: https://tehnopol.re.ee/
Kui soovite hoone kohta rohkem infot, siis palun võtke ühendust.
RE Kinnisvara AS on tegutsenud 1995. aastast, olles üks vanimaid Eesti kinnisvaraettevõtteid.
Pakume kinnisvaraga seotud täisteenust:
- äri- ja elamispindade maaklerteenus
- kinnisvara hindamine laenu tagatiseks, sh kohtutele, finantsaruandluseks jne.
- äri- ja elukondlike arendusprojektide müügikorraldus
- kinnisvaraturu ja -projektide analüüs ja konsultatsioon
- kinnisvara seadustamine
Teeme koostööd kõigi Eesti pankade ja finantsasutustega. Meie eksperthinnangud on aktsepteeritud kõigi Eestis tegutsevate krediidiasutuste poolt.
Tutvu lähemalt re.ee.
RE Kinnisvara AS – PARIM OSA KINNISVARAST
Helista 66 88 666 või saada e-mail ***@***.ee
https://facebook.com/re.kinnisvara
https://www.instagram.com/rekinnisvara/
https://ee.linkedin.com/company/re-kinnisvara















