Üürile anda Põhja-Tallinnas Niine tänaval kõrge laega äripind suuruses 183,8 m²
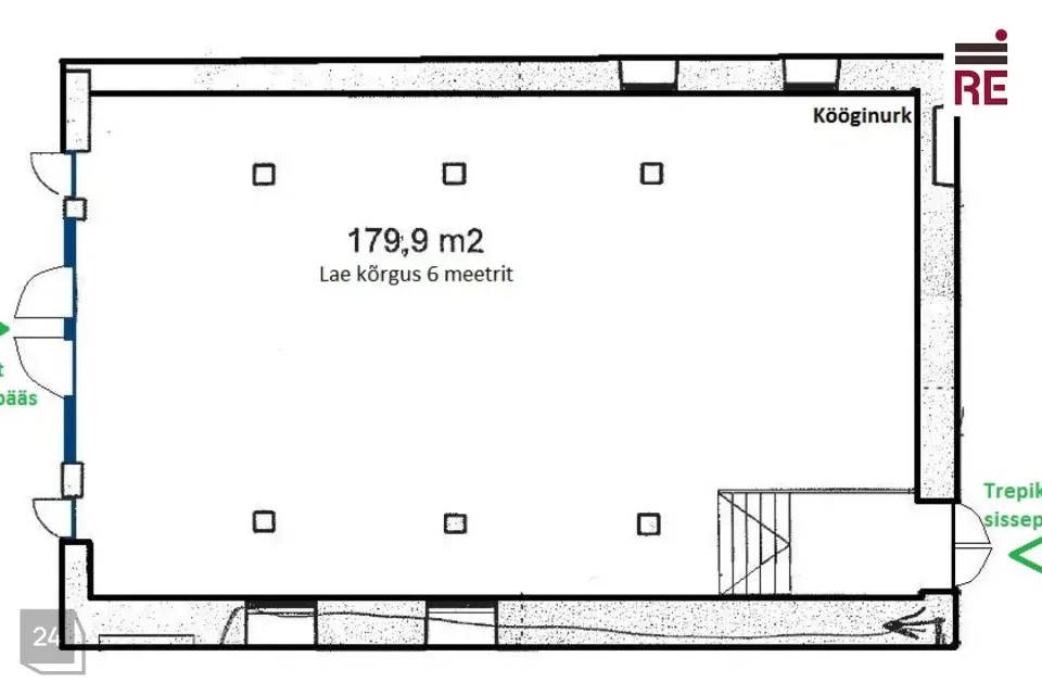
Üüripind koosneb ühest suurest avatud planeeringuga ja kõrgest ruumist.
Olemas on sundventilatsioon, kaasaegne küttesüsteem ja eraldi sissepääs hoovist kui ka peatrepikojast. Ruumides on ka olemas veeühendus, valmidus kööginurga paigaldamiseks.
Tänu heale asukohale on liikumisvõimalused tähtsamatel suundadel tagatud igal ajal.
Hoone fassaad on renoveeritud ning äripinnad antud hoones on väga heas korras. Samuti asub hoones lift ning tööajal toimetab majas administraator.
Maja ees klientidele ja külalistele olemas tasuta parkimise võimalus (Kesklinna tsoon). Üürnikele parkimiskohad lisatasu eest.
Ruumidesse on 24h ligipääs.
Üürihinnale lisanduvad kõrvalkulud ja käibemaks.
Pakkumine on vahendustasuta.
Huvi korral annan lisainformatsiooni ja korraldan objekti külastuse.
Kõik pakkumised ei ole avalikud! Hoones on pakkuda vabasid äripindasid suuruses 8.0-292.6 m². Meil on infot kõikide hoones asuvate äripindade kohta. Võta ühendust ja leiame Teile sobiva lahenduse!
Tutvuge Niine tn 11 hoone ja teiste pakkumistega: https://re.ee/kinnisvaraprojekt/aripinnad/loomemaja-niine-11/
RE Kinnisvara AS on tegutsenud 1995. aastast, olles üks vanimaid Eesti kinnisvaraettevõtteid.
Pakume kinnisvaraga seotud täisteenust:
- äri- ja elamispindade maaklerteenus
- kinnisvara hindamine laenu tagatiseks, sh kohtutele, finantsaruandluseks jne.
- äri- ja elukondlike arendusprojektide müügikorraldus
- kinnisvaraturu ja -projektide analüüs ja konsultatsioon
- kinnisvara seadustamine
Teeme koostööd kõigi Eesti pankade ja finantsasutustega. Meie eksperthinnangud on aktsepteeritud kõigi Eestis tegutsevate krediidiasutuste poolt.
Tutvu lähemalt re.ee.
RE Kinnisvara AS – PARIM OSA KINNISVARAST
Helista 66 88 666 või saada e-mail ***@***.ee
https://facebook.com/re.kinnisvara
https://www.instagram.com/rekinnisvara/
https://ee.linkedin.com/company/re-kinnisvara
Üüripind koosneb ühest suurest avatud planeeringuga ja kõrgest ruumist.
Olemas on sundventilatsioon, kaasaegne küttesüsteem ja eraldi sissepääs hoovist kui ka peatrepikojast. Ruumides on ka olemas veeühendus, valmidus kööginurga paigaldamiseks.
Tänu heale asukohale on liikumisvõimalused tähtsamatel suundadel tagatud igal ajal.
Hoone fassaad on renoveeritud ning äripinnad antud hoones on väga heas korras. Samuti asub hoones lift ning tööajal toimetab majas administraator.
Maja ees klientidele ja külalistele olemas tasuta parkimise võimalus (Kesklinna tsoon). Üürnikele parkimiskohad lisatasu eest.
Ruumidesse on 24h ligipääs.
Üürihinnale lisanduvad kõrvalkulud ja käibemaks.
Pakkumine on vahendustasuta.
Huvi korral annan lisainformatsiooni ja korraldan objekti külastuse.
Kõik pakkumised ei ole avalikud! Hoones on pakkuda vabasid äripindasid suuruses 8.0-292.6 m². Meil on infot kõikide hoones asuvate äripindade kohta. Võta ühendust ja leiame Teile sobiva lahenduse!
Tutvuge Niine tn 11 hoone ja teiste pakkumistega: https://re.ee/kinnisvaraprojekt/aripinnad/loomemaja-niine-11/
RE Kinnisvara AS on tegutsenud 1995. aastast, olles üks vanimaid Eesti kinnisvaraettevõtteid.
Pakume kinnisvaraga seotud täisteenust:
- äri- ja elamispindade maaklerteenus
- kinnisvara hindamine laenu tagatiseks, sh kohtutele, finantsaruandluseks jne.
- äri- ja elukondlike arendusprojektide müügikorraldus
- kinnisvaraturu ja -projektide analüüs ja konsultatsioon
- kinnisvara seadustamine
Teeme koostööd kõigi Eesti pankade ja finantsasutustega. Meie eksperthinnangud on aktsepteeritud kõigi Eestis tegutsevate krediidiasutuste poolt.
Tutvu lähemalt re.ee.
RE Kinnisvara AS – PARIM OSA KINNISVARAST
Helista 66 88 666 või saada e-mail ***@***.ee
https://facebook.com/re.kinnisvara
https://www.instagram.com/rekinnisvara/
https://ee.linkedin.com/company/re-kinnisvara




















