Saadaval büroopind 2023 aastal valminud Tammsaare 56 büroohoones - VABANEB JUULI 2025.
ERIPAKKUMINE: AASTA LÕPUNI üürivabastus!
Ruumid on valgusküllased ja kõrgete lagedega. Büroo sobib suurepäraselt meeskonnale suuruses 40 inimest.
Parkimine võimalik nii maja kõrval väliparklates kui maa-aluses parklas.
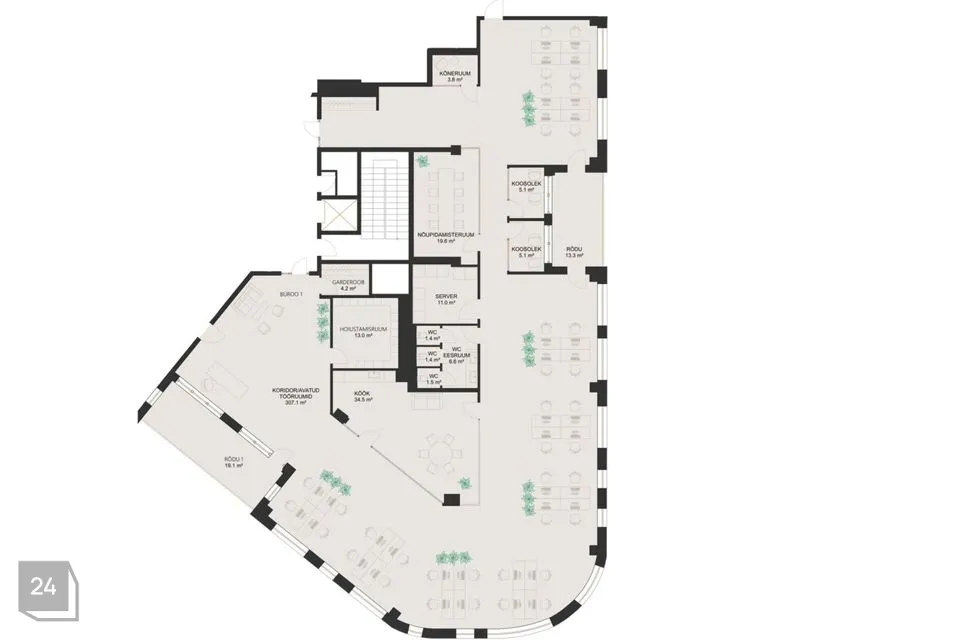
ÜÜRIPINNAST
Ruumiplaneeringult on üüripind järgmine:
- vastuvõtuala,
- kabinetid
- avatud bürooala
- koosolekuruum,
- köök,
- tualetid (2 tk) ja koristajaruum,
- kõneruum,
- avatavad aknad,
- siseviimistluse on loonud KAMP Arhitektid.
- võimalus osta kogu piltidel olev mööbel
HOONEST
Hoone ehitus sai valmis 2023. aasta märtsikuus. Tegemist on uue ajastu A-klassi liginullenergiahoonega, kus esimesel korrusel asuvad kaubandus- ja teeninduspinnad ning ülejäänud korrustel on bürooruumid. Tammsaare tee 56 ärihoones on ligikaudu 6500 m2 üüritavat pinda, ühe korruse pindala on ligikaudu 1000 m2. Tark automaatika optimeerib energiakasutust, mis hoiab üürnikke kõrvalkulud madalamad. Lisaks oleme paigaldanud hoone katusele päikesepaneelid, parklasse elektriautode laadimisjaama ning 0-korrusel asuvad üldkasutatavad pesemisruumid ning turvaline jalgrattaparkla.
PARKIMINE
Kokku on hoone juures 170 parkimiskohta. Üüritava pinnaga koos on võimalik lisatasu eest üürida kuni 3 parkimiskohta kas hoone maa-aluses parklas või hoone kõrval asuvas väliparklas. Lühiajalist parkimist väliparklas korraldab Europark.
PARK TONDI
Uue ajastu ärikvartal, mille märksõnadeks on keskne asukoht, kvaliteetne töökeskkond, rohelus ja head sportimisvõimalused. Rajame Tammsaare tee äärde kvaliteetsed büroohooned, kortermajad, ilusa pargi ja kaasaegsed sportimisvõimalused (sh võimalikud spordi eripaketid kollektiivile).
Park Tondi võlub eelkõige unikaalse ümbruskonnaga, kus on juba olemas kiire jamugav otseühendus kesklinna ja teiste lähedalasuvate linnaosadega. Samas pakub asukoht rohkelt avastamisrõõmu spordist ja liikumisharjumustest lugupidajatele.
MIKS VALIDA PARK TONDI?
• Logistiliselt suurepärane asukoht aktiivse liiklusega Tammsaare tee ääres
• Madalad kõrvalkulud: A-energiaklass ja nutikas automaatika
• Tavapärasest võimsam ventilatsioon ja avatavad aknad
• Efektiivsed ja paindlikud planeeringud
• Avarad ruumid ja kõrged laed
• Võimsad vaated
• Mugav parkimine
• Esindluslik sissepääs ja fuajee
• Elektriautode laadimispunktid
• Soe jalgrattaparkla koos riietus- ja pesuruumiga
PARK TONDI - uue ajastu elu- ja ärikvartal, mille märksõnadeks on keskne asukoht, kvaliteetne töökeskkond, rohelus ja head sportimisvõimalused. Rajame Tammsaare tee äärde kvaliteetsed büroohooned, kortermajad, ilusa pargi ja kaasaegsed sportimisvõimalused.
Park Tondi võlub eelkõige unikaalse ümbruskonnaga, kus on juba olemas kiire jamugav otseühendus kesklinna ja teiste lähedalasuvate linnaosadega. Samas pakub asukoht rohkelt avastamisrõõmu spordist ja liikumisharjumustest lugupidajatele.
ASUKOHT
A.H. Tammsaare tee 56 asukoht on unikaalne, kuna hoone asub magistraaltänava tuiksoonel, aga jätab sellest olenemata võimaluse nautida rohelust ja vaikust hoonet ümbritsevas pargis. Paiknemine A.H. Tammsaare tee ääres tagab suurepärase nähtavuse ja ligipääsetavuse. Nii kesklinn, bussi- kui ka lennujaam jäävad kõigest 8-minutilise autosõidu kaugusele. Linnaliini bussipeatused asuvad mõneminutilise jalutuskäigu kaugusel Tondi tänaval ja A.H. Tammsaare teel. Järve rongipeatuseni jõuab jalgsi 8 minutiga.
Käe-jala juures on spordiklubid, toidupood ja söögikohad.
• Tondi Tennisekeskus – jalgsi 4 minutit
• Golden Club – jalgsi 4 minutit
• Tondi Resto – jalgsi 4 minutit
• Audentese Kool ja Spordikeskus – jalgsi 5 minutit
• Tondi Selver – jalgsi 3 minutit
• Tammsaare Ärikeskus – jalgsi 4 minutit
Rohkem infot projekti kodulehel: www.parktondi.ee
ARENDAJAST
US Real Estate - arendame linnaruumi ja loome ainulaadset elukeskkonda aastast 1991. Meie eesmärgiks on arendada kaasaegse arhitektuuriga terviklikku elu- ja ärikeskkonda, kus on ühendatud parimad tehnilised teadmised iidsete tarkustega.
Oleme oma tegevusaastate jooksul arendanud kokku rohkem kui 250 000 m2 kinnisvara. Täna on meie poolt hallatavas portfellis üle 100 000 m2 üüritavat äripinda.
Rohkem infot arendaja kohta: www.usre.ee
ERIPAKKUMINE: AASTA LÕPUNI üürivabastus!
Ruumid on valgusküllased ja kõrgete lagedega. Büroo sobib suurepäraselt meeskonnale suuruses 40 inimest.
Parkimine võimalik nii maja kõrval väliparklates kui maa-aluses parklas.
ÜÜRIPINNAST
Ruumiplaneeringult on üüripind järgmine:
- vastuvõtuala,
- kabinetid
- avatud bürooala
- koosolekuruum,
- köök,
- tualetid (2 tk) ja koristajaruum,
- kõneruum,
- avatavad aknad,
- siseviimistluse on loonud KAMP Arhitektid.
- võimalus osta kogu piltidel olev mööbel
HOONEST
Hoone ehitus sai valmis 2023. aasta märtsikuus. Tegemist on uue ajastu A-klassi liginullenergiahoonega, kus esimesel korrusel asuvad kaubandus- ja teeninduspinnad ning ülejäänud korrustel on bürooruumid. Tammsaare tee 56 ärihoones on ligikaudu 6500 m2 üüritavat pinda, ühe korruse pindala on ligikaudu 1000 m2. Tark automaatika optimeerib energiakasutust, mis hoiab üürnikke kõrvalkulud madalamad. Lisaks oleme paigaldanud hoone katusele päikesepaneelid, parklasse elektriautode laadimisjaama ning 0-korrusel asuvad üldkasutatavad pesemisruumid ning turvaline jalgrattaparkla.
PARKIMINE
Kokku on hoone juures 170 parkimiskohta. Üüritava pinnaga koos on võimalik lisatasu eest üürida kuni 3 parkimiskohta kas hoone maa-aluses parklas või hoone kõrval asuvas väliparklas. Lühiajalist parkimist väliparklas korraldab Europark.
PARK TONDI
Uue ajastu ärikvartal, mille märksõnadeks on keskne asukoht, kvaliteetne töökeskkond, rohelus ja head sportimisvõimalused. Rajame Tammsaare tee äärde kvaliteetsed büroohooned, kortermajad, ilusa pargi ja kaasaegsed sportimisvõimalused (sh võimalikud spordi eripaketid kollektiivile).
Park Tondi võlub eelkõige unikaalse ümbruskonnaga, kus on juba olemas kiire jamugav otseühendus kesklinna ja teiste lähedalasuvate linnaosadega. Samas pakub asukoht rohkelt avastamisrõõmu spordist ja liikumisharjumustest lugupidajatele.
MIKS VALIDA PARK TONDI?
• Logistiliselt suurepärane asukoht aktiivse liiklusega Tammsaare tee ääres
• Madalad kõrvalkulud: A-energiaklass ja nutikas automaatika
• Tavapärasest võimsam ventilatsioon ja avatavad aknad
• Efektiivsed ja paindlikud planeeringud
• Avarad ruumid ja kõrged laed
• Võimsad vaated
• Mugav parkimine
• Esindluslik sissepääs ja fuajee
• Elektriautode laadimispunktid
• Soe jalgrattaparkla koos riietus- ja pesuruumiga
PARK TONDI - uue ajastu elu- ja ärikvartal, mille märksõnadeks on keskne asukoht, kvaliteetne töökeskkond, rohelus ja head sportimisvõimalused. Rajame Tammsaare tee äärde kvaliteetsed büroohooned, kortermajad, ilusa pargi ja kaasaegsed sportimisvõimalused.
Park Tondi võlub eelkõige unikaalse ümbruskonnaga, kus on juba olemas kiire jamugav otseühendus kesklinna ja teiste lähedalasuvate linnaosadega. Samas pakub asukoht rohkelt avastamisrõõmu spordist ja liikumisharjumustest lugupidajatele.
ASUKOHT
A.H. Tammsaare tee 56 asukoht on unikaalne, kuna hoone asub magistraaltänava tuiksoonel, aga jätab sellest olenemata võimaluse nautida rohelust ja vaikust hoonet ümbritsevas pargis. Paiknemine A.H. Tammsaare tee ääres tagab suurepärase nähtavuse ja ligipääsetavuse. Nii kesklinn, bussi- kui ka lennujaam jäävad kõigest 8-minutilise autosõidu kaugusele. Linnaliini bussipeatused asuvad mõneminutilise jalutuskäigu kaugusel Tondi tänaval ja A.H. Tammsaare teel. Järve rongipeatuseni jõuab jalgsi 8 minutiga.
Käe-jala juures on spordiklubid, toidupood ja söögikohad.
• Tondi Tennisekeskus – jalgsi 4 minutit
• Golden Club – jalgsi 4 minutit
• Tondi Resto – jalgsi 4 minutit
• Audentese Kool ja Spordikeskus – jalgsi 5 minutit
• Tondi Selver – jalgsi 3 minutit
• Tammsaare Ärikeskus – jalgsi 4 minutit
Rohkem infot projekti kodulehel: www.parktondi.ee
ARENDAJAST
US Real Estate - arendame linnaruumi ja loome ainulaadset elukeskkonda aastast 1991. Meie eesmärgiks on arendada kaasaegse arhitektuuriga terviklikku elu- ja ärikeskkonda, kus on ühendatud parimad tehnilised teadmised iidsete tarkustega.
Oleme oma tegevusaastate jooksul arendanud kokku rohkem kui 250 000 m2 kinnisvara. Täna on meie poolt hallatavas portfellis üle 100 000 m2 üüritavat äripinda.
Rohkem infot arendaja kohta: www.usre.ee












































