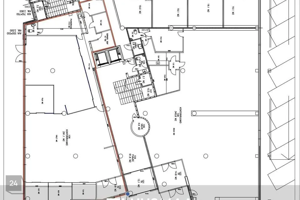
Üürile anda avar ja esinduslik omaette sissepääsu ja vitriinakendega äripind Ülemiste Ärimaja 1. korrusel. Mugavalt ligipääsetav pind sobib showroomiks, kaupluseks või bürooks. Pinna saab vajadusel ka kaheks jagada - ideaalne näiteks kahele partnerettevõttele - eraldi müügisaalid, kuid ühised üldalad.
Ülemiste Ärimaja on suurepärases asukohas - kesklinnale väga lähedal, suurte tänavate ristumiskohas, kuhu on mugav ligipääs erinevatest linnaosadest. Hoone fassaadil on head võimalused reklaami paigaldamiseks. Hoone 1. korrusel on kauplused, kõrgemal bürood. Majas on ka söögikoht. Hoone kõrval on kaubanduskeskus T1 Mall of Tallinn, kus on hulgaliselt söögikohti, kaugel pole ka Sikupilli keskus.
Lähedal on bussi- ja trammipeatused ning tulevane Rail Balticu terminal, mõneminutilise autosõidu kaugusel on lennujaam ja bussijaam.
Hoone ees on parkimine klientidele 2 tundi tasuta, üürnikele on tasuta parkimine hoone taga ja parkimismajas, kust on otse ligipääs büroohoonesse. Majas on suletud jalgrattaparkla ja duširuumid.
KAUGUSED / SÕIDUAEG
• Rocca Al Mare keskus 8,8 km / 15 min
• Kristiine keskus 4,7 km / 7 min
• Telliskivi loomelinnak 6,1 km / 12 min
• Viru Keskus 3,1 km / 5 min
• Lennujaam 1,7 km / 4 min
• Tallinna Sadam 5,6 km / 11 min
• Lasnamäe Centrum 6,4 km / 11 min
• Viimsi Keskus 13,6 km / 23 min
Üürihind 12.5 EUR/m2 (parkimine sisaldub hinnas), lisanduvad kõrvalkulud ja käibemaks.
Kui vajad esinduslikku ja mugavalt ligipääsetavat asukohta oma ärile, võta ühendust ja tule vaatama!
Pakkumine on vahendustasuta.
Jaga minu kontakti kõigile, kes vajavad kinnisvaranõu!
Liitu meie uudiskirjaga ja saa homset kinnisvarainfot juba täna! Vaata https://arikinnisvara.uusmaa.ee
UUS MAA ÄRIKINNISVARA - aastakümned kogemust ja klientide usaldust, läbimõeldud täisteenus ja suurim arv eksperte: vahendamine, hindamine, haldamine, nõustamine ja investeerimine.
Ülemiste Ärimaja on suurepärases asukohas - kesklinnale väga lähedal, suurte tänavate ristumiskohas, kuhu on mugav ligipääs erinevatest linnaosadest. Hoone fassaadil on head võimalused reklaami paigaldamiseks. Hoone 1. korrusel on kauplused, kõrgemal bürood. Majas on ka söögikoht. Hoone kõrval on kaubanduskeskus T1 Mall of Tallinn, kus on hulgaliselt söögikohti, kaugel pole ka Sikupilli keskus.
Lähedal on bussi- ja trammipeatused ning tulevane Rail Balticu terminal, mõneminutilise autosõidu kaugusel on lennujaam ja bussijaam.
Hoone ees on parkimine klientidele 2 tundi tasuta, üürnikele on tasuta parkimine hoone taga ja parkimismajas, kust on otse ligipääs büroohoonesse. Majas on suletud jalgrattaparkla ja duširuumid.
KAUGUSED / SÕIDUAEG
• Rocca Al Mare keskus 8,8 km / 15 min
• Kristiine keskus 4,7 km / 7 min
• Telliskivi loomelinnak 6,1 km / 12 min
• Viru Keskus 3,1 km / 5 min
• Lennujaam 1,7 km / 4 min
• Tallinna Sadam 5,6 km / 11 min
• Lasnamäe Centrum 6,4 km / 11 min
• Viimsi Keskus 13,6 km / 23 min
Üürihind 12.5 EUR/m2 (parkimine sisaldub hinnas), lisanduvad kõrvalkulud ja käibemaks.
Kui vajad esinduslikku ja mugavalt ligipääsetavat asukohta oma ärile, võta ühendust ja tule vaatama!
Pakkumine on vahendustasuta.
Jaga minu kontakti kõigile, kes vajavad kinnisvaranõu!
Liitu meie uudiskirjaga ja saa homset kinnisvarainfot juba täna! Vaata https://arikinnisvara.uusmaa.ee
UUS MAA ÄRIKINNISVARA - aastakümned kogemust ja klientide usaldust, läbimõeldud täisteenus ja suurim arv eksperte: vahendamine, hindamine, haldamine, nõustamine ja investeerimine.





















