2024. aasta suvel valmis Tallinnas Paldiski maantee ääres Tähetorni Tehnopargi kõrval aadressil Härgmäe 8 uus B-energiaklassi kahekorruseline ärihoone.
Ühena vähestest hoonetest Tallinnas ja selle lähiümbruses on antud hoones võimalik kaupa laadida nii maa tasapinnalt kui ka laadimissillalt.
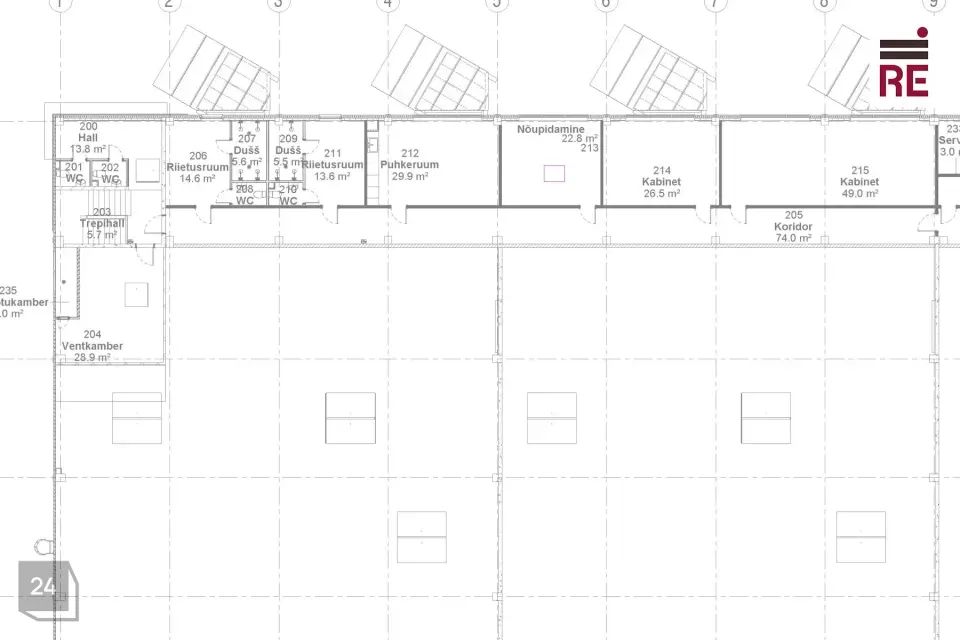
PAKUTAV PIND Tegu on hoone sissepääsu poolse nurgaboksiga ja see on suurusega 1387,9 m². Üüritav pind jaguneb järgnevalt: esimese korruse lao- või tootmisruumid suurusega 1207,4 m² ja 180,5 m² suurused büroo- ning olmeruumid teisel korrusel.
Pinna joonised on leitavad pakkumise galeriist.
TEHNILINE INFO
- laadimine hoone küljel on maaga tasapinnas oleva 3,05 m (laius) x 3 m (kõrgus) tõstukse kaudu
- hoone ees on kaks laadimisust, mõlema ees on laadimismaja reguleeritava laadimissillaga
- tõstuksed on varustatud elektriajamiga
- tootmis- või laoruumi kõrgus fermini on 8 m
- tootmis- või laoruumis on sundventilatsioon
- põranda kandevõime on 5 t/m²
- vooluvõimsus boksil kuni 300 A
- reklaami paigaldamise võimalus hoonele
Hoone on rajatud energiatõhusana ning B-energiaklassiga, mis tagab madalad kõrvalkulud. Hoones on gaasiküte - laos on kalorifeerid, büroos ja olmeruumides radiaatorid. Büroo ja olmeruumid on varustatud sundventilatsiooni ja konditsioneeridega. Töötajatele ja klientidele on maja juures tasuta parkimine. Ruumidesse ja territooriumile on tagatud ööpäevaringne ligipääs. Hoone ümber on piisav manööverdusala ka suurematele veokitele.
ASUKOHT Hoone asub vahetult Tallinna piiri ääres, südalinnast vaid 10 km kaugusel Paldiski mnt ääres. Tegu on piirkonnaga, mis sobib hästi logistika, tootmise, laonduse ja hulgikaubandusega tegelevatele ettevõtetele. Vahetu piirnemine Tallinna ringteega tõstab veelgi selle piirkonna väärtuslikkust.
Üüri hinnale lisanduvad kõrvalkulud ja käibemaks. Pakkumine on Teile vahendustasuta. Huvi korral annan meeleldi lisainfot ja korraldan objekti külastuse.
Olete oodatud ruumidega tutvuma.
RE Kinnisvara AS on tegutsenud 1995. aastast, olles üks vanimaid Eesti kinnisvaraettevõtteid.
Pakume kinnisvaraga seotud täisteenust:
- äri- ja elamispindade maaklerteenus
- kinnisvara hindamine laenu tagatiseks, sh kohtutele, finantsaruandluseks jne.
- äri- ja elukondlike arendusprojektide müügikorraldus
- kinnisvaraturu ja -projektide analüüs ja konsultatsioon
- kinnisvara seadustamine
Teeme koostööd kõigi Eesti pankade ja finantsasutustega. Meie eksperthinnangud on aktsepteeritud kõigi Eestis tegutsevate krediidiasutuste poolt.
Tutvu lähemalt re.ee.
RE Kinnisvara AS – PARIM OSA KINNISVARAST
Helista 66 88 666 või saada e-mail ***@***.ee
https://facebook.com/re.kinnisvara
https://www.instagram.com/rekinnisvara/
https://ee.linkedin.com/company/re-kinnisvara
Ühena vähestest hoonetest Tallinnas ja selle lähiümbruses on antud hoones võimalik kaupa laadida nii maa tasapinnalt kui ka laadimissillalt.
PAKUTAV PIND Tegu on hoone sissepääsu poolse nurgaboksiga ja see on suurusega 1387,9 m². Üüritav pind jaguneb järgnevalt: esimese korruse lao- või tootmisruumid suurusega 1207,4 m² ja 180,5 m² suurused büroo- ning olmeruumid teisel korrusel.
Pinna joonised on leitavad pakkumise galeriist.
TEHNILINE INFO
- laadimine hoone küljel on maaga tasapinnas oleva 3,05 m (laius) x 3 m (kõrgus) tõstukse kaudu
- hoone ees on kaks laadimisust, mõlema ees on laadimismaja reguleeritava laadimissillaga
- tõstuksed on varustatud elektriajamiga
- tootmis- või laoruumi kõrgus fermini on 8 m
- tootmis- või laoruumis on sundventilatsioon
- põranda kandevõime on 5 t/m²
- vooluvõimsus boksil kuni 300 A
- reklaami paigaldamise võimalus hoonele
Hoone on rajatud energiatõhusana ning B-energiaklassiga, mis tagab madalad kõrvalkulud. Hoones on gaasiküte - laos on kalorifeerid, büroos ja olmeruumides radiaatorid. Büroo ja olmeruumid on varustatud sundventilatsiooni ja konditsioneeridega. Töötajatele ja klientidele on maja juures tasuta parkimine. Ruumidesse ja territooriumile on tagatud ööpäevaringne ligipääs. Hoone ümber on piisav manööverdusala ka suurematele veokitele.
ASUKOHT Hoone asub vahetult Tallinna piiri ääres, südalinnast vaid 10 km kaugusel Paldiski mnt ääres. Tegu on piirkonnaga, mis sobib hästi logistika, tootmise, laonduse ja hulgikaubandusega tegelevatele ettevõtetele. Vahetu piirnemine Tallinna ringteega tõstab veelgi selle piirkonna väärtuslikkust.
Üüri hinnale lisanduvad kõrvalkulud ja käibemaks. Pakkumine on Teile vahendustasuta. Huvi korral annan meeleldi lisainfot ja korraldan objekti külastuse.
Olete oodatud ruumidega tutvuma.
RE Kinnisvara AS on tegutsenud 1995. aastast, olles üks vanimaid Eesti kinnisvaraettevõtteid.
Pakume kinnisvaraga seotud täisteenust:
- äri- ja elamispindade maaklerteenus
- kinnisvara hindamine laenu tagatiseks, sh kohtutele, finantsaruandluseks jne.
- äri- ja elukondlike arendusprojektide müügikorraldus
- kinnisvaraturu ja -projektide analüüs ja konsultatsioon
- kinnisvara seadustamine
Teeme koostööd kõigi Eesti pankade ja finantsasutustega. Meie eksperthinnangud on aktsepteeritud kõigi Eestis tegutsevate krediidiasutuste poolt.
Tutvu lähemalt re.ee.
RE Kinnisvara AS – PARIM OSA KINNISVARAST
Helista 66 88 666 või saada e-mail ***@***.ee
https://facebook.com/re.kinnisvara
https://www.instagram.com/rekinnisvara/
https://ee.linkedin.com/company/re-kinnisvara





























