Üürile anda väga heas korras, renoveeritud ladu vahetult Punase tänava ääres.
- Ruum on köetav ökonoomsete õhksoojuspumpadega
- Väga head laadimistingimused:
- Katusealusega laadimisestakaad.
- 2 x reguleeritavad laadimissillad.
Võimalik kaubikuga estakaadile sõita.
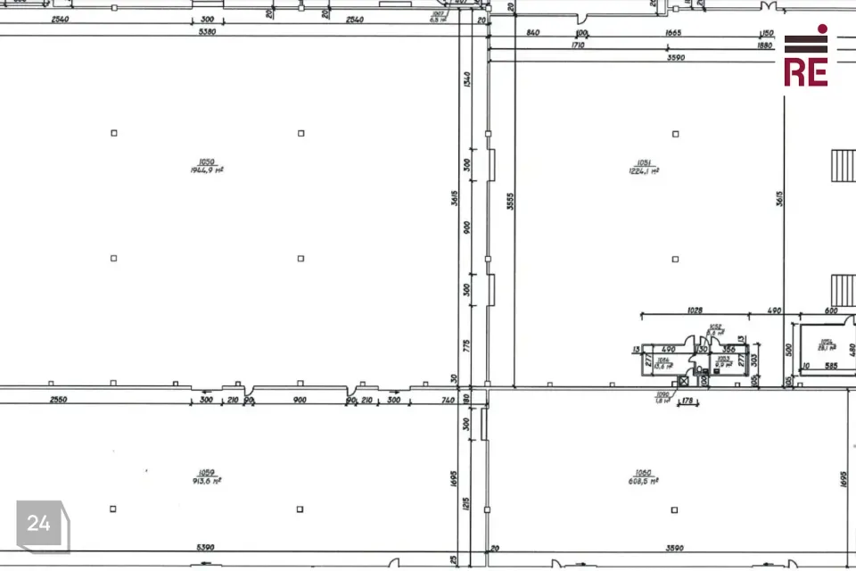
Pind koosneb kahest ruumist: 1281,2 m² ja 1944,9 m², mis on omavahel ustega ühendatud.
Pinna mõõtmed ca 35 m x 92,2 m.
- Lae kõrgus on ca 9 m
- 2 tõstust mõõtudega 3 m x 3 m
- Uus betoonpõrand
- Laokontor, tualett ja duširuum.
- Suur territoorium, väga head manööverdamisvõimalused erineva suurusega veokitele.
Üürihind on 4,50 EUR/m²+km. Lisanduvad vesi ja elekter vastavalt tarbimisele.
Üürihinnas sisalduvad mehitatud ja tehniline valve, tuletõrjesignalisatsioon, territooriumi heakord ja valgustus ning jäätmekäitlus.
Territoorium on öösiti suletud ja 24 h valve all. Vajadusel tagatakse ligipääs territooriumile 24 h.
Lisaks on võimalik juurde üürida bürood kõrvalhoones. Pakume büroopindasid suuruses 25 - 200 m².
Punane tn 42 on pakkuda ka teisi pindasid, palun tutvuge nendega siin: https://re.ee/kinnisvaraprojekt/aripinnad/ladu-ja-tootmine/punane-42-2/
Pakkumine on Teile vahendustasuta.
Huvi korral annan meeleldi lisainfot ja korraldan objekti külastuse.
Olete oodatud ruumidega tutvuma.
Teised lao- ja tootmispindade pakkumised leiate siit -
https://re.ee/kinnisvara-kuulutused/aripinnad/ladu-ja-tootmine/
RE Kinnisvara AS on tegutsenud 1995. aastast, olles üks vanimaid Eesti kinnisvaraettevõtteid.
Pakume kinnisvaraga seotud täisteenust:
- äri- ja elamispindade maaklerteenus
- kinnisvara hindamine laenu tagatiseks, sh kohtutele, finantsaruandluseks jne.
- äri- ja elukondlike arendusprojektide müügikorraldus
- kinnisvaraturu ja -projektide analüüs ja konsultatsioon
- kinnisvara seadustamine
Teeme koostööd kõigi Eesti pankade ja finantsasutustega. Meie eksperthinnangud on aktsepteeritud kõigi Eestis tegutsevate krediidiasutuste poolt.
Tutvu lähemalt re.ee.
RE Kinnisvara AS – PARIM OSA KINNISVARAST
Helista 66 88 666 või saada e-mail ***@***.ee
https://facebook.com/re.kinnisvara
https://www.instagram.com/rekinnisvara/
https://ee.linkedin.com/company/re-kinnisvara
- Ruum on köetav ökonoomsete õhksoojuspumpadega
- Väga head laadimistingimused:
- Katusealusega laadimisestakaad.
- 2 x reguleeritavad laadimissillad.
Võimalik kaubikuga estakaadile sõita.
Pind koosneb kahest ruumist: 1281,2 m² ja 1944,9 m², mis on omavahel ustega ühendatud.
Pinna mõõtmed ca 35 m x 92,2 m.
- Lae kõrgus on ca 9 m
- 2 tõstust mõõtudega 3 m x 3 m
- Uus betoonpõrand
- Laokontor, tualett ja duširuum.
- Suur territoorium, väga head manööverdamisvõimalused erineva suurusega veokitele.
Üürihind on 4,50 EUR/m²+km. Lisanduvad vesi ja elekter vastavalt tarbimisele.
Üürihinnas sisalduvad mehitatud ja tehniline valve, tuletõrjesignalisatsioon, territooriumi heakord ja valgustus ning jäätmekäitlus.
Territoorium on öösiti suletud ja 24 h valve all. Vajadusel tagatakse ligipääs territooriumile 24 h.
Lisaks on võimalik juurde üürida bürood kõrvalhoones. Pakume büroopindasid suuruses 25 - 200 m².
Punane tn 42 on pakkuda ka teisi pindasid, palun tutvuge nendega siin: https://re.ee/kinnisvaraprojekt/aripinnad/ladu-ja-tootmine/punane-42-2/
Pakkumine on Teile vahendustasuta.
Huvi korral annan meeleldi lisainfot ja korraldan objekti külastuse.
Olete oodatud ruumidega tutvuma.
Teised lao- ja tootmispindade pakkumised leiate siit -
https://re.ee/kinnisvara-kuulutused/aripinnad/ladu-ja-tootmine/
RE Kinnisvara AS on tegutsenud 1995. aastast, olles üks vanimaid Eesti kinnisvaraettevõtteid.
Pakume kinnisvaraga seotud täisteenust:
- äri- ja elamispindade maaklerteenus
- kinnisvara hindamine laenu tagatiseks, sh kohtutele, finantsaruandluseks jne.
- äri- ja elukondlike arendusprojektide müügikorraldus
- kinnisvaraturu ja -projektide analüüs ja konsultatsioon
- kinnisvara seadustamine
Teeme koostööd kõigi Eesti pankade ja finantsasutustega. Meie eksperthinnangud on aktsepteeritud kõigi Eestis tegutsevate krediidiasutuste poolt.
Tutvu lähemalt re.ee.
RE Kinnisvara AS – PARIM OSA KINNISVARAST
Helista 66 88 666 või saada e-mail ***@***.ee
https://facebook.com/re.kinnisvara
https://www.instagram.com/rekinnisvara/
https://ee.linkedin.com/company/re-kinnisvara

















