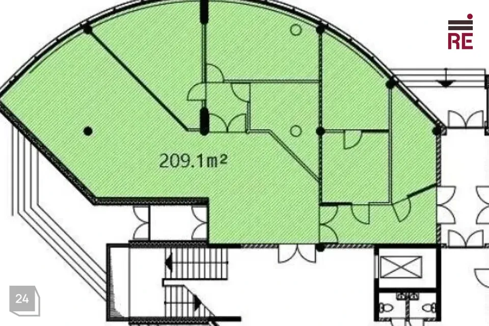
Üürile anda esimesel korrusel asuv 209,1 m² suurune multifunktsionaalne äripind Järvevana tee 9 ärihoones, mis asub Pärnu mnt ja Järvevana tee ristmikul.
Tegemist on mitmest eraldi ruumist koosneva pinnaga. Ruumide plaan on leitav piltide galeriist. Pinnale on kolm eraldi sissepääsu. Olemas on kaasaegne ventilatsioon ja jahutussüsteem. Hoones asub kohvik.
Maja ees on tasuta kliendiparkla. Hoone taga tõkkepuuga parklas üürnikele parkimine kuutasuga 35 eurot. Hoones on ka jalgrataste hoidmise koht ja duši kasutamise võimalus.
Soovi korral võib üürnik oma logo maja fassaadile ja reklaamtulbale paigaldada. Hoone on hästi simapaistev nii Järvevana teelt kui ka Pärnu maanteelt.
Üürihinnale lisanduvad kõrvalkulud ja käibemaks. Tagatisraha on kahe kuu üürisumma. Pakkumine on Teile vahendustasuta.
Kõik pakkumised ei ole avalikud! Hoones on pakkuda vabasid äripindasid suuruses 5,9-897 m². Meil on infot kõikide hoones asuvate äripindade kohta. Võta ühendust ja leiame Teile sobiva lahenduse!
Tutvuge Järvevana 9 hoone ja teiste pakkumistega:
http://www.re.ee/projektid/aripinnad/jarvevana-9/
RE Kinnisvara AS on tegutsenud 1995. aastast, olles üks vanimaid Eesti kinnisvaraettevõtteid.
Pakume kinnisvaraga seotud täisteenust:
- äri- ja elamispindade maaklerteenus
- kinnisvara hindamine laenu tagatiseks, sh kohtutele, finantsaruandluseks jne.
- äri- ja elukondlike arendusprojektide müügikorraldus
- kinnisvaraturu ja -projektide analüüs ja konsultatsioon
- kinnisvara seadustamine
Teeme koostööd kõigi Eesti pankade ja finantsasutustega. Meie eksperthinnangud on aktsepteeritud kõigi Eestis tegutsevate krediidiasutuste poolt.
Tutvu lähemalt re.ee.
RE Kinnisvara AS – PARIM OSA KINNISVARAST
Helista 66 88 666 või saada e-mail ***@***.ee
https://facebook.com/re.kinnisvara
https://www.instagram.com/rekinnisvara/
https://ee.linkedin.com/company/re-kinnisvara
Tegemist on mitmest eraldi ruumist koosneva pinnaga. Ruumide plaan on leitav piltide galeriist. Pinnale on kolm eraldi sissepääsu. Olemas on kaasaegne ventilatsioon ja jahutussüsteem. Hoones asub kohvik.
Maja ees on tasuta kliendiparkla. Hoone taga tõkkepuuga parklas üürnikele parkimine kuutasuga 35 eurot. Hoones on ka jalgrataste hoidmise koht ja duši kasutamise võimalus.
Soovi korral võib üürnik oma logo maja fassaadile ja reklaamtulbale paigaldada. Hoone on hästi simapaistev nii Järvevana teelt kui ka Pärnu maanteelt.
Üürihinnale lisanduvad kõrvalkulud ja käibemaks. Tagatisraha on kahe kuu üürisumma. Pakkumine on Teile vahendustasuta.
Kõik pakkumised ei ole avalikud! Hoones on pakkuda vabasid äripindasid suuruses 5,9-897 m². Meil on infot kõikide hoones asuvate äripindade kohta. Võta ühendust ja leiame Teile sobiva lahenduse!
Tutvuge Järvevana 9 hoone ja teiste pakkumistega:
http://www.re.ee/projektid/aripinnad/jarvevana-9/
RE Kinnisvara AS on tegutsenud 1995. aastast, olles üks vanimaid Eesti kinnisvaraettevõtteid.
Pakume kinnisvaraga seotud täisteenust:
- äri- ja elamispindade maaklerteenus
- kinnisvara hindamine laenu tagatiseks, sh kohtutele, finantsaruandluseks jne.
- äri- ja elukondlike arendusprojektide müügikorraldus
- kinnisvaraturu ja -projektide analüüs ja konsultatsioon
- kinnisvara seadustamine
Teeme koostööd kõigi Eesti pankade ja finantsasutustega. Meie eksperthinnangud on aktsepteeritud kõigi Eestis tegutsevate krediidiasutuste poolt.
Tutvu lähemalt re.ee.
RE Kinnisvara AS – PARIM OSA KINNISVARAST
Helista 66 88 666 või saada e-mail ***@***.ee
https://facebook.com/re.kinnisvara
https://www.instagram.com/rekinnisvara/
https://ee.linkedin.com/company/re-kinnisvara






















