HOONE
Telliskivi 51 on modernne A-energiaklaasi ärihoone, mille autoriks on Kauss arhitektuuribüroo ning ehitajaks 1Partner Ehitus.
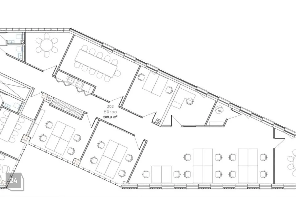
Kolmekorruselise ärihoone 1. korrusel asuvad kohvik ja restoran ning 2.ja 3.korrusel büroopinnad.
Ärimaja välisilme on kavandatud esindusliku ja modernsena ning kestvatest kvaliteetsetest materjalidest. Hoone lahendatakse betoonist kandekonstruktsiooniga, kandvate betoonpostide ja -seintega ning monoliitsete raudbetoon vahelagedega. See annab hea võimaluse ruumide ümberkujundamiseks vastavalt kliendi vajadustele.
Hoones on pööratud erilist tähelepanu loomulikule valgusele. Kõrged kõigis välisseintes asuvad aknad vahelduvad seina elementidega, mis võimaldavad hõlpsasti büroodes erinevaid ruumipaigutusi.
Mõnusa sujuva sisekliima tagab hoonesse rajatud unikaalne kaks ühes laekütte ja –jahutussüsteem Šveitsi oma ala tipptegijalt Zehnder. Kütte korral toimib antud süsteem nagu päike. Soojast laest suundub kiirgusenergia ruumis olevate tahkete kehadeni (töötajad, mööbel, seinad, põrand jne). Kiirgusenergia muundub soojusenergiaks ainult tahkete kehadega kohtudes. Jahutusperioodil tsirkuleerib laes pisut jahedama temperatuuriga jahutusvesi, kui ruumi temperatuur. Nüüd „püüab“ nn aktiivlaes tsirkuleeriv jahe vesi ruumis asuvatelt objektidelt, seinadelt ja inimestelt eralduva soojuskiirguse endasse ning transpordib selle külmajaama, kus see siis uuesti maha jahutatakse. Sellisel viisil jahutamine tagab kõige suurema mugavustunde. Lisaks on büroo sees olevatesse koosolekuruumidesse paigaldatud lisajahutussüsteemid (fancoil).
Hoone kinnistule rajatakse jalgrattahoidjad ning elektriautode laadimiskohad.
Hoone asukoht Tallinna kesklinna piiril võimaldab suurepärase ligipääsu kõikidest suundadest. Hoone tagune mõnus pargiala pakub võimalust nautida värsket õhku tööpäeva vahepeal või lõppedes. Perfektne kooslus, kus töö ja heaolu täiendavad teineteist, pakkudes inspireerivat keskkonda igapäevaseks tegutsemiseks.
Maja on 3-korruseline.
Esimesel korrusel asub kohvik ja restoran.
Teisel ja kolmandal korrusel asuvad erineva suurusega bürood.
Majas on lift.
Hoone energiaklass on A.
Hoone katusel on päikesepaneelid.
Küte ja ventilatsioon: kaks ühes laekütte ja –jahutussüsteem. Lisaks fancoilid.
Valve valmidus – sõrmistikud on toodud igale pinnale.
Maja hoovipoolsesse ossa rajatakse uus pargiala
Aknad on kolmekordse klaaspaketiga, puit-alumiinium/alumiinium raamidega, mis on osaliselt avatavad.
Vahelagedes on arvestatud sammumüra vähendavaid lahendusi.
ASUKOHT
> Telliskivi 51 ärihoone asub Telliskivi südames, kus kõik on vaid mõne sammu kaugusel.
>Hoonet ümbritseb Telliskivi loomelinnak, kus on olemas kõik, mida hing ihkab - söögikohad, poed, meelelahutus, terviseteenused ning haljasalad.
>Telliskivisse pääseb mugavalt igalt poolt – buss, rong, tramm pakuvad lihtsat ligipääsu, jalgratta või autoga tulles on olemas parkimisvõimalused maja ümbruses.
Kui tunned, et sinu äri vajab uut kodu, võta meiega kindlasti ühendust ning leiame sulle parima lahenduse!
Hoone valmib 2025. aasta oktoobris.
Telliskivi 51 on modernne A-energiaklaasi ärihoone, mille autoriks on Kauss arhitektuuribüroo ning ehitajaks 1Partner Ehitus.
Kolmekorruselise ärihoone 1. korrusel asuvad kohvik ja restoran ning 2.ja 3.korrusel büroopinnad.
Ärimaja välisilme on kavandatud esindusliku ja modernsena ning kestvatest kvaliteetsetest materjalidest. Hoone lahendatakse betoonist kandekonstruktsiooniga, kandvate betoonpostide ja -seintega ning monoliitsete raudbetoon vahelagedega. See annab hea võimaluse ruumide ümberkujundamiseks vastavalt kliendi vajadustele.
Hoones on pööratud erilist tähelepanu loomulikule valgusele. Kõrged kõigis välisseintes asuvad aknad vahelduvad seina elementidega, mis võimaldavad hõlpsasti büroodes erinevaid ruumipaigutusi.
Mõnusa sujuva sisekliima tagab hoonesse rajatud unikaalne kaks ühes laekütte ja –jahutussüsteem Šveitsi oma ala tipptegijalt Zehnder. Kütte korral toimib antud süsteem nagu päike. Soojast laest suundub kiirgusenergia ruumis olevate tahkete kehadeni (töötajad, mööbel, seinad, põrand jne). Kiirgusenergia muundub soojusenergiaks ainult tahkete kehadega kohtudes. Jahutusperioodil tsirkuleerib laes pisut jahedama temperatuuriga jahutusvesi, kui ruumi temperatuur. Nüüd „püüab“ nn aktiivlaes tsirkuleeriv jahe vesi ruumis asuvatelt objektidelt, seinadelt ja inimestelt eralduva soojuskiirguse endasse ning transpordib selle külmajaama, kus see siis uuesti maha jahutatakse. Sellisel viisil jahutamine tagab kõige suurema mugavustunde. Lisaks on büroo sees olevatesse koosolekuruumidesse paigaldatud lisajahutussüsteemid (fancoil).
Hoone kinnistule rajatakse jalgrattahoidjad ning elektriautode laadimiskohad.
Hoone asukoht Tallinna kesklinna piiril võimaldab suurepärase ligipääsu kõikidest suundadest. Hoone tagune mõnus pargiala pakub võimalust nautida värsket õhku tööpäeva vahepeal või lõppedes. Perfektne kooslus, kus töö ja heaolu täiendavad teineteist, pakkudes inspireerivat keskkonda igapäevaseks tegutsemiseks.
Maja on 3-korruseline.
Esimesel korrusel asub kohvik ja restoran.
Teisel ja kolmandal korrusel asuvad erineva suurusega bürood.
Majas on lift.
Hoone energiaklass on A.
Hoone katusel on päikesepaneelid.
Küte ja ventilatsioon: kaks ühes laekütte ja –jahutussüsteem. Lisaks fancoilid.
Valve valmidus – sõrmistikud on toodud igale pinnale.
Maja hoovipoolsesse ossa rajatakse uus pargiala
Aknad on kolmekordse klaaspaketiga, puit-alumiinium/alumiinium raamidega, mis on osaliselt avatavad.
Vahelagedes on arvestatud sammumüra vähendavaid lahendusi.
ASUKOHT
> Telliskivi 51 ärihoone asub Telliskivi südames, kus kõik on vaid mõne sammu kaugusel.
>Hoonet ümbritseb Telliskivi loomelinnak, kus on olemas kõik, mida hing ihkab - söögikohad, poed, meelelahutus, terviseteenused ning haljasalad.
>Telliskivisse pääseb mugavalt igalt poolt – buss, rong, tramm pakuvad lihtsat ligipääsu, jalgratta või autoga tulles on olemas parkimisvõimalused maja ümbruses.
Kui tunned, et sinu äri vajab uut kodu, võta meiega kindlasti ühendust ning leiame sulle parima lahenduse!
Hoone valmib 2025. aasta oktoobris.





















