Mustamäel aadressil Mäealuse 10 valmib 2025. aasta suve lõpuks moodne ning mitmeotstarbeline kahekordne ärihoone. Uues ärihoones loovad viljaka tegevuskeskkonna silmapaistvad kaubandus-, teenindus-, lao- ja esinduspinnad ning kaasaegsed kontorilahendused.
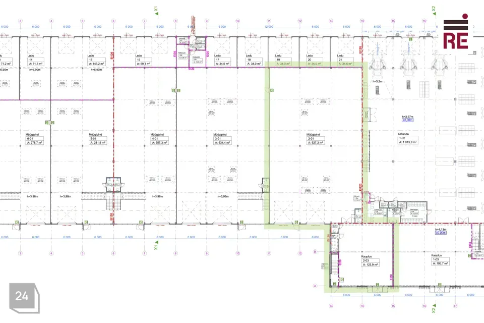
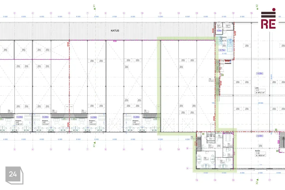
Üürile anda äripind nr 2 suurusega 809,1 m². Esimese korruse pind on suurusega 669,5 m² ja teise korruse büroo on suurusega 139,6 m².
Pinnale viivad kaks tõstust mõõtudega 3,5 m (laius) x 4,2 m (kõrgus), mis võimaldab ka veokiga sissesõitu.
Miks kolida Mäealuse 10 ärimajja?
- tegu on ainsa stockoffice-tüüpi hoonega, mis valmib 2025. aastal Tallinna linnas
- eristuge konkurentidest asudes uues silmapaistvas kaasaegse arhitektuuriga hoones
- kolm ühes lahendus - koondage kauplus, ladu ja büroo ühe katuse alla
- paindlikud võimalused ja personaalne koostöö arendajaga
Hoonest:
- palju loomulikku valgust - klaasfassaad, katuseaknad ja LED-valgustus
- müügipindadel on soojustagastusega ventilatsioon ning autonoomsed jahutusseadmed
- ruume köetakse kaugküttega, mis tagab mugava sisekliima ning talvel mõistlikud kõrvalkulud
- igal üüripinnal on eraldi vee- ja elektriarvestid, veeühenduse ja kanalisatsiooni valmidus ning põrandas trapid
- nutiseadmetega kaugjuhitav valve-, video- ja ligipääsusüsteem
- optiline valguskaabel
- kinnistul on kokku 100+ parkimiskohta, lisaks elektriautode laadimisjaamad ja nõuetekohane rattaparkla
Üüritavate pindade suurused on 350 m² kuni 800 m². Pindasid saab omavahel liita. Küsige täpsemat pakkumist vastavalt Teie ettevõtte vajadustele.
Pakkumise galeriis on toodud välja korruste joonised ja asendiplaan.
Üürihinnale lisanduvad kõrvalkulud ja käibemaks. Pakkumine on Teile vahendustasuta.
Võtke julgelt ühendust, et küsida lisainfot, täpsemat pakkumist, hoone jooniseid või huvi korral kohtumist ja projekti lähemat tutvustamist.
Mäealuse 10 teiste pakkumistega saate tutvuda siin - https://re.ee/kinnisvaraprojekt/aripinnad/stockoffice/maealuse-10/
RE Kinnisvara AS on tegutsenud 1995. aastast, olles üks vanimaid Eesti kinnisvaraettevõtteid.
Pakume kinnisvaraga seotud täisteenust:
- äri- ja elamispindade maaklerteenus
- kinnisvara hindamine laenu tagatiseks, sh kohtutele, finantsaruandluseks jne.
- äri- ja elukondlike arendusprojektide müügikorraldus
- kinnisvaraturu ja -projektide analüüs ja konsultatsioon
- kinnisvara seadustamine
Teeme koostööd kõigi Eesti pankade ja finantsasutustega. Meie eksperthinnangud on aktsepteeritud kõigi Eestis tegutsevate krediidiasutuste poolt.
Tutvu lähemalt re.ee.
RE Kinnisvara AS – PARIM OSA KINNISVARAST
Helista 66 88 666 või saada e-mail ***@***.ee
https://facebook.com/re.kinnisvara
https://www.instagram.com/rekinnisvara/
https://ee.linkedin.com/company/re-kinnisvara
Üürile anda äripind nr 2 suurusega 809,1 m². Esimese korruse pind on suurusega 669,5 m² ja teise korruse büroo on suurusega 139,6 m².
Pinnale viivad kaks tõstust mõõtudega 3,5 m (laius) x 4,2 m (kõrgus), mis võimaldab ka veokiga sissesõitu.
Miks kolida Mäealuse 10 ärimajja?
- tegu on ainsa stockoffice-tüüpi hoonega, mis valmib 2025. aastal Tallinna linnas
- eristuge konkurentidest asudes uues silmapaistvas kaasaegse arhitektuuriga hoones
- kolm ühes lahendus - koondage kauplus, ladu ja büroo ühe katuse alla
- paindlikud võimalused ja personaalne koostöö arendajaga
Hoonest:
- palju loomulikku valgust - klaasfassaad, katuseaknad ja LED-valgustus
- müügipindadel on soojustagastusega ventilatsioon ning autonoomsed jahutusseadmed
- ruume köetakse kaugküttega, mis tagab mugava sisekliima ning talvel mõistlikud kõrvalkulud
- igal üüripinnal on eraldi vee- ja elektriarvestid, veeühenduse ja kanalisatsiooni valmidus ning põrandas trapid
- nutiseadmetega kaugjuhitav valve-, video- ja ligipääsusüsteem
- optiline valguskaabel
- kinnistul on kokku 100+ parkimiskohta, lisaks elektriautode laadimisjaamad ja nõuetekohane rattaparkla
Üüritavate pindade suurused on 350 m² kuni 800 m². Pindasid saab omavahel liita. Küsige täpsemat pakkumist vastavalt Teie ettevõtte vajadustele.
Pakkumise galeriis on toodud välja korruste joonised ja asendiplaan.
Üürihinnale lisanduvad kõrvalkulud ja käibemaks. Pakkumine on Teile vahendustasuta.
Võtke julgelt ühendust, et küsida lisainfot, täpsemat pakkumist, hoone jooniseid või huvi korral kohtumist ja projekti lähemat tutvustamist.
Mäealuse 10 teiste pakkumistega saate tutvuda siin - https://re.ee/kinnisvaraprojekt/aripinnad/stockoffice/maealuse-10/
RE Kinnisvara AS on tegutsenud 1995. aastast, olles üks vanimaid Eesti kinnisvaraettevõtteid.
Pakume kinnisvaraga seotud täisteenust:
- äri- ja elamispindade maaklerteenus
- kinnisvara hindamine laenu tagatiseks, sh kohtutele, finantsaruandluseks jne.
- äri- ja elukondlike arendusprojektide müügikorraldus
- kinnisvaraturu ja -projektide analüüs ja konsultatsioon
- kinnisvara seadustamine
Teeme koostööd kõigi Eesti pankade ja finantsasutustega. Meie eksperthinnangud on aktsepteeritud kõigi Eestis tegutsevate krediidiasutuste poolt.
Tutvu lähemalt re.ee.
RE Kinnisvara AS – PARIM OSA KINNISVARAST
Helista 66 88 666 või saada e-mail ***@***.ee
https://facebook.com/re.kinnisvara
https://www.instagram.com/rekinnisvara/
https://ee.linkedin.com/company/re-kinnisvara






























