Üürile anda väga hea asukohaga büroopind aadressil Estonia pst 9/Rävala pst 12.
Pind asetseb Solarise keskuse viiendal korrusel. Äripind omab akendest suurepärast vaadet Rävala puiesteele.
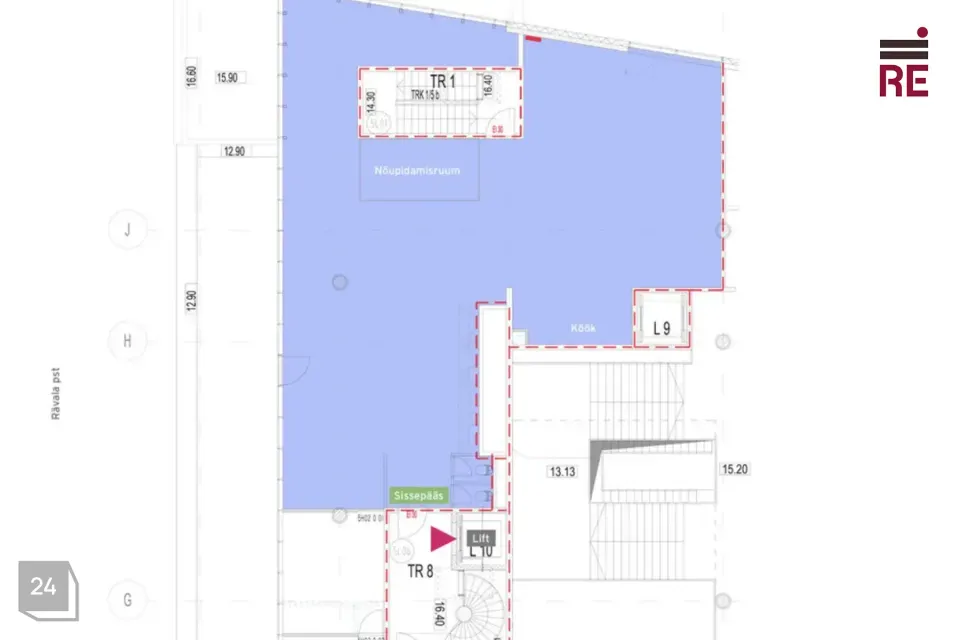
Äripind on avatud planeeringuga kus on kaks avatud tööala, koosolekuruum ja kööginurk. Pildi galeriis on äripinna plaan.
Modernses hoones on olemas kaasaegne sundventilatsioon ja kliimaseade. Samuti on olemas kiire internetiühendus ning erinevad turvalisust pakkuvad lahendused.
Parkimine on lahendatud hoone all asuvas parklas.
Lisaks on paari minutilise jalutuskäigu kaugusel ühistranspordipeatused mis tagavad kiire ja lihtsa liikumise linna igasse suunda.
Üürihinnale lisanduvad käibemaks ja lisakulud.
Pakkumine on vahendustasuta.
Antud hoones on pakkuda ka teisi erineva suurusega büroopindasid.
Tutvuge teiste pakkumistega siin: https://re.ee/kinnisvaraprojekt/aripinnad/buroopinnad-arihooned/estonia-pst-9/
Huvi korral annan meeleldi lisainfot ja korraldan objekti külastuse.
Kui antud objekt ei ole see mida otsite, siis andke oma soovist teada ja leiame just teile sobiva pinna.
RE Kinnisvara AS on tegutsenud 1995. aastast, olles üks vanimaid Eesti kinnisvaraettevõtteid.
Pakume kinnisvaraga seotud täisteenust:
- äri- ja elamispindade maaklerteenus
- kinnisvara hindamine laenu tagatiseks, sh kohtutele, finantsaruandluseks jne.
- äri- ja elukondlike arendusprojektide müügikorraldus
- kinnisvaraturu ja -projektide analüüs ja konsultatsioon
- kinnisvara seadustamine
Teeme koostööd kõigi Eesti pankade ja finantsasutustega. Meie eksperthinnangud on aktsepteeritud kõigi Eestis tegutsevate krediidiasutuste poolt.
Tutvu lähemalt re.ee.
RE Kinnisvara AS – PARIM OSA KINNISVARAST
Helista 66 88 666 või saada e-mail ***@***.ee
https://facebook.com/re.kinnisvara
https://www.instagram.com/rekinnisvara/
https://ee.linkedin.com/company/re-kinnisvara
Pind asetseb Solarise keskuse viiendal korrusel. Äripind omab akendest suurepärast vaadet Rävala puiesteele.
Äripind on avatud planeeringuga kus on kaks avatud tööala, koosolekuruum ja kööginurk. Pildi galeriis on äripinna plaan.
Modernses hoones on olemas kaasaegne sundventilatsioon ja kliimaseade. Samuti on olemas kiire internetiühendus ning erinevad turvalisust pakkuvad lahendused.
Parkimine on lahendatud hoone all asuvas parklas.
Lisaks on paari minutilise jalutuskäigu kaugusel ühistranspordipeatused mis tagavad kiire ja lihtsa liikumise linna igasse suunda.
Üürihinnale lisanduvad käibemaks ja lisakulud.
Pakkumine on vahendustasuta.
Antud hoones on pakkuda ka teisi erineva suurusega büroopindasid.
Tutvuge teiste pakkumistega siin: https://re.ee/kinnisvaraprojekt/aripinnad/buroopinnad-arihooned/estonia-pst-9/
Huvi korral annan meeleldi lisainfot ja korraldan objekti külastuse.
Kui antud objekt ei ole see mida otsite, siis andke oma soovist teada ja leiame just teile sobiva pinna.
RE Kinnisvara AS on tegutsenud 1995. aastast, olles üks vanimaid Eesti kinnisvaraettevõtteid.
Pakume kinnisvaraga seotud täisteenust:
- äri- ja elamispindade maaklerteenus
- kinnisvara hindamine laenu tagatiseks, sh kohtutele, finantsaruandluseks jne.
- äri- ja elukondlike arendusprojektide müügikorraldus
- kinnisvaraturu ja -projektide analüüs ja konsultatsioon
- kinnisvara seadustamine
Teeme koostööd kõigi Eesti pankade ja finantsasutustega. Meie eksperthinnangud on aktsepteeritud kõigi Eestis tegutsevate krediidiasutuste poolt.
Tutvu lähemalt re.ee.
RE Kinnisvara AS – PARIM OSA KINNISVARAST
Helista 66 88 666 või saada e-mail ***@***.ee
https://facebook.com/re.kinnisvara
https://www.instagram.com/rekinnisvara/
https://ee.linkedin.com/company/re-kinnisvara




















