YIT kontserni poolt väljatöötatud auto-moto valdkonna tegevuseks sobiva ärihoone “MotorCenter” kontseptsiooni alusel on tänaseks Tallinnasse ehitatud kolm edukalt toimivat esindust: MotorCenter Peetri, MotorCenter Lasnamäe ja MotorCenter Tähesaju. Külastajate heakskiidu leidnud keskuste eduloost innustatult on YIT alustanud uue MotorCenter keskuse rajamist Mustamäel aadressil Kivikülvi tn. 9.
Mustamäe Kadaka tee piirkond on atraktiivne asukoht äri- ja teenindusettevõttetele kuna see on tiheda liiklusega ühendusteeks Tallinna kesklinna ja läänepoolsete linnaosade ning lähivaldadega (Mustamäe, Õismäe, Nõmme, Tabasalu ). Stratumi andmetel läbib antud piirkonda iga päev 17 600 sõidukit. MotorCenter Kadaka asub Tallinna kesklinnast vaid 6 km kaugusel ja on mugavalt ligipääsetav nii isikliku kui ka ühistranspordiga.
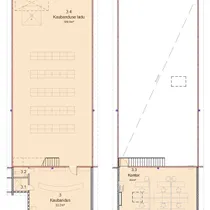
Ligikaudu 3 100m² suuruse „MotorCenter Kadaka“ esinduslikumas klaasfassaadiga hoone osas hakkab paiknema kuni 5 kaubanduse ja „stock-office“ pinda (suurustega 250 – 360m²), mis mõeldud laiemale ettevõtete ringile kel vajadus ühes asukohas paikneva kaubanduse, lao- ja kontoripinna järele. Hoone teine osa on mõeldud sõiduki teeninduse ruumidele (suurustega 200 – 420m²), nagu autopesula, tehnoülevaatus, rehvivahetus, remonditöökoda, autohooldus, jne.
MotorCenteris pakutavad äripinnad omavad eraldi sissepääse ning on kohandatavad vastama üürnike vajadustele.
Vaata lisaks: https://www.yit.ee/motorcenter-kadaka
Mustamäe Kadaka tee piirkond on atraktiivne asukoht äri- ja teenindusettevõttetele kuna see on tiheda liiklusega ühendusteeks Tallinna kesklinna ja läänepoolsete linnaosade ning lähivaldadega (Mustamäe, Õismäe, Nõmme, Tabasalu ). Stratumi andmetel läbib antud piirkonda iga päev 17 600 sõidukit. MotorCenter Kadaka asub Tallinna kesklinnast vaid 6 km kaugusel ja on mugavalt ligipääsetav nii isikliku kui ka ühistranspordiga.
Ligikaudu 3 100m² suuruse „MotorCenter Kadaka“ esinduslikumas klaasfassaadiga hoone osas hakkab paiknema kuni 5 kaubanduse ja „stock-office“ pinda (suurustega 250 – 360m²), mis mõeldud laiemale ettevõtete ringile kel vajadus ühes asukohas paikneva kaubanduse, lao- ja kontoripinna järele. Hoone teine osa on mõeldud sõiduki teeninduse ruumidele (suurustega 200 – 420m²), nagu autopesula, tehnoülevaatus, rehvivahetus, remonditöökoda, autohooldus, jne.
MotorCenteris pakutavad äripinnad omavad eraldi sissepääse ning on kohandatavad vastama üürnike vajadustele.
Vaata lisaks: https://www.yit.ee/motorcenter-kadaka










