На основе разработанной концерном YIT Group концепции подходящего для автомобильной промышленности коммерческого здания «MotorCenter» в Таллинне на сегодняшний день построено три успешно работающих представительства: MotorCenter Peetri, MotorCenter Lasnamäe и MotorCenter Tähesaju. Вдохновленная историей успеха центров, получивших одобрение посетителей, компания YIT начала строительство нового центра MotorCenter в Мустамяэ на улице Кивикюльви. 9.
Район Мустамяэ Кадака теэ является привлекательным местом для предприятий и сферы услуг, поскольку это оживленная дорога, соединяющая центр Таллина с западными районами и близлежащими волостами (Мустамяэ, Ыйсмяэ, Нымме, Табасалу). По данным Stratum, ежедневно через этот район проезжает 17 600 транспортных средств. MotorCenter Kadaka расположен всего в 6 км от центра Таллина и до него удобно добираться как на личном, так и на общественном транспорте.
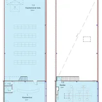
В здании «MotorCenter Kadaka» площадью около 3100 м² с более представительным стеклянным фасадом разместятся до 5 торговых и «офисных» помещений (площадью 250–360 м²), предназначенных для более широкого круга компаний, которым требуются торговые, складские и офисные помещения в одном месте. Вторая часть здания предназначена для помещений для обслуживания транспортных средств (площадью 200–420 м²), таких как автомойка, технический осмотр, замена шин, ремонтная мастерская, техническое обслуживание автомобилей и т. д.
Коммерческие помещения, предлагаемые в MotorCenter, имеют отдельный вход и легко адаптируются под нужды арендаторов.
См. также: https://www.yit.ee/motorcenter-kadaka
Район Мустамяэ Кадака теэ является привлекательным местом для предприятий и сферы услуг, поскольку это оживленная дорога, соединяющая центр Таллина с западными районами и близлежащими волостами (Мустамяэ, Ыйсмяэ, Нымме, Табасалу). По данным Stratum, ежедневно через этот район проезжает 17 600 транспортных средств. MotorCenter Kadaka расположен всего в 6 км от центра Таллина и до него удобно добираться как на личном, так и на общественном транспорте.
В здании «MotorCenter Kadaka» площадью около 3100 м² с более представительным стеклянным фасадом разместятся до 5 торговых и «офисных» помещений (площадью 250–360 м²), предназначенных для более широкого круга компаний, которым требуются торговые, складские и офисные помещения в одном месте. Вторая часть здания предназначена для помещений для обслуживания транспортных средств (площадью 200–420 м²), таких как автомойка, технический осмотр, замена шин, ремонтная мастерская, техническое обслуживание автомобилей и т. д.
Коммерческие помещения, предлагаемые в MotorCenter, имеют отдельный вход и легко адаптируются под нужды арендаторов.
См. также: https://www.yit.ee/motorcenter-kadaka










