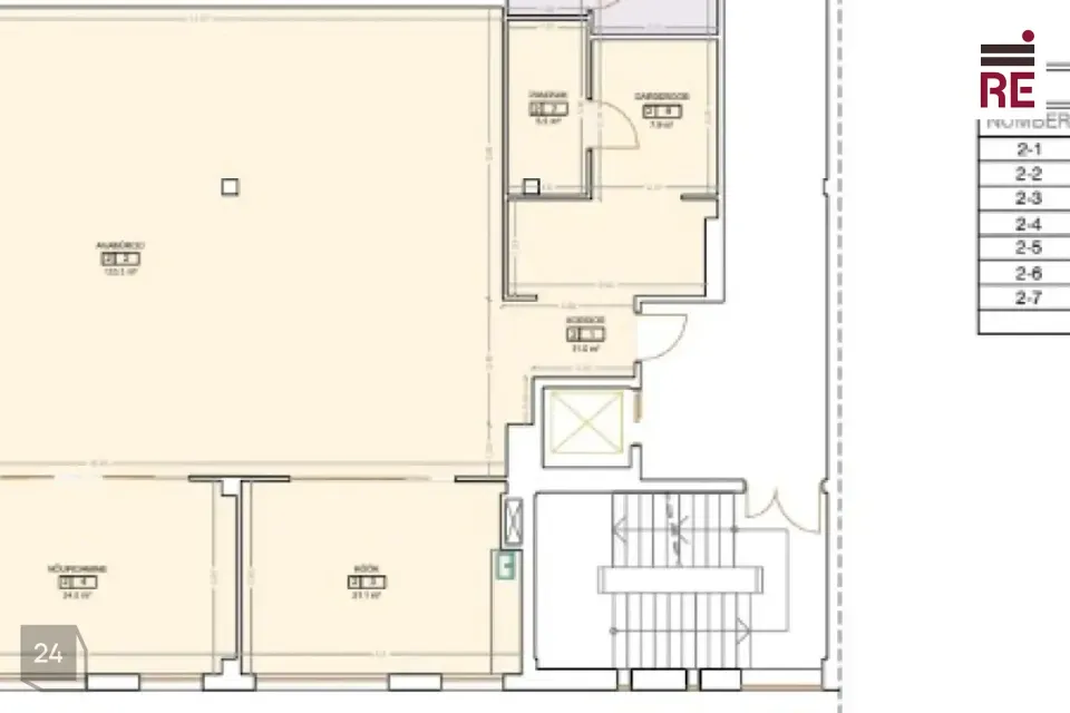
Üürile anda 223,9 m² suurune büroopind Meistri 22 ärihoones. Pind asub hoone teisel korrusel.
Pinnal on vastuvõtuala garderoobiga, kaks kabinetti, köök ja avatud tööala. Lisaks kaks panipaika, kus ühes on veeühendus. Mööblivõimalus kokkuleppel.
Majas on lift, keskküte, tsentraalne jahutus- ja ventilatsioonisüsteem.
Hoone on varustatud kaasaegsete kommunikatsiooni- ja sidesüsteemidega.
Maja ees on tasuta parkimine üürnikele ja külalistele.
Ruumidesse on ööpäevaringne ligipääs.
Maja fassaadile on võimalik paigaldada ettevõtte reklaam.
Tänu aktiivse liiklusega Ehitajate teele, on tagatud hea ligipääs nii auto kui ka ühistranspordiga.
2018. aasta suvel läbis hoone põhjalikud värskendustööd.
Üürihinnale lisanduvad kõrvalkulud ja käibemaks.
Pakkumine on Teile vahendustasuta.
Huvi korral annan lisainformatsiooni ja korraldan objekti külastuse.
Kõik pakkumised ei ole avalikud! Hoones on pakkuda vabasid äripindasid suuruses 57.4-485 m². Meil on infot kõikide hoones asuvate äripindade kohta. Võta ühendust ja leiame Teile sobiva lahenduse!
Tutvuge Meistri tn 22 hoone ja teiste pakkumistega: http://re.ee/projektid/aripinnad/meistri-22
RE Kinnisvara AS on tegutsenud 1995. aastast, olles üks vanimaid Eesti kinnisvaraettevõtteid.
Pakume kinnisvaraga seotud täisteenust:
- äri- ja elamispindade maaklerteenus
- kinnisvara hindamine laenu tagatiseks, sh kohtutele, finantsaruandluseks jne.
- äri- ja elukondlike arendusprojektide müügikorraldus
- kinnisvaraturu ja -projektide analüüs ja konsultatsioon
- kinnisvara seadustamine
Teeme koostööd kõigi Eesti pankade ja finantsasutustega. Meie eksperthinnangud on aktsepteeritud kõigi Eestis tegutsevate krediidiasutuste poolt.
Tutvu lähemalt re.ee.
RE Kinnisvara AS – PARIM OSA KINNISVARAST
Helista 66 88 666 või saada e-mail ***@***.ee
https://facebook.com/re.kinnisvara
https://www.instagram.com/rekinnisvara/
https://ee.linkedin.com/company/re-kinnisvara
Pinnal on vastuvõtuala garderoobiga, kaks kabinetti, köök ja avatud tööala. Lisaks kaks panipaika, kus ühes on veeühendus. Mööblivõimalus kokkuleppel.
Majas on lift, keskküte, tsentraalne jahutus- ja ventilatsioonisüsteem.
Hoone on varustatud kaasaegsete kommunikatsiooni- ja sidesüsteemidega.
Maja ees on tasuta parkimine üürnikele ja külalistele.
Ruumidesse on ööpäevaringne ligipääs.
Maja fassaadile on võimalik paigaldada ettevõtte reklaam.
Tänu aktiivse liiklusega Ehitajate teele, on tagatud hea ligipääs nii auto kui ka ühistranspordiga.
2018. aasta suvel läbis hoone põhjalikud värskendustööd.
Üürihinnale lisanduvad kõrvalkulud ja käibemaks.
Pakkumine on Teile vahendustasuta.
Huvi korral annan lisainformatsiooni ja korraldan objekti külastuse.
Kõik pakkumised ei ole avalikud! Hoones on pakkuda vabasid äripindasid suuruses 57.4-485 m². Meil on infot kõikide hoones asuvate äripindade kohta. Võta ühendust ja leiame Teile sobiva lahenduse!
Tutvuge Meistri tn 22 hoone ja teiste pakkumistega: http://re.ee/projektid/aripinnad/meistri-22
RE Kinnisvara AS on tegutsenud 1995. aastast, olles üks vanimaid Eesti kinnisvaraettevõtteid.
Pakume kinnisvaraga seotud täisteenust:
- äri- ja elamispindade maaklerteenus
- kinnisvara hindamine laenu tagatiseks, sh kohtutele, finantsaruandluseks jne.
- äri- ja elukondlike arendusprojektide müügikorraldus
- kinnisvaraturu ja -projektide analüüs ja konsultatsioon
- kinnisvara seadustamine
Teeme koostööd kõigi Eesti pankade ja finantsasutustega. Meie eksperthinnangud on aktsepteeritud kõigi Eestis tegutsevate krediidiasutuste poolt.
Tutvu lähemalt re.ee.
RE Kinnisvara AS – PARIM OSA KINNISVARAST
Helista 66 88 666 või saada e-mail ***@***.ee
https://facebook.com/re.kinnisvara
https://www.instagram.com/rekinnisvara/
https://ee.linkedin.com/company/re-kinnisvara















