Üürile on anda 358,2 m² büroopind Tallinna kesklinnas, aadressil Rävala pst 2.
BÜROOPINNA INFO
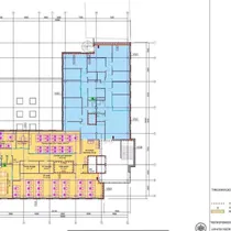
Pakutav büroo hõlmab ärihoone pool 3. korrust.
Pinnal on avatud planeeringuga tööalad, samuti erinevas suuruses nõupidamisruumid. Olemas on kööginurk ja tualettruumid. Vajadusel saab ruumilahendust muuta vastavalt üürniku vajadustele.
Ruumipõhine temperatuuri ja ventilatsiooni reguleerimine.
Büroohoone väli fassaadile on võimalik paigaldada ettevõtte logo.
Üürihinnale lisanduvad kõrvalkulud ja käibemaks.
PARKIMINE
Üürnikel on võimalus üürida parkimiskohad hoonega ümbritsetud parkimismajades ja maa-aluses parklas.
Lisaks ka linna avalik parkimine.
AVALIK RUUM JA KESKKOND
Rävala 2 ärihoone asub Tallinna ärikeskkonna CBD (Central Business District) südames. Mõne minutilise jalatuskäigu kaugusel asuvad linna olulisemad kaubanduskeskused (Stockmann, Tallinna Kaubamaja, Viru Keskus), mitmed konverentsikeskustega hotellid (Swissôtel, Radisson Collection, Hilton Tallinn Park), hulk restorane ja kohvikuid.
Mugav ja kiire ühendus Tallinna sadamaga ja lennujaamaga.
BÜROOHOONE
Moodne hoone on harmooniliselt sulandunud väärtuslike ajalooliste hoonete keskkonda. Kvartalis on kokku üle 25 000 m² üüritavat pinda, lisaks büroodele kaubanduspinnad ja söögikohad.
Esimesel korrusel asub kohvik ja toitlustus.
Hoones on kaks kiiret lifti.
SOOVITAN SEDA BÜROOPINDA SEST:
- Esinduslik ja hinnatud büroohoone;
- Mugav ja töötajasõbralik ruumilahendus;
- Võimalik saada valmis lahendus, soovi korral koos mööbliga;
Üürihind 15 EUR/m², millele lisandub käibemaks ja kõrvalkulud.
Colliersi pakkumised on üürnikele vahendustasuta!
Helista või kirjuta mulle, lähme vaatama - aitan leida parima lahenduse!
Maido Kalviste
Colliers
BÜROOPINNA INFO
Pakutav büroo hõlmab ärihoone pool 3. korrust.
Pinnal on avatud planeeringuga tööalad, samuti erinevas suuruses nõupidamisruumid. Olemas on kööginurk ja tualettruumid. Vajadusel saab ruumilahendust muuta vastavalt üürniku vajadustele.
Ruumipõhine temperatuuri ja ventilatsiooni reguleerimine.
Büroohoone väli fassaadile on võimalik paigaldada ettevõtte logo.
Üürihinnale lisanduvad kõrvalkulud ja käibemaks.
PARKIMINE
Üürnikel on võimalus üürida parkimiskohad hoonega ümbritsetud parkimismajades ja maa-aluses parklas.
Lisaks ka linna avalik parkimine.
AVALIK RUUM JA KESKKOND
Rävala 2 ärihoone asub Tallinna ärikeskkonna CBD (Central Business District) südames. Mõne minutilise jalatuskäigu kaugusel asuvad linna olulisemad kaubanduskeskused (Stockmann, Tallinna Kaubamaja, Viru Keskus), mitmed konverentsikeskustega hotellid (Swissôtel, Radisson Collection, Hilton Tallinn Park), hulk restorane ja kohvikuid.
Mugav ja kiire ühendus Tallinna sadamaga ja lennujaamaga.
BÜROOHOONE
Moodne hoone on harmooniliselt sulandunud väärtuslike ajalooliste hoonete keskkonda. Kvartalis on kokku üle 25 000 m² üüritavat pinda, lisaks büroodele kaubanduspinnad ja söögikohad.
Esimesel korrusel asub kohvik ja toitlustus.
Hoones on kaks kiiret lifti.
SOOVITAN SEDA BÜROOPINDA SEST:
- Esinduslik ja hinnatud büroohoone;
- Mugav ja töötajasõbralik ruumilahendus;
- Võimalik saada valmis lahendus, soovi korral koos mööbliga;
Üürihind 15 EUR/m², millele lisandub käibemaks ja kõrvalkulud.
Colliersi pakkumised on üürnikele vahendustasuta!
Helista või kirjuta mulle, lähme vaatama - aitan leida parima lahenduse!
Maido Kalviste
Colliers














