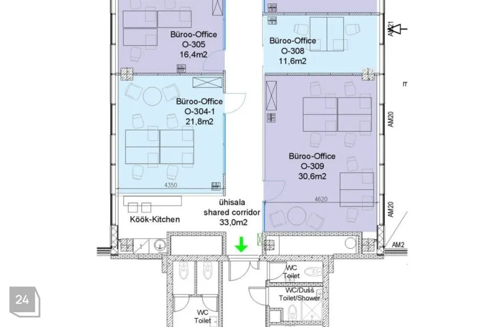
Kuu üüris sisalduvad kõik kõrvalkulud sh. koristus 1x nädalas ja 8h koosolekuruumide kasutust teistes HUB’ides. Joonisel on pinna tähiseks O-307.
Lõõtsa 8a Ülemiste City HUB väikekontorite ala, on loodud kompaktsetele meeskondadele ja kasvavatele ettevõtetele, kes ei vaja tegutsemiseks kohe suurt pinda. Privaatsed üüripinnad on möbleeritud ning HUB’i avalikus alas on jagatud kasutusega köök. HUB’i leping anna ligipääsu maja vastuvõtuassistendi teenusele ja kõigile Ülemiste City võimalustele. HUB'i klientidele pakutavad üüritingimused on paindlikud ja võimaldavad ettevõttel lihtsalt kasvada samas hoone või ka teistesse Ülemiste City büroohoonetesse, lepingu perioodi jooksul. Sinu privaatses möbleeritud HUB kontoris on 4 töökohta.
NURKSE KOLMIKTORN:
Lõõtsa 8A kolmiktornid valmisid 2013. aasta detsembris ja kannavad rahvusvaheliselt tunnustatud Eesti päritolu majandusteadlase Ragnar Nurkse nime.
Lõõtsa tänava poolses A-tornis asub avar ja esinduslik fuajee. Hoone esimesel korrusel asuvad teeninduspinnad ja bürood. Teisest korrusest kõrgemal asuvatesse bürooruumidesse pääseb mugavalt iga torni keskel paiknevast liftihallist. Maja kõikidele korrustel on spordisõpradele rajatud üldkasutatavad duširuumid. Hoonesse on sissepääs tagatud 24/7.
Nurkse maja on tänapäevaste tehnoloogiliste lahendustega, mis tagavad hea ja kliendile sobiva sisekliima. Kõikides ruumides on mehhaaniline sisse- ja väljapuhkeventilatsioon koos jahutussüsteemiga. Majad on energiatõhusad, kaalutud energiakasutuse klass on ”C”. Nurkse kolmiktornile on väljastatud LEED Gold sertifikaat.
***
ASUKOHT
Ülemiste City asub transpordivõimaluste tuiksoonel, mille ühel küljel on Tallinna lennujaam, teisel aga tulevane Rail Baltica terminal ja uus bussijaam. Sadam jääb linnakust vaid kümne minuti autosõidu kaugusele ning Peterburi teele ja Tartu maanteele saad keerata otse kvartalist väljudes.
Siia saab igast linnajaost mugavalt bussiga ja ka rongiga, säästes nii linnaruumi kui loodust. Hetkel on trammiliin peatatud, kuid avatakse taas 2026. aastal.
Uuri lähemalt https://www.ulemistecity.ee/kuidas-tulla/
LINNAKU TOITLUSTUS JA TEENUSED
Ülemiste Citys on enam kui 10 erinevat lõunarestorani, mis pakuvad mitmekesiseid maitseelamusi kogu maailmast. Lisaks kaks R-Kioski ja suuremateks ostudeks Selver ABC, kus on rikkalik sooja toidu ja salatilett. Linnakus on ka spordiklubi, suurel hulgal rattaparklaid ja laialt ilu- ja vaba aja teenuseid ning kaunid pargid, kus lõõgastuda või lõunat süüa. Lühikese jalutuskäigu kaugusele jääv Ülemiste keskus pakub veel lisaks laia valikut restorane, poode ja teenuseid.
MUGAV PARKIMINE
Ülemiste City autoparklad mahutavad kokku üle 3300 sõiduauto ja parkimiskoht ei jää kontorihoonest kaugemale kui 150 m. Üüripinna parkimine on lahendatud parkimismajades ja soovitud tasuliste parkimiskohtade arv lisatakse üürihinnale. Lisaks parkimismajadele, kus külalistel on 1h tasuta parkimist, on linnakus ka suured väliparklad, kus külalistele on parkimine parkimiskellaga 2h tasuta.
TUGITEENUSED
Uue asukohaga kaasneb tavaliselt palju sekeldusi. Kes koristab kontorit? Kes aitab sisekujundusega? Kes lööb naela seina või kus saab käia poes, juuksuris või spordiklubis? Ülemiste linnakus oleme need probleemid lahendanud sinu eest.
Ülemiste City hoonetes on olemas konverentsi- ja koosolekuruumid koos toitlustusega; vastuvõtulaua assistendid, kes tervitavad külalisi ja aitavad murede korral; koristus- ja hooldusteenus koos meistrimehega; LED-ekraanid selleks, et saaksid oma ettevõtte teha nähtavaks ja kaasata uusi kliente; riietus- ja duširuumid sportliku eluviisi toetamiseks; hulgaliselt turvalisi rattaparklaid, samuti sisekujundaja, et kontori ruumilahendus toetaks tööstiili. Kõike ikka selleks, et saaksid tegeleda oma tähtsate tööülesannetega ja kontor oleks täpselt selline, nagu sinu ettevõttel vaja.
VISIOONIGA LINN
Ülemiste City on rahvusvaheline ja mitmekesine keskkond, mille keskmes on talentidele loodud teadmispõhise töö-, arengu- ja elukeskkonna arendamine, mis toetab iga kogukonna liikme konkurentsivõimet maailmas, meelitab lahkunud talendid tagasi koju ning inspireerib uute ärimudelite teket. Ülemiste City on ühtselt hingav tervik, mis pakub inspireerivat keskkonda kohalikele ja välistalentidele ning loob samas viljaka kasvulava tulevikutegijatele ja innovaatoritele.
Ülemiste City näol on ajaloolisele tööstuspiirkonnale antud uus elu ja hingamine. Siin paiknevad kõrvuti 19. sajandi tööstusarhitektuur ja modernne linnaruum, mis on kasvatanud Ülemiste City Baltimaade suurimaks ja kõige kiiremini arenevaks ärilinnakuks.
ARENDAJA
Mainor Ülemiste, Eesti suurim ärikinnisvara arendaja, on pika ajalooga Mainor Grupi tütarettevõte. Mainor Ülemiste põhitegevus on Baltimaade suurima ärilinnaku, rahvusvahelise haardega atraktiivse ja teadmispõhise Ülemiste City arendamine.
KOGUKOND
Aastas toimub Ülemiste Citys üle 100 erineva sündmuse – konverentsid, kontserdid, spordiüritused, näitused, peod, häkid, seminarid, live-ülekanded, töötoad ning palju muud põnevat. Populaarseimad iga-aastased sündmuse on Business Triathlon, Kogukonnapäev, Business Breakfast, Tervisekuu ja Tänavatoidupäevad.
Ülemiste City kogukonnafond võimaldab üheskoos kiiremini eesmärke täita ja siinsetel talentidel linnaku arengus kaasa rääkida ja ise osaleda. Meie kogukonna liikmete jaoks on loodud turundus- ja HR võrgustikud, mis käivad koos pea igakuiselt.
Igal talendil peab olema võimalus kasvada ja avastada oma tõelist potentsiaali. Meie ülesanne on seda võimaldada. Kui olla osa kogukonnast, lüüa kaasa uute tehnoloogiate testimisel või rohelisema tuleviku loomisel, siis see kogukond on sulle!
Vaata lisaks ulemistecity.ee
Lõõtsa 8a Ülemiste City HUB väikekontorite ala, on loodud kompaktsetele meeskondadele ja kasvavatele ettevõtetele, kes ei vaja tegutsemiseks kohe suurt pinda. Privaatsed üüripinnad on möbleeritud ning HUB’i avalikus alas on jagatud kasutusega köök. HUB’i leping anna ligipääsu maja vastuvõtuassistendi teenusele ja kõigile Ülemiste City võimalustele. HUB'i klientidele pakutavad üüritingimused on paindlikud ja võimaldavad ettevõttel lihtsalt kasvada samas hoone või ka teistesse Ülemiste City büroohoonetesse, lepingu perioodi jooksul. Sinu privaatses möbleeritud HUB kontoris on 4 töökohta.
NURKSE KOLMIKTORN:
Lõõtsa 8A kolmiktornid valmisid 2013. aasta detsembris ja kannavad rahvusvaheliselt tunnustatud Eesti päritolu majandusteadlase Ragnar Nurkse nime.
Lõõtsa tänava poolses A-tornis asub avar ja esinduslik fuajee. Hoone esimesel korrusel asuvad teeninduspinnad ja bürood. Teisest korrusest kõrgemal asuvatesse bürooruumidesse pääseb mugavalt iga torni keskel paiknevast liftihallist. Maja kõikidele korrustel on spordisõpradele rajatud üldkasutatavad duširuumid. Hoonesse on sissepääs tagatud 24/7.
Nurkse maja on tänapäevaste tehnoloogiliste lahendustega, mis tagavad hea ja kliendile sobiva sisekliima. Kõikides ruumides on mehhaaniline sisse- ja väljapuhkeventilatsioon koos jahutussüsteemiga. Majad on energiatõhusad, kaalutud energiakasutuse klass on ”C”. Nurkse kolmiktornile on väljastatud LEED Gold sertifikaat.
***
ASUKOHT
Ülemiste City asub transpordivõimaluste tuiksoonel, mille ühel küljel on Tallinna lennujaam, teisel aga tulevane Rail Baltica terminal ja uus bussijaam. Sadam jääb linnakust vaid kümne minuti autosõidu kaugusele ning Peterburi teele ja Tartu maanteele saad keerata otse kvartalist väljudes.
Siia saab igast linnajaost mugavalt bussiga ja ka rongiga, säästes nii linnaruumi kui loodust. Hetkel on trammiliin peatatud, kuid avatakse taas 2026. aastal.
Uuri lähemalt https://www.ulemistecity.ee/kuidas-tulla/
LINNAKU TOITLUSTUS JA TEENUSED
Ülemiste Citys on enam kui 10 erinevat lõunarestorani, mis pakuvad mitmekesiseid maitseelamusi kogu maailmast. Lisaks kaks R-Kioski ja suuremateks ostudeks Selver ABC, kus on rikkalik sooja toidu ja salatilett. Linnakus on ka spordiklubi, suurel hulgal rattaparklaid ja laialt ilu- ja vaba aja teenuseid ning kaunid pargid, kus lõõgastuda või lõunat süüa. Lühikese jalutuskäigu kaugusele jääv Ülemiste keskus pakub veel lisaks laia valikut restorane, poode ja teenuseid.
MUGAV PARKIMINE
Ülemiste City autoparklad mahutavad kokku üle 3300 sõiduauto ja parkimiskoht ei jää kontorihoonest kaugemale kui 150 m. Üüripinna parkimine on lahendatud parkimismajades ja soovitud tasuliste parkimiskohtade arv lisatakse üürihinnale. Lisaks parkimismajadele, kus külalistel on 1h tasuta parkimist, on linnakus ka suured väliparklad, kus külalistele on parkimine parkimiskellaga 2h tasuta.
TUGITEENUSED
Uue asukohaga kaasneb tavaliselt palju sekeldusi. Kes koristab kontorit? Kes aitab sisekujundusega? Kes lööb naela seina või kus saab käia poes, juuksuris või spordiklubis? Ülemiste linnakus oleme need probleemid lahendanud sinu eest.
Ülemiste City hoonetes on olemas konverentsi- ja koosolekuruumid koos toitlustusega; vastuvõtulaua assistendid, kes tervitavad külalisi ja aitavad murede korral; koristus- ja hooldusteenus koos meistrimehega; LED-ekraanid selleks, et saaksid oma ettevõtte teha nähtavaks ja kaasata uusi kliente; riietus- ja duširuumid sportliku eluviisi toetamiseks; hulgaliselt turvalisi rattaparklaid, samuti sisekujundaja, et kontori ruumilahendus toetaks tööstiili. Kõike ikka selleks, et saaksid tegeleda oma tähtsate tööülesannetega ja kontor oleks täpselt selline, nagu sinu ettevõttel vaja.
VISIOONIGA LINN
Ülemiste City on rahvusvaheline ja mitmekesine keskkond, mille keskmes on talentidele loodud teadmispõhise töö-, arengu- ja elukeskkonna arendamine, mis toetab iga kogukonna liikme konkurentsivõimet maailmas, meelitab lahkunud talendid tagasi koju ning inspireerib uute ärimudelite teket. Ülemiste City on ühtselt hingav tervik, mis pakub inspireerivat keskkonda kohalikele ja välistalentidele ning loob samas viljaka kasvulava tulevikutegijatele ja innovaatoritele.
Ülemiste City näol on ajaloolisele tööstuspiirkonnale antud uus elu ja hingamine. Siin paiknevad kõrvuti 19. sajandi tööstusarhitektuur ja modernne linnaruum, mis on kasvatanud Ülemiste City Baltimaade suurimaks ja kõige kiiremini arenevaks ärilinnakuks.
ARENDAJA
Mainor Ülemiste, Eesti suurim ärikinnisvara arendaja, on pika ajalooga Mainor Grupi tütarettevõte. Mainor Ülemiste põhitegevus on Baltimaade suurima ärilinnaku, rahvusvahelise haardega atraktiivse ja teadmispõhise Ülemiste City arendamine.
KOGUKOND
Aastas toimub Ülemiste Citys üle 100 erineva sündmuse – konverentsid, kontserdid, spordiüritused, näitused, peod, häkid, seminarid, live-ülekanded, töötoad ning palju muud põnevat. Populaarseimad iga-aastased sündmuse on Business Triathlon, Kogukonnapäev, Business Breakfast, Tervisekuu ja Tänavatoidupäevad.
Ülemiste City kogukonnafond võimaldab üheskoos kiiremini eesmärke täita ja siinsetel talentidel linnaku arengus kaasa rääkida ja ise osaleda. Meie kogukonna liikmete jaoks on loodud turundus- ja HR võrgustikud, mis käivad koos pea igakuiselt.
Igal talendil peab olema võimalus kasvada ja avastada oma tõelist potentsiaali. Meie ülesanne on seda võimaldada. Kui olla osa kogukonnast, lüüa kaasa uute tehnoloogiate testimisel või rohelisema tuleviku loomisel, siis see kogukond on sulle!
Vaata lisaks ulemistecity.ee


















