Üürniku vajadustest lähtuvalt on üürilisi ootamas tootmispinnaks sobiv äripind.
Tööstusvool.
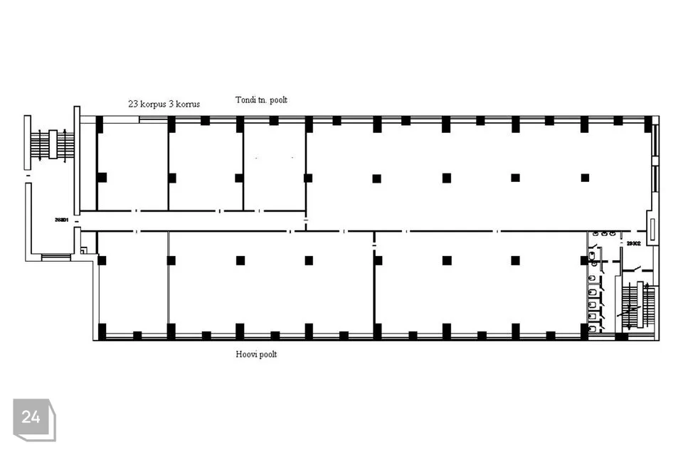
Mitmed praegused vaheseinad on eemaldatavad!
Korralikud põrandad.
Korralikud uued vahetatud aknad.
Äsja on majja paigaldatud uus lift kandevõimega 1 tonn; sobib nii inimeste kui ka kaubaveoks.
Äripinnale on kahelt poolt treppide kaudu ligipääs.
Üürnikele tasuta parkimine.
Parkimiskella alusel on klientidele 2 h tasuta parkimist. Alati leidub vaba parkimisruumi.
Küsi lisa!
Ruumid kohaldatakse vastavalt üürniku vajadustele.
PINDA ON VÕIMALIK JAGADA VÄIKSEMATEKS ÜKSUSTEKS!
Üürihinnale lisandub käibemaks ja tasu kommunaalteenuste eest!
Tööstusvool.
Mitmed praegused vaheseinad on eemaldatavad!
Korralikud põrandad.
Korralikud uued vahetatud aknad.
Äsja on majja paigaldatud uus lift kandevõimega 1 tonn; sobib nii inimeste kui ka kaubaveoks.
Äripinnale on kahelt poolt treppide kaudu ligipääs.
Üürnikele tasuta parkimine.
Parkimiskella alusel on klientidele 2 h tasuta parkimist. Alati leidub vaba parkimisruumi.
Küsi lisa!
Ruumid kohaldatakse vastavalt üürniku vajadustele.
PINDA ON VÕIMALIK JAGADA VÄIKSEMATEKS ÜKSUSTEKS!
Üürihinnale lisandub käibemaks ja tasu kommunaalteenuste eest!










