Üürige kaasaegne ja keskkonnasõbralik kahekorruseline hoone aadressil Viljandi mnt 41B/2 – kogupindalaga 841.2 m². Sobib ideaalselt mitmesuguseks äriliseks kasutuseks, näiteks teeninduskeskuseks, kontoriteks või jaekaubanduseks!
MIKS VALIDA SEE HOONE?
VITRIINAKNAD JA AVARAD KÕRGETE LAGEDEGA RUUMID: Esimene korrus sobib ideaalselt toodete eksponeerimiseks ja klientide teenindamiseks – maast laeni vitriinaknad tagavad suurepärase nähtavuse. Teine korrus on ideaalne büroopinnaks või muuks tööruumiks. Sobib hästi ettevõtetele, kes vajavad nii esitluspinda kui ka praktilist tööruumi.
SUUR PARKLA JA HEA NÄHTAVUS: Hoone ees on avar tasuta parkla. Lisaks kinnise parkimisala võimalus hoone kõrval.
SUUR HULK POTENSIAALSEID KLIENTE: Viljandi maanteel liigub päevas umbes 15 000 sõidukit, pakkudes ettevõttele pidevat nähtavust. COOP ja Magaziin on head naabrid, kes suurendavad klientide hulka.
Fassaadile saab paigaldada reklaami, et brändi veelgi esile tõsta.
ERITI MUGAV KAUBANDUSEKS/TEENINDUSEKS:
Kaks tõstust tänavalt ja üks sisehoovist, hoovis projekteeritud väike välipesula võimalus, kui tegevusala seda vajab.
MUUDA PLANEERINGUT VASTAVALT VAJADUSELE:
veel on võimalus kohandada ja teha muudatusi vastavalt oma ettevõtte vajadustele
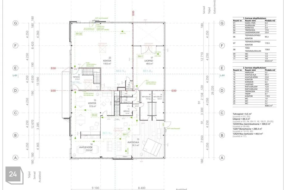
Esimene korrus: 432,6 m² – ideaalne tooteesitluseks, tööruumiks või teeninduseks.
Teine korrus: 408,6 m² – sobilik kontori-, müügi- ja halduspindadeks.
Helista julgelt ja küsi – leian Teile sobiva lahenduse.
Jaga minu kontakti kõigile, kes vajavad kinnisvaranõu!
Liitu meie uudiskirjaga ja saa homset kinnisvarainfot juba täna! Vaata https://arikinnisvara.uusmaa.ee
UUS MAA ÄRIKINNISVARA - aastakümned kogemust ja klientide usaldust, läbimõeldud täisteenus ja suurim arv eksperte: vahendamine, hindamine, haldamine, nõustamine ja investeerimine.
MIKS VALIDA SEE HOONE?
VITRIINAKNAD JA AVARAD KÕRGETE LAGEDEGA RUUMID: Esimene korrus sobib ideaalselt toodete eksponeerimiseks ja klientide teenindamiseks – maast laeni vitriinaknad tagavad suurepärase nähtavuse. Teine korrus on ideaalne büroopinnaks või muuks tööruumiks. Sobib hästi ettevõtetele, kes vajavad nii esitluspinda kui ka praktilist tööruumi.
SUUR PARKLA JA HEA NÄHTAVUS: Hoone ees on avar tasuta parkla. Lisaks kinnise parkimisala võimalus hoone kõrval.
SUUR HULK POTENSIAALSEID KLIENTE: Viljandi maanteel liigub päevas umbes 15 000 sõidukit, pakkudes ettevõttele pidevat nähtavust. COOP ja Magaziin on head naabrid, kes suurendavad klientide hulka.
Fassaadile saab paigaldada reklaami, et brändi veelgi esile tõsta.
ERITI MUGAV KAUBANDUSEKS/TEENINDUSEKS:
Kaks tõstust tänavalt ja üks sisehoovist, hoovis projekteeritud väike välipesula võimalus, kui tegevusala seda vajab.
MUUDA PLANEERINGUT VASTAVALT VAJADUSELE:
veel on võimalus kohandada ja teha muudatusi vastavalt oma ettevõtte vajadustele
Esimene korrus: 432,6 m² – ideaalne tooteesitluseks, tööruumiks või teeninduseks.
Teine korrus: 408,6 m² – sobilik kontori-, müügi- ja halduspindadeks.
Helista julgelt ja küsi – leian Teile sobiva lahenduse.
Jaga minu kontakti kõigile, kes vajavad kinnisvaranõu!
Liitu meie uudiskirjaga ja saa homset kinnisvarainfot juba täna! Vaata https://arikinnisvara.uusmaa.ee
UUS MAA ÄRIKINNISVARA - aastakümned kogemust ja klientide usaldust, läbimõeldud täisteenus ja suurim arv eksperte: vahendamine, hindamine, haldamine, nõustamine ja investeerimine.











