Üürile anda avar köögi- ja puhkenurgaga büroopind Lõõtsa 4 hoone 2. korrusel.
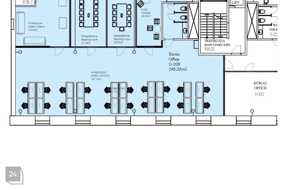
Bürooruumid on avatud planeeringuga, 3 nõupidamisruumi ja oma kööginurgaga.
Büroopinnale mahub 20 - 24 töökohta.
Üürihinnale lisanduvad kõrvalkulud ja käibemaks.
Kõrvalkulud aasta keskmiselt on ca 2.75 eur/m2 + tarbitav elekter ja üüripinna koristus.
KÄISI MAJA
Lõõtsa 4 on 1900.aastal ehitatud endise “Dvigatel” tehase hoone, kus peamiselt tehti nn täppistööd ehk toodeti väiksemaid varuosasid. Kuni 2006.aastani tegutses hoones mööblitsehh, 2006 – 2008 aastatel hoone rekonstrueeriti ja on täna kasutusel kui büroohoone.
Maja on saanud oma nime Eesti loodusõpetuse metoodika ja koolifenoloogia rajaja Johannes Käis järgi. Johannes Käis kui hariduse uuendaja innustas oma ideedega algõpetuses keskenduma lapsele ja elulähedusele.
Renoveeritud paekivihoone jaguneb 3 korpuseks ehk tiivaks. Täielikult paekivist A korpuse kolmel korrusel asub HUB väikekontorite ala, sisehoovis asuvates osalise klaasfassaadiga B ja C korpuses büroopinnad. Samas majas tegutseb ka söögikoht. Hoonesse on sissepääs tagatud kaardisüsteemiga 24/7.
Hoonele on väljastatud LEED Silver sertifikaat.
***
ASUKOHT
Ülemiste City asub transpordivõimaluste tuiksoonel, mille ühel küljel on Tallinna lennujaam, teisel aga tulevane Rail Baltica terminal ja uus bussijaam. Sadam jääb linnakust vaid kümne minuti autosõidu kaugusele ning Peterburi teele ja Tartu maanteele saad keerata otse kvartalist väljudes. Siia saab igast linnajaost mugavalt bussiga ja ka rongiga, säästes nii linnaruumi kui loodust. Hetkel on trammiliin peatatud, kuid avatakse taas 2026. aastal.
Uuri lähemalt https://www.ulemistecity.ee/kuidas-tulla/
LINNAKU TOITLUSTUS JA TEENUSED
Ülemiste Citys on üle 10 erineva restorani, mis pakuvad erinevaid lõunatamise võimalusi ja mitmekesiseid maitseelamusi kogu maailmast. Lisaks kaks R-Kioski ja suuremateks ostudeks Selver ABC, kus on ka rikkalik sooja toidu ja salatilett. Linnakus on ka MyFitnessi spordiklubi koos ujulaga, suurel hulgal rattaparklaid ja laialt ilu- ja vaba aja teenuseid ning kaunid pargid, kus lõõgastuda või lõunat süüa. Lühikese jalutuskäigu kaugusele jääv Ülemiste keskus pakub veel lisaks laia valikut restorane, poode ja teenuseid.
MUGAV PARKIMINE
Ülemiste City autoparklad mahutavad kokku üle 3300 sõiduauto. Üüripindade parkimine on mugavalt lahendatud üüripinna hoonele lähimates parkimismajades ja väliparklates. Külalistel on parkimismajades 1h tasuta parkimist ja väliparklates 2h tasuta.
TUGITEENUSED
Uue asukohaga kaasneb tavaliselt palju sekeldusi. Kes koristab kontorit? Kes aitab sisekujundusega? Kes lööb naela seina või kus saab käia poes, juuksuris või spordiklubis? Ülemiste linnakus oleme need probleemid lahendanud sinu eest.
Ülemiste City hoonetes on olemas konverentsi- ja koosolekuruumid koos toitlustusega; vastuvõtulaua assistendid, kes tervitavad külalisi ja aitavad murede korral; koristus- ja hooldusteenus koos meistrimehega; LED-ekraanid selleks, et saaksid oma ettevõtte teha nähtavaks ja kaasata uusi kliente; riietus- ja duširuumid sportliku eluviisi toetamiseks; hulgaliselt turvalisi rattaparklaid, samuti sisekujundaja, et kontori ruumilahendus toetaks tööstiili. Kõike ikka selleks, et saaksid keskenduda enda äritegevusele ja kontor oleks täpselt selline, nagu sinu ettevõttel vaja.
VISIOONIGA LINN
Ülemiste City on rahvusvaheline ja mitmekesine keskkond, mille keskmes on talentidele loodud teadmispõhise töö-, arengu- ja elukeskkonna arendamine, mis toetab iga kogukonna liikme konkurentsivõimet maailmas, meelitab lahkunud talendid tagasi koju ning inspireerib uute ärimudelite teket. Ülemiste City on ühtselt hingav tervik, mis pakub inspireerivat keskkonda kohalikele ja välistalentidele ning loob samas viljaka kasvulava tulevikutegijatele ja innovaatoritele.
Ülemiste City näol on ajaloolisele tööstuspiirkonnale antud uus elu ja hingamine. Siin paiknevad kõrvuti 19. sajandi tööstusarhitektuur ja modernne linnaruum, mis on kasvatanud Ülemiste City Baltimaade suurimaks ja kõige kiiremini arenevaks ärilinnakuks.
ARENDAJA
Mainor Ülemiste, Eesti suurim ärikinnisvara arendaja, on pika ajalooga Mainor Grupi tütarettevõte. Mainor Ülemiste põhitegevus on Baltimaade suurima ärilinnaku, rahvusvahelise haardega atraktiivse ja teadmispõhise Ülemiste City arendamine.
Linnaku 30-l hektaril on välja ehitatud 167 000 ruutmeetrit üüritavat büroopinda, kus tegutseb kokku ligi 500 erineva suurusega ettevõtet. Ülemiste City rahvusvaheline kogukond kasvab aasta-aastalt – tänaseks töötab, õpib või elab linnakus ligi 17 000 talenti.
KOGUKOND
Aastas toimub Ülemiste Citys üle 100 erineva sündmuse – konverentsid, kontserdid, spordiüritused, näitused, peod, häkid, seminarid, live-ülekanded, töötoad ning palju muud põnevat. Populaarseimad iga-aastased sündmuse on Business Triathlon, Kogukonnapäev, Business Breakfast, Tervisekuu ja Tänavatoidupäevad.
2024. aastal kutsuti ellu Ülemiste City kogukonnafond, mis võimaldab üheskoos kiiremini eesmärke täita ja siinsetel talentidel linnaku arengus kaasa rääkida ja kaasava eelarve läbi ise osaleda. Meie kogukonna liikmete jaoks on loodud turundus- ja HR võrgustikud, mis käivad koos pea igakuiselt.
Igal talendil peab olema võimalus kasvada ja avastada oma tõelist potentsiaali. Meie ülesanne on seda võimaldada pakkudes insipreerivat ja mugavat keskkonda. Kui soovid olla osa kasvavast ja arenevast kogukonnast, lüüa kaasa uute tehnoloogiate testimisel või rohelisema tuleviku loomisel, siis see kogukond on just Sulle!
Vaata lisaks - www.ulemistecity.ee
Bürooruumid on avatud planeeringuga, 3 nõupidamisruumi ja oma kööginurgaga.
Büroopinnale mahub 20 - 24 töökohta.
Üürihinnale lisanduvad kõrvalkulud ja käibemaks.
Kõrvalkulud aasta keskmiselt on ca 2.75 eur/m2 + tarbitav elekter ja üüripinna koristus.
KÄISI MAJA
Lõõtsa 4 on 1900.aastal ehitatud endise “Dvigatel” tehase hoone, kus peamiselt tehti nn täppistööd ehk toodeti väiksemaid varuosasid. Kuni 2006.aastani tegutses hoones mööblitsehh, 2006 – 2008 aastatel hoone rekonstrueeriti ja on täna kasutusel kui büroohoone.
Maja on saanud oma nime Eesti loodusõpetuse metoodika ja koolifenoloogia rajaja Johannes Käis järgi. Johannes Käis kui hariduse uuendaja innustas oma ideedega algõpetuses keskenduma lapsele ja elulähedusele.
Renoveeritud paekivihoone jaguneb 3 korpuseks ehk tiivaks. Täielikult paekivist A korpuse kolmel korrusel asub HUB väikekontorite ala, sisehoovis asuvates osalise klaasfassaadiga B ja C korpuses büroopinnad. Samas majas tegutseb ka söögikoht. Hoonesse on sissepääs tagatud kaardisüsteemiga 24/7.
Hoonele on väljastatud LEED Silver sertifikaat.
***
ASUKOHT
Ülemiste City asub transpordivõimaluste tuiksoonel, mille ühel küljel on Tallinna lennujaam, teisel aga tulevane Rail Baltica terminal ja uus bussijaam. Sadam jääb linnakust vaid kümne minuti autosõidu kaugusele ning Peterburi teele ja Tartu maanteele saad keerata otse kvartalist väljudes. Siia saab igast linnajaost mugavalt bussiga ja ka rongiga, säästes nii linnaruumi kui loodust. Hetkel on trammiliin peatatud, kuid avatakse taas 2026. aastal.
Uuri lähemalt https://www.ulemistecity.ee/kuidas-tulla/
LINNAKU TOITLUSTUS JA TEENUSED
Ülemiste Citys on üle 10 erineva restorani, mis pakuvad erinevaid lõunatamise võimalusi ja mitmekesiseid maitseelamusi kogu maailmast. Lisaks kaks R-Kioski ja suuremateks ostudeks Selver ABC, kus on ka rikkalik sooja toidu ja salatilett. Linnakus on ka MyFitnessi spordiklubi koos ujulaga, suurel hulgal rattaparklaid ja laialt ilu- ja vaba aja teenuseid ning kaunid pargid, kus lõõgastuda või lõunat süüa. Lühikese jalutuskäigu kaugusele jääv Ülemiste keskus pakub veel lisaks laia valikut restorane, poode ja teenuseid.
MUGAV PARKIMINE
Ülemiste City autoparklad mahutavad kokku üle 3300 sõiduauto. Üüripindade parkimine on mugavalt lahendatud üüripinna hoonele lähimates parkimismajades ja väliparklates. Külalistel on parkimismajades 1h tasuta parkimist ja väliparklates 2h tasuta.
TUGITEENUSED
Uue asukohaga kaasneb tavaliselt palju sekeldusi. Kes koristab kontorit? Kes aitab sisekujundusega? Kes lööb naela seina või kus saab käia poes, juuksuris või spordiklubis? Ülemiste linnakus oleme need probleemid lahendanud sinu eest.
Ülemiste City hoonetes on olemas konverentsi- ja koosolekuruumid koos toitlustusega; vastuvõtulaua assistendid, kes tervitavad külalisi ja aitavad murede korral; koristus- ja hooldusteenus koos meistrimehega; LED-ekraanid selleks, et saaksid oma ettevõtte teha nähtavaks ja kaasata uusi kliente; riietus- ja duširuumid sportliku eluviisi toetamiseks; hulgaliselt turvalisi rattaparklaid, samuti sisekujundaja, et kontori ruumilahendus toetaks tööstiili. Kõike ikka selleks, et saaksid keskenduda enda äritegevusele ja kontor oleks täpselt selline, nagu sinu ettevõttel vaja.
VISIOONIGA LINN
Ülemiste City on rahvusvaheline ja mitmekesine keskkond, mille keskmes on talentidele loodud teadmispõhise töö-, arengu- ja elukeskkonna arendamine, mis toetab iga kogukonna liikme konkurentsivõimet maailmas, meelitab lahkunud talendid tagasi koju ning inspireerib uute ärimudelite teket. Ülemiste City on ühtselt hingav tervik, mis pakub inspireerivat keskkonda kohalikele ja välistalentidele ning loob samas viljaka kasvulava tulevikutegijatele ja innovaatoritele.
Ülemiste City näol on ajaloolisele tööstuspiirkonnale antud uus elu ja hingamine. Siin paiknevad kõrvuti 19. sajandi tööstusarhitektuur ja modernne linnaruum, mis on kasvatanud Ülemiste City Baltimaade suurimaks ja kõige kiiremini arenevaks ärilinnakuks.
ARENDAJA
Mainor Ülemiste, Eesti suurim ärikinnisvara arendaja, on pika ajalooga Mainor Grupi tütarettevõte. Mainor Ülemiste põhitegevus on Baltimaade suurima ärilinnaku, rahvusvahelise haardega atraktiivse ja teadmispõhise Ülemiste City arendamine.
Linnaku 30-l hektaril on välja ehitatud 167 000 ruutmeetrit üüritavat büroopinda, kus tegutseb kokku ligi 500 erineva suurusega ettevõtet. Ülemiste City rahvusvaheline kogukond kasvab aasta-aastalt – tänaseks töötab, õpib või elab linnakus ligi 17 000 talenti.
KOGUKOND
Aastas toimub Ülemiste Citys üle 100 erineva sündmuse – konverentsid, kontserdid, spordiüritused, näitused, peod, häkid, seminarid, live-ülekanded, töötoad ning palju muud põnevat. Populaarseimad iga-aastased sündmuse on Business Triathlon, Kogukonnapäev, Business Breakfast, Tervisekuu ja Tänavatoidupäevad.
2024. aastal kutsuti ellu Ülemiste City kogukonnafond, mis võimaldab üheskoos kiiremini eesmärke täita ja siinsetel talentidel linnaku arengus kaasa rääkida ja kaasava eelarve läbi ise osaleda. Meie kogukonna liikmete jaoks on loodud turundus- ja HR võrgustikud, mis käivad koos pea igakuiselt.
Igal talendil peab olema võimalus kasvada ja avastada oma tõelist potentsiaali. Meie ülesanne on seda võimaldada pakkudes insipreerivat ja mugavat keskkonda. Kui soovid olla osa kasvavast ja arenevast kogukonnast, lüüa kaasa uute tehnoloogiate testimisel või rohelisema tuleviku loomisel, siis see kogukond on just Sulle!
Vaata lisaks - www.ulemistecity.ee














