Üürile anda Kristiines Sõpruse puiestee ääres asuvas esinduslikus ärihoones väga hea kvaliteediga büroopind.
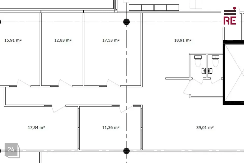
Kristiine roheluses ja kesklinna vahetus läheduses asuvas Sõpruse Ärimajas on anda üürile 144,0 m² suurune äripind B-korpuse 3. korrusel. Büroo on heas korrasviimistlusega ja selle koosseisu kuuluvad: 4 kabinetti, kööginurk, nõupidamisruum (8 inimest), 2 tualettruumi.
Bürood on võimalik vajadusel ümber ehitada.
Plaan on leitav pakkumise galeriist.
Sõpruse ärimaja, kus tegutsevad paljud edukad ettevõtted, on valminud 2007. aastal.
Hoone tehniline tase on A+, mis tagab kaasaegse töökeskkonna. Olemas on korralik ventilatsioonisüsteem koos ruumiti reguleeritava jahutussüsteemiga.
Aknad on varustatud ribikardinatega. Üürnikule pakume oma logo paigaldamise võimalust hoone fassaadil.
Üüripinnale saab lisaks üürida parkimiskohti kinnises ja turvalises parkimismajas (280 kohta) või hoone taga ja küljel asuvas parkimisalas. Külaliste parkimiskohad asuvad hoone ees platsil otse äripinna vastas ja võimaldavad külalistel tasuta parkimist 3 tunni vältel.
Heal tasemel on ka side-, turva- ning läbipääsusüsteemid ja ruumide üldine seisukord.
Sõpruse Ärimajas on loodud kõik eeldused ettevõtte edukaks äritegevuseks, büroohoonet ja üüripindu iseloomustavad:
• Ruumipõhine kliima reguleerimine
• Optimaalse sisekliima tagab sundventilatsioon
• Väljaehitatud side-, turva- ja läbipääsusüsteemid
• Kõigis büroodes on tualett ja kööginurga valmidus
• 24/7 sissepääs büroohoonesse
• Energiasäästlikud kombineeritud küttelahendused
• Privaatsem sissepääs kolmes korpuses, igas korpuses 2 lifti
• Paindlikud ruumilahendused, üüripinnad alates 75 m²
• Suur ja mugav parkimismaja autode käsipesulaga
• Suletud tasuta jalgrattaparkla koos riietus- ja pesuruumidega
• Elektriautode kiirlaadija
• Viimasel korrusel terrassiga büroopinnad
• Võimalus paigaldada fassaadile valgustatud logo
• Hoones saab kasutada kõiki sideteenuste pakkujate teenuseid
Ärihoone asub viieminutilise autosõidu kaugusel Tallinna kesklinnast. Hoones on toitlustuskoht ja üle tee asub Rimi kauplus. Sõpruse pst-l on heal tasemel ühistranspordiliiklus bussi- ja trollipeatuste näol vahetult hoone ligidal.
Üürihind: 11,90 EUR/m2 kuus. Üürihinna tõus alates teisest aastast 3% aastas. Üürihindadele lisandub käibemaks, tasu kõrvalkulude ja maja üldkulude eest vastavalt nende tegelikele kuludele.
Ruumide üürile võtmine on vahendustasuta!
Võimalik kiiresti sisse kolida!
Teiste Sõpruse Ärimaja pakkumistega võite tutvuda siin:
http://www.re.ee/projektid/aripinnad/sopruse-arimaja/
Huvi korral annan meeleldi lisainfot ja korraldan objekti külastuse!
RE Kinnisvara AS on tegutsenud 1995. aastast, olles üks vanimaid Eesti kinnisvaraettevõtteid.
Pakume kinnisvaraga seotud täisteenust:
- äri- ja elamispindade maaklerteenus
- kinnisvara hindamine laenu tagatiseks, sh kohtutele, finantsaruandluseks jne.
- äri- ja elukondlike arendusprojektide müügikorraldus
- kinnisvaraturu ja -projektide analüüs ja konsultatsioon
- kinnisvara seadustamine
Teeme koostööd kõigi Eesti pankade ja finantsasutustega. Meie eksperthinnangud on aktsepteeritud kõigi Eestis tegutsevate krediidiasutuste poolt.
Tutvu lähemalt re.ee.
RE Kinnisvara AS – PARIM OSA KINNISVARAST
Helista 66 88 666 või saada e-mail ***@***.ee
https://facebook.com/re.kinnisvara
https://www.instagram.com/rekinnisvara/
https://ee.linkedin.com/company/re-kinnisvara
Kristiine roheluses ja kesklinna vahetus läheduses asuvas Sõpruse Ärimajas on anda üürile 144,0 m² suurune äripind B-korpuse 3. korrusel. Büroo on heas korrasviimistlusega ja selle koosseisu kuuluvad: 4 kabinetti, kööginurk, nõupidamisruum (8 inimest), 2 tualettruumi.
Bürood on võimalik vajadusel ümber ehitada.
Plaan on leitav pakkumise galeriist.
Sõpruse ärimaja, kus tegutsevad paljud edukad ettevõtted, on valminud 2007. aastal.
Hoone tehniline tase on A+, mis tagab kaasaegse töökeskkonna. Olemas on korralik ventilatsioonisüsteem koos ruumiti reguleeritava jahutussüsteemiga.
Aknad on varustatud ribikardinatega. Üürnikule pakume oma logo paigaldamise võimalust hoone fassaadil.
Üüripinnale saab lisaks üürida parkimiskohti kinnises ja turvalises parkimismajas (280 kohta) või hoone taga ja küljel asuvas parkimisalas. Külaliste parkimiskohad asuvad hoone ees platsil otse äripinna vastas ja võimaldavad külalistel tasuta parkimist 3 tunni vältel.
Heal tasemel on ka side-, turva- ning läbipääsusüsteemid ja ruumide üldine seisukord.
Sõpruse Ärimajas on loodud kõik eeldused ettevõtte edukaks äritegevuseks, büroohoonet ja üüripindu iseloomustavad:
• Ruumipõhine kliima reguleerimine
• Optimaalse sisekliima tagab sundventilatsioon
• Väljaehitatud side-, turva- ja läbipääsusüsteemid
• Kõigis büroodes on tualett ja kööginurga valmidus
• 24/7 sissepääs büroohoonesse
• Energiasäästlikud kombineeritud küttelahendused
• Privaatsem sissepääs kolmes korpuses, igas korpuses 2 lifti
• Paindlikud ruumilahendused, üüripinnad alates 75 m²
• Suur ja mugav parkimismaja autode käsipesulaga
• Suletud tasuta jalgrattaparkla koos riietus- ja pesuruumidega
• Elektriautode kiirlaadija
• Viimasel korrusel terrassiga büroopinnad
• Võimalus paigaldada fassaadile valgustatud logo
• Hoones saab kasutada kõiki sideteenuste pakkujate teenuseid
Ärihoone asub viieminutilise autosõidu kaugusel Tallinna kesklinnast. Hoones on toitlustuskoht ja üle tee asub Rimi kauplus. Sõpruse pst-l on heal tasemel ühistranspordiliiklus bussi- ja trollipeatuste näol vahetult hoone ligidal.
Üürihind: 11,90 EUR/m2 kuus. Üürihinna tõus alates teisest aastast 3% aastas. Üürihindadele lisandub käibemaks, tasu kõrvalkulude ja maja üldkulude eest vastavalt nende tegelikele kuludele.
Ruumide üürile võtmine on vahendustasuta!
Võimalik kiiresti sisse kolida!
Teiste Sõpruse Ärimaja pakkumistega võite tutvuda siin:
http://www.re.ee/projektid/aripinnad/sopruse-arimaja/
Huvi korral annan meeleldi lisainfot ja korraldan objekti külastuse!
RE Kinnisvara AS on tegutsenud 1995. aastast, olles üks vanimaid Eesti kinnisvaraettevõtteid.
Pakume kinnisvaraga seotud täisteenust:
- äri- ja elamispindade maaklerteenus
- kinnisvara hindamine laenu tagatiseks, sh kohtutele, finantsaruandluseks jne.
- äri- ja elukondlike arendusprojektide müügikorraldus
- kinnisvaraturu ja -projektide analüüs ja konsultatsioon
- kinnisvara seadustamine
Teeme koostööd kõigi Eesti pankade ja finantsasutustega. Meie eksperthinnangud on aktsepteeritud kõigi Eestis tegutsevate krediidiasutuste poolt.
Tutvu lähemalt re.ee.
RE Kinnisvara AS – PARIM OSA KINNISVARAST
Helista 66 88 666 või saada e-mail ***@***.ee
https://facebook.com/re.kinnisvara
https://www.instagram.com/rekinnisvara/
https://ee.linkedin.com/company/re-kinnisvara



























