Volta tn 1 puhul on tegemist tõelise karakteriga hoonetega, mis oma paekiviseinte ja kõrgete lagedega jätab kujundamisel ohtralt ruumi ka loomingulisusele.
ASUKOHT
Volta tn 1 asub Kalamajas, Putukaväila ääres ning vaid kerge jalutuskäigu kaugusel nii Telliskivi loomelinnakust kui Noblessnerist. See on pealinna kõige kiiremini arenev piirkond, mille ümbruses on lähiaastail kavas luua vähemalt 300 000 ruutmeetrit uusi kodusid ja äripindu. Kes esimesena kohal, sel kindlasti ka parem valik ja tingimused
ARENDUS
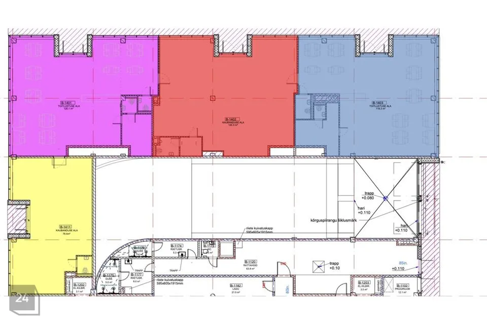
Volta tn 1 ärikvartali esimene hoone on juba igapäevases kasutuses, kuid kvartal tervikuna saab viimase lihvi 2025. aasta alguseks. Kokku kolmes hoones valmivast enam kui kolmekümne kuuest tuhandest ruutmeetrist büroo-, kaubandus ja toitlustuspindadest on tänaseks üle 94% endale juba leidnud rentnikud. Siiski võtke meiega kindlasti ühendust, et saaksime ka teie äri uue kodu jaoks sobiliku lahenduse pakkuda.
KÜSI JULGELT LISAINFOT!
ASUKOHT
Volta tn 1 asub Kalamajas, Putukaväila ääres ning vaid kerge jalutuskäigu kaugusel nii Telliskivi loomelinnakust kui Noblessnerist. See on pealinna kõige kiiremini arenev piirkond, mille ümbruses on lähiaastail kavas luua vähemalt 300 000 ruutmeetrit uusi kodusid ja äripindu. Kes esimesena kohal, sel kindlasti ka parem valik ja tingimused
ARENDUS
Volta tn 1 ärikvartali esimene hoone on juba igapäevases kasutuses, kuid kvartal tervikuna saab viimase lihvi 2025. aasta alguseks. Kokku kolmes hoones valmivast enam kui kolmekümne kuuest tuhandest ruutmeetrist büroo-, kaubandus ja toitlustuspindadest on tänaseks üle 94% endale juba leidnud rentnikud. Siiski võtke meiega kindlasti ühendust, et saaksime ka teie äri uue kodu jaoks sobiliku lahenduse pakkuda.
KÜSI JULGELT LISAINFOT!


















