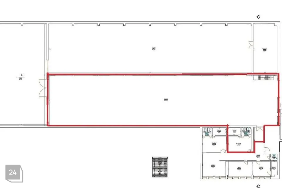
Üürile anda lao- ja tootmispind koos olmeruumidega Tähetorni ärikvartalis (joonisel tähistatud punasega).
Üldpind: ca 705 m², millest ca 650 m² moodustab tootmispind ja ca 50 m² olmeruumid.
Tootmisruumi kõrgus: ca 6 m (kohati kõrgem).
Ruumidel 1 tõstanduks.
Olmeruumides: riietusruum, WC-d ja pesuruum.
Hoone elektrivõimsus: 3 * 500 A
Ruumis olemas raamid telferite paigaldamiseks (kuni 3,2-tonnise tõstevõimega).
Tagahoovis: asfalteeritud parkimisala ja mugav majandamisala.
Asukoht: Tähetorni 21C kinnistu paikneb aktiivses Tähetorni ärikvartali tööstuspiirkonnas, kus tegutseb rohkelt erinevaid ettevõtteid. Hea bussiühendus.
Tingimused: Üürihinnale lisanduvad käibemaks ja kõrvalkulud. Üürilepingu sõlmimisel tuleb tasuda tagatisraha.
Pakkumine otse omanikult – vahendustasu ei lisandu. Lisaküsimused on oodatud!
Üldpind: ca 705 m², millest ca 650 m² moodustab tootmispind ja ca 50 m² olmeruumid.
Tootmisruumi kõrgus: ca 6 m (kohati kõrgem).
Ruumidel 1 tõstanduks.
Olmeruumides: riietusruum, WC-d ja pesuruum.
Hoone elektrivõimsus: 3 * 500 A
Ruumis olemas raamid telferite paigaldamiseks (kuni 3,2-tonnise tõstevõimega).
Tagahoovis: asfalteeritud parkimisala ja mugav majandamisala.
Asukoht: Tähetorni 21C kinnistu paikneb aktiivses Tähetorni ärikvartali tööstuspiirkonnas, kus tegutseb rohkelt erinevaid ettevõtteid. Hea bussiühendus.
Tingimused: Üürihinnale lisanduvad käibemaks ja kõrvalkulud. Üürilepingu sõlmimisel tuleb tasuda tagatisraha.
Pakkumine otse omanikult – vahendustasu ei lisandu. Lisaküsimused on oodatud!















