Pakkuda üürile äripind Noblessneris, hoone on projekteeritud B-energiaklassi majana. Maja ehitajaks on Eesti mainekaim ehitusettevõte Merko.
Tegemist on viiest merepoolsest majast koosneva eksklusiivse kompleksi viimase valmiva hoonega, mille soodne asukoht annab suurepärase võimaluse kolida oma olemasolev äri või alustada uuega linna moodsaimas piirkonnas!
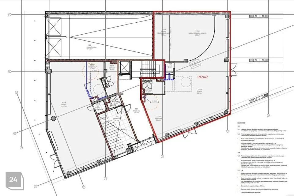
Multifunktsionaalne esimese korruse äripind sobib nii bürooks, esindus- või teeninduspinnaks, kui ka toitlustuseks (valmidus olemas ja elektrivõimsus piisav!). Toitlustuspinnana mahutab ca 45-55 istekohta (lisanduvad välikohad) sõltuvalt köögi suurusest ning kontseptsioonist! Pind on eraldi sissepääsuga.
Pinda iseloomustavad suured maast laeni vitriinaknad, mis tagavad suurepärase nähtavuse, kõrged laed (põrandast laeni 3,80 meetrit ja kõrgendusega kohas, põrandast laeni kõrgus 3 meetrit ) ning kõik iseenesest mõistetavad tänapäevased tehnilised lahendused (sh jahutusseade). Suurepärane juurdepääsetavus klientide jaoks – parkimine otse ukse ees! Reklaami paigaldamise võimalus maja fassaadile.
Pinna juurde saab üürida ka 130 m2 suuruse merevaatega terrassi kasutamise võimalust (290 eurot)! Terrassi teeb unikaalseks laekonsooli olemasolu täies ulatuses, mis teeb selle ilmastikukindlamaks ning tekitab võimaluse lisavalgustuse ja soojakiirgurite paigaldamiseks. Teist sellist võimalust Noblessneris ei leidu! Alternatiivselt saab seda kasutada autode parkimiseks, välimüügi alaks vms. Kogu pind koos terrassiga jääb väga nähtavasse kohta, mis kombinatsioonis väga hea autoga juurdepääsu võimalusega tähendab parimat asukohta Teie ärile terves Noblessneri arenduses!
Pinnal on kaks sissepääsu – üks tänavalt ning teine terrassi kaudu mere poolt.
Parkimine on lahendatud kas soojas maa-aluses garaažis, tänaval asuvate parkimiskohtadega (kohe ukse ees) või kõrvalkinnistul asuvas avaras parklas.
Mõistlike kulusid tagab ka Utilitase kaugküte.
Soovi korral on võimalik üürida terve esimene korrus (139 + 192 m2) ning kontoriks kohandatavat merevaate ja saunaga korterit samas majas (110 m2), kokku 441 m2! Täiendavalt on saadaval väiksem 33 m2 1-toaline majutuseks või kontoriks sobilik äripind samas arenduses.
Peale Noblessneri sadamalinnaku enda hinnatud arhitektuuri, jahisadamat, merelähedust ning kiiret arengut asuvad läheduses populaarne merepromenaad Kultuurikilomeetriga, Kalamaja asum, Lennusadama meremuuseum, PROTO Avastustehas, Patarei Merekindluse kompleks ning naabrusease 2025. aastal kerkiv Keskkonnamaja Loodusmuuseumiga
Oodatud on tugeva taustaga pikaajalised üürnikud. Küsi julgesti täpsemat infot koos plaanidega ning anna oma mõtetest teada!
Hinnale lisandub käibemaks ning kommunaalkulud.
Tegemist on viiest merepoolsest majast koosneva eksklusiivse kompleksi viimase valmiva hoonega, mille soodne asukoht annab suurepärase võimaluse kolida oma olemasolev äri või alustada uuega linna moodsaimas piirkonnas!
Multifunktsionaalne esimese korruse äripind sobib nii bürooks, esindus- või teeninduspinnaks, kui ka toitlustuseks (valmidus olemas ja elektrivõimsus piisav!). Toitlustuspinnana mahutab ca 45-55 istekohta (lisanduvad välikohad) sõltuvalt köögi suurusest ning kontseptsioonist! Pind on eraldi sissepääsuga.
Pinda iseloomustavad suured maast laeni vitriinaknad, mis tagavad suurepärase nähtavuse, kõrged laed (põrandast laeni 3,80 meetrit ja kõrgendusega kohas, põrandast laeni kõrgus 3 meetrit ) ning kõik iseenesest mõistetavad tänapäevased tehnilised lahendused (sh jahutusseade). Suurepärane juurdepääsetavus klientide jaoks – parkimine otse ukse ees! Reklaami paigaldamise võimalus maja fassaadile.
Pinna juurde saab üürida ka 130 m2 suuruse merevaatega terrassi kasutamise võimalust (290 eurot)! Terrassi teeb unikaalseks laekonsooli olemasolu täies ulatuses, mis teeb selle ilmastikukindlamaks ning tekitab võimaluse lisavalgustuse ja soojakiirgurite paigaldamiseks. Teist sellist võimalust Noblessneris ei leidu! Alternatiivselt saab seda kasutada autode parkimiseks, välimüügi alaks vms. Kogu pind koos terrassiga jääb väga nähtavasse kohta, mis kombinatsioonis väga hea autoga juurdepääsu võimalusega tähendab parimat asukohta Teie ärile terves Noblessneri arenduses!
Pinnal on kaks sissepääsu – üks tänavalt ning teine terrassi kaudu mere poolt.
Parkimine on lahendatud kas soojas maa-aluses garaažis, tänaval asuvate parkimiskohtadega (kohe ukse ees) või kõrvalkinnistul asuvas avaras parklas.
Mõistlike kulusid tagab ka Utilitase kaugküte.
Soovi korral on võimalik üürida terve esimene korrus (139 + 192 m2) ning kontoriks kohandatavat merevaate ja saunaga korterit samas majas (110 m2), kokku 441 m2! Täiendavalt on saadaval väiksem 33 m2 1-toaline majutuseks või kontoriks sobilik äripind samas arenduses.
Peale Noblessneri sadamalinnaku enda hinnatud arhitektuuri, jahisadamat, merelähedust ning kiiret arengut asuvad läheduses populaarne merepromenaad Kultuurikilomeetriga, Kalamaja asum, Lennusadama meremuuseum, PROTO Avastustehas, Patarei Merekindluse kompleks ning naabrusease 2025. aastal kerkiv Keskkonnamaja Loodusmuuseumiga
Oodatud on tugeva taustaga pikaajalised üürnikud. Küsi julgesti täpsemat infot koos plaanidega ning anna oma mõtetest teada!
Hinnale lisandub käibemaks ning kommunaalkulud.






































