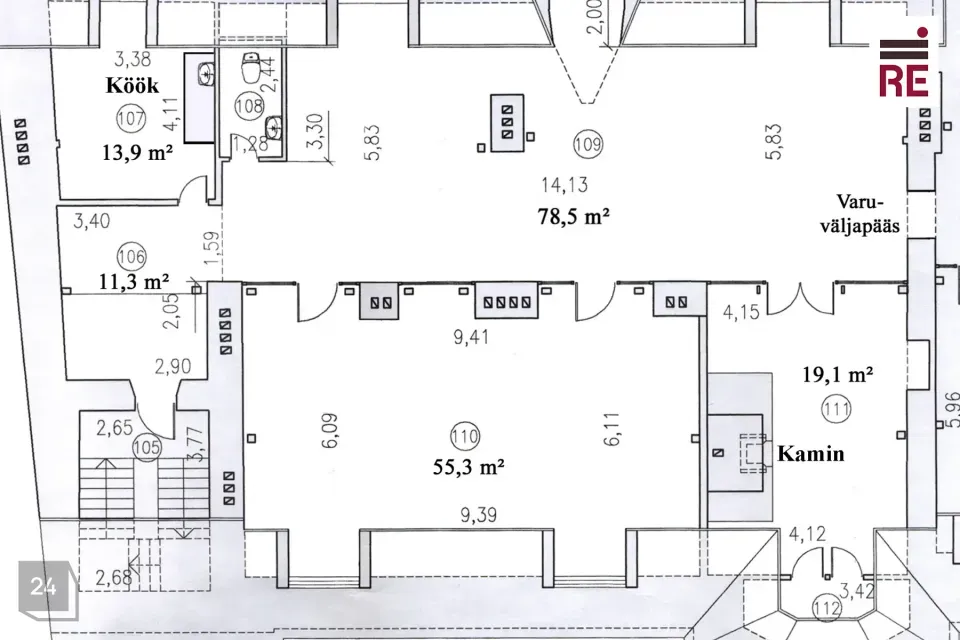
Üürile anda Kesklinnas Snelli tiigi ääres asuv büroopind aadressil Toompuiestee 30. Hoone on ehitatud 1912. a. omanäolises juugendstiilis. Pind koosneb kahest avatud suurest tööruumist, kaminaga koosolekuteruumist, köögist ja tualettruumist. Ruumide plaan on leitav piltide galeriist.
Ruumides on elektriküte ja konditsioneerid, loomulik ventilatsioon, interneti- jm sidevõrgud ning fonoluku süsteem.
Hoovis asub aiaga piiratud tasuta parkimise ala klientidele ja üürnikele.
Maja lähedal asuvad trolli- ja bussipeatused, mõneminutilise jalutuskäigu kaugusel asub Balti Jaama rongipeatus.
Üürihinnale lisanduvad kõrvalkulud ja käibemaks. Tagatisraha on kahe kuu üürisumma. Antud objekt on Teile vahendustasuta.
Huvi korral annan meeleldi lisainfot ning korraldan objekti külastuse.
Kui antud objekt ei ole see, mida otsite, siis andke palun oma soovist teada ja leiame just teile sobiva pinna.
RE Kinnisvara AS on tegutsenud 1995. aastast, olles üks vanimaid Eesti kinnisvaraettevõtteid.
Pakume kinnisvaraga seotud täisteenust:
- äri- ja elamispindade maaklerteenus
- kinnisvara hindamine laenu tagatiseks, sh kohtutele, finantsaruandluseks jne.
- äri- ja elukondlike arendusprojektide müügikorraldus
- kinnisvaraturu ja -projektide analüüs ja konsultatsioon
- kinnisvara seadustamine
Teeme koostööd kõigi Eesti pankade ja finantsasutustega. Meie eksperthinnangud on aktsepteeritud kõigi Eestis tegutsevate krediidiasutuste poolt.
Tutvu lähemalt re.ee.
RE Kinnisvara AS – PARIM OSA KINNISVARAST
Helista 66 88 666 või saada e-mail ***@***.ee
https://facebook.com/re.kinnisvara
https://www.instagram.com/rekinnisvara/
https://ee.linkedin.com/company/re-kinnisvara
Ruumides on elektriküte ja konditsioneerid, loomulik ventilatsioon, interneti- jm sidevõrgud ning fonoluku süsteem.
Hoovis asub aiaga piiratud tasuta parkimise ala klientidele ja üürnikele.
Maja lähedal asuvad trolli- ja bussipeatused, mõneminutilise jalutuskäigu kaugusel asub Balti Jaama rongipeatus.
Üürihinnale lisanduvad kõrvalkulud ja käibemaks. Tagatisraha on kahe kuu üürisumma. Antud objekt on Teile vahendustasuta.
Huvi korral annan meeleldi lisainfot ning korraldan objekti külastuse.
Kui antud objekt ei ole see, mida otsite, siis andke palun oma soovist teada ja leiame just teile sobiva pinna.
RE Kinnisvara AS on tegutsenud 1995. aastast, olles üks vanimaid Eesti kinnisvaraettevõtteid.
Pakume kinnisvaraga seotud täisteenust:
- äri- ja elamispindade maaklerteenus
- kinnisvara hindamine laenu tagatiseks, sh kohtutele, finantsaruandluseks jne.
- äri- ja elukondlike arendusprojektide müügikorraldus
- kinnisvaraturu ja -projektide analüüs ja konsultatsioon
- kinnisvara seadustamine
Teeme koostööd kõigi Eesti pankade ja finantsasutustega. Meie eksperthinnangud on aktsepteeritud kõigi Eestis tegutsevate krediidiasutuste poolt.
Tutvu lähemalt re.ee.
RE Kinnisvara AS – PARIM OSA KINNISVARAST
Helista 66 88 666 või saada e-mail ***@***.ee
https://facebook.com/re.kinnisvara
https://www.instagram.com/rekinnisvara/
https://ee.linkedin.com/company/re-kinnisvara




















