Üürile anda hea asukohaga büroopind Tallinna kesklinnas aadressil Liivalaia 20a.
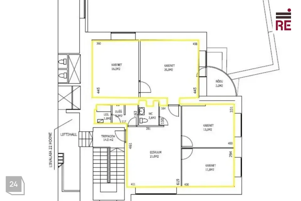
Soliidne büroopind suurusega 89,7 m² asub hoone kolmandal korrusel.
Pinnal on avar vastuvõtuala ning neli töökabinetti. Lisaks eraldi tualettruum koos duširuumi ning leiliruumiga.
Ruumide täpne plaan on leitav piltide galeriist. Pinnal on olemas ka rõdu.
Pinnal on teostatud värskendusremont ja paigaldatud ka konditsioneer. On olemas ka kööginurga paigaldamise võimalus.
Majas on gaasiküte, olemas on sundventilatsioon ning jahutuse paigaldamise võimalus. Ruumides on valvesignalisatsioon, olemas on kiire internetiühendus.
Üürnikele on hoonesse tagatud ööpäevaringne sissepääs.
Pinna juurde on võimalik üürida parkimiskohti hoone kõrval tõkkepuuga parklas.
Üürihinnale lisanduvad käibemaks ja kõrvalkulud.
Pakkumine on Teile vahendustasuta.
Huvi korral annan meeleldi lisainfot ning korraldan objekti külastuse.
Kui antud objekt ei ole see, mida otsite, siis andke palun oma soovist teada ja leiame just Teile sobiva pinna.
RE Kinnisvara AS on tegutsenud 1995. aastast, olles üks vanimaid Eesti kinnisvaraettevõtteid.
Pakume kinnisvaraga seotud täisteenust:
- äri- ja elamispindade maaklerteenus
- kinnisvara hindamine laenu tagatiseks, sh kohtutele, finantsaruandluseks jne.
- äri- ja elukondlike arendusprojektide müügikorraldus
- kinnisvaraturu ja -projektide analüüs ja konsultatsioon
- kinnisvara seadustamine
Teeme koostööd kõigi Eesti pankade ja finantsasutustega. Meie eksperthinnangud on aktsepteeritud kõigi Eestis tegutsevate krediidiasutuste poolt.
Tutvu lähemalt re.ee.
RE Kinnisvara AS – PARIM OSA KINNISVARAST
Helista 66 88 666 või saada e-mail ***@***.ee
https://facebook.com/re.kinnisvara
https://www.instagram.com/rekinnisvara/
https://ee.linkedin.com/company/re-kinnisvara
Soliidne büroopind suurusega 89,7 m² asub hoone kolmandal korrusel.
Pinnal on avar vastuvõtuala ning neli töökabinetti. Lisaks eraldi tualettruum koos duširuumi ning leiliruumiga.
Ruumide täpne plaan on leitav piltide galeriist. Pinnal on olemas ka rõdu.
Pinnal on teostatud värskendusremont ja paigaldatud ka konditsioneer. On olemas ka kööginurga paigaldamise võimalus.
Majas on gaasiküte, olemas on sundventilatsioon ning jahutuse paigaldamise võimalus. Ruumides on valvesignalisatsioon, olemas on kiire internetiühendus.
Üürnikele on hoonesse tagatud ööpäevaringne sissepääs.
Pinna juurde on võimalik üürida parkimiskohti hoone kõrval tõkkepuuga parklas.
Üürihinnale lisanduvad käibemaks ja kõrvalkulud.
Pakkumine on Teile vahendustasuta.
Huvi korral annan meeleldi lisainfot ning korraldan objekti külastuse.
Kui antud objekt ei ole see, mida otsite, siis andke palun oma soovist teada ja leiame just Teile sobiva pinna.
RE Kinnisvara AS on tegutsenud 1995. aastast, olles üks vanimaid Eesti kinnisvaraettevõtteid.
Pakume kinnisvaraga seotud täisteenust:
- äri- ja elamispindade maaklerteenus
- kinnisvara hindamine laenu tagatiseks, sh kohtutele, finantsaruandluseks jne.
- äri- ja elukondlike arendusprojektide müügikorraldus
- kinnisvaraturu ja -projektide analüüs ja konsultatsioon
- kinnisvara seadustamine
Teeme koostööd kõigi Eesti pankade ja finantsasutustega. Meie eksperthinnangud on aktsepteeritud kõigi Eestis tegutsevate krediidiasutuste poolt.
Tutvu lähemalt re.ee.
RE Kinnisvara AS – PARIM OSA KINNISVARAST
Helista 66 88 666 või saada e-mail ***@***.ee
https://facebook.com/re.kinnisvara
https://www.instagram.com/rekinnisvara/
https://ee.linkedin.com/company/re-kinnisvara















