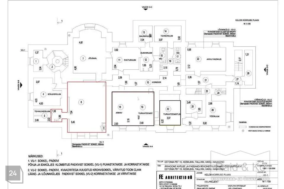
Tegemist on Vabaduse väljaku vahetus läheduses paikneva ajaloolise ja suursuguse kultuurimälestisest hoonega, mille soklikorrusel on pakkuda avar ruum.
Ruumis on olemas kraanikauss.
Ruum on heas seisukorras. Seinad on värvitud, põrandal laminaatparkett.
Sissepääs on hoovi poolt. Aknad on vaatega Estonia pst poole.
Paigaldatud on fonolukusüsteem, valvesignalisatsioon ning koridori pääsemiseks magnetkaardisüsteem.
Parkimisvõimalus on tõkkepuuga eraldatud hoovis maja taga. Parkimine on lisatasu eest 100 eur + km. Parkla on varustatud salvestava videovalvega.
Üürile lisanduvad kommunaalkulud (suvel ca 130 eurot, talvel ca 225 eurot + käibemaks)
Asukoht on suurepärane! Parkimisplats on kohe maja kõrval.
Vahetus läheduses on mitmed ühistranspordipeatused, erinevad söögikohad, kauplused jne.
Lepingu sõlmimisel tuleb tasuda ettemaksuna esimese kuu üür, tagatisraha 1 kuu üürisumma ulatuses ning maakleritasu 1 kuu üürisumma ulatuses. Nimetatud summadele lisandub käibemaks.
Ruumis on olemas kraanikauss.
Ruum on heas seisukorras. Seinad on värvitud, põrandal laminaatparkett.
Sissepääs on hoovi poolt. Aknad on vaatega Estonia pst poole.
Paigaldatud on fonolukusüsteem, valvesignalisatsioon ning koridori pääsemiseks magnetkaardisüsteem.
Parkimisvõimalus on tõkkepuuga eraldatud hoovis maja taga. Parkimine on lisatasu eest 100 eur + km. Parkla on varustatud salvestava videovalvega.
Üürile lisanduvad kommunaalkulud (suvel ca 130 eurot, talvel ca 225 eurot + käibemaks)
Asukoht on suurepärane! Parkimisplats on kohe maja kõrval.
Vahetus läheduses on mitmed ühistranspordipeatused, erinevad söögikohad, kauplused jne.
Lepingu sõlmimisel tuleb tasuda ettemaksuna esimese kuu üür, tagatisraha 1 kuu üürisumma ulatuses ning maakleritasu 1 kuu üürisumma ulatuses. Nimetatud summadele lisandub käibemaks.














