2026. aasta sügisel valmib Saue linnas uus esinduslik ärimaja, mis toob linna südamesse kaasaegse ja nähtava ärikeskkonna. Pärnasalu ja Tule tänava nurgale kerkiv ärihoone on Saue kõige nähtavam ja parima ligipääsuga ärikinnistu, mille ümbruses asuvad elurajoonid, rongijaam, koolid ja mitmed teenused.
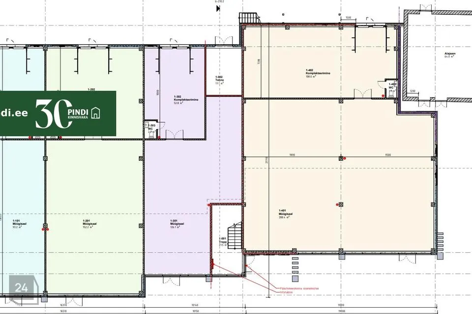
Üürile anda esinduslik ja suur äripind I korrusel, mille koosseisu kuulub avar kaubandus- või teeninduspind suurusega 152,2 m² ning sellega ühenduses olev laoruum suurusega 86,5 m². Ideaalne võimalus ettevõttele, kes vajab kliendisõbralikku müügipinda ning mugavat tagaruumi või laopinda.
Pinna omadused:
Kogupind: 240,9 m²
Müügisaal/esindusruum: 152,2 m²
Laoruum: 86,5 m²
Privaatne tualettruum pinna koosseisus
Kaasaegne siseviimistlus
Suured vitriinaknad Pärnasalu tänava poole
Suurepärane nähtavus ja ligipääs
Mugav juurdepääs kauba laadimiseks
Tasuta parkimine maja ees klientidele ja töötajatele
Asukoht:
Pärnasalu 34 paikneb Saue linna kõige nähtavamas ja tihedama liiklusega punktis — Pärnasalu ja Tule tänava ristmikul. Lähedusse jäävad rongijaam, lasteaed, kool, kauplused ja mitmed uusarendused, mis toovad piirkonda tiheda jalg- ja autoliikluse.
Üürihind:
9,5 €/m² + KM
Lisanduvad kõrvalkulud vastavalt tarbimisele.
Teisi valikuid ka samas majas!
Lisaks sellele pinnale on I korrusel veel erinevas suuruses kaubandus- ja teeninduspindu ning II korrusel bürood alates 25,9 m² kuni 1000 m². Pindu on võimalik omavahel liita vastavalt ettevõtte soovidele.
“Uus hingamine Saue ärikeskkonnas — Sinu ettevõte väärib nähtavat ja kaasaegset kohta!”
Soovid osta või üürida oma ettevõttele uut äripinda? Võta meiega ühendust ja tee päring siin: www.pindi.ee/otsid-endale-uut-aripinda/
-------------------------------------------------------------------------------------------------------------------------------------------------------
PANGA SOODUSTUSED Teeme koostööd kõikide suuremate pankadega! Meie kliendina teenindatakse Sind eelisjärjekorras ning kodulaenu lepingutasule kehtivad soodustused.
VAHENDAMINE Pindi Kinnisvara on pakkunud esindusteenust kinnisvaraturul alates 1995. aastast. Suurima Eesti kinnisvarabüroona oleme esindatud 18 linnas.
OSTUESINDUS Otsid endale kinnisvara? Muudame Sinu otsinguprotsessi sujuvaks ning meeldivaks kogemuseks. Meil on suur kliendibaas ja südikad maaklerid.
HINDAMINE Meie 30 kutselise hindaja eksperthinnanguid aktsepteerivad kõik finantsasutused! Hindame nii elukondlikku kui ärikinnisvara.
HALDAMINE Pakume kinnisvara haldamisel täislahendust: raamatupidamist, tehnosüsteemide hooldust, heakorratöid kinnistul ja hoones, ehituse- ja renoveerimistööde korraldamist, energia-, vee ja kommunikatsiooniteenuste vahendamist ja eripuhastusteenuseid.
JURIIDILINE NÕUSTAMINE Pindi Kinnisvara tütarettevõtte Realia Õigusbüroo spetsialistid on Sulle abiks kõigis kinnisvara puudutavates juriidilistes küsimustes.
Täpsemalt loe ja võta ühendust: https://www.pindi.ee/ või konsulteeri oma maakleriga.
Üürile anda esinduslik ja suur äripind I korrusel, mille koosseisu kuulub avar kaubandus- või teeninduspind suurusega 152,2 m² ning sellega ühenduses olev laoruum suurusega 86,5 m². Ideaalne võimalus ettevõttele, kes vajab kliendisõbralikku müügipinda ning mugavat tagaruumi või laopinda.
Pinna omadused:
Kogupind: 240,9 m²
Müügisaal/esindusruum: 152,2 m²
Laoruum: 86,5 m²
Privaatne tualettruum pinna koosseisus
Kaasaegne siseviimistlus
Suured vitriinaknad Pärnasalu tänava poole
Suurepärane nähtavus ja ligipääs
Mugav juurdepääs kauba laadimiseks
Tasuta parkimine maja ees klientidele ja töötajatele
Asukoht:
Pärnasalu 34 paikneb Saue linna kõige nähtavamas ja tihedama liiklusega punktis — Pärnasalu ja Tule tänava ristmikul. Lähedusse jäävad rongijaam, lasteaed, kool, kauplused ja mitmed uusarendused, mis toovad piirkonda tiheda jalg- ja autoliikluse.
Üürihind:
9,5 €/m² + KM
Lisanduvad kõrvalkulud vastavalt tarbimisele.
Teisi valikuid ka samas majas!
Lisaks sellele pinnale on I korrusel veel erinevas suuruses kaubandus- ja teeninduspindu ning II korrusel bürood alates 25,9 m² kuni 1000 m². Pindu on võimalik omavahel liita vastavalt ettevõtte soovidele.
“Uus hingamine Saue ärikeskkonnas — Sinu ettevõte väärib nähtavat ja kaasaegset kohta!”
Soovid osta või üürida oma ettevõttele uut äripinda? Võta meiega ühendust ja tee päring siin: www.pindi.ee/otsid-endale-uut-aripinda/
-------------------------------------------------------------------------------------------------------------------------------------------------------
PANGA SOODUSTUSED Teeme koostööd kõikide suuremate pankadega! Meie kliendina teenindatakse Sind eelisjärjekorras ning kodulaenu lepingutasule kehtivad soodustused.
VAHENDAMINE Pindi Kinnisvara on pakkunud esindusteenust kinnisvaraturul alates 1995. aastast. Suurima Eesti kinnisvarabüroona oleme esindatud 18 linnas.
OSTUESINDUS Otsid endale kinnisvara? Muudame Sinu otsinguprotsessi sujuvaks ning meeldivaks kogemuseks. Meil on suur kliendibaas ja südikad maaklerid.
HINDAMINE Meie 30 kutselise hindaja eksperthinnanguid aktsepteerivad kõik finantsasutused! Hindame nii elukondlikku kui ärikinnisvara.
HALDAMINE Pakume kinnisvara haldamisel täislahendust: raamatupidamist, tehnosüsteemide hooldust, heakorratöid kinnistul ja hoones, ehituse- ja renoveerimistööde korraldamist, energia-, vee ja kommunikatsiooniteenuste vahendamist ja eripuhastusteenuseid.
JURIIDILINE NÕUSTAMINE Pindi Kinnisvara tütarettevõtte Realia Õigusbüroo spetsialistid on Sulle abiks kõigis kinnisvara puudutavates juriidilistes küsimustes.
Täpsemalt loe ja võta ühendust: https://www.pindi.ee/ või konsulteeri oma maakleriga.








