2026. aasta sügisel valmib Sauel uus ja kaasaegne ärihoone, mis loob kaasaegse ning esindusliku töökeskkonna ettevõtetele, kes hindavad head nähtavust, mugavat ligipääsu ja ajakohast sisekliimat. Pärnasalu ja Tule tänava nurgal paiknev maja on piirkonna üks nähtavamaid asukohti — sobides ideaalselt ettevõttele, kes soovib oma äri nähtavaks teha ja klientidele kergesti kättesaadavaks jääda.
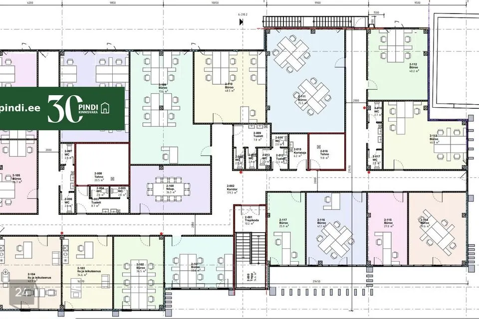
Üürile anda valgusküllane bürooruum II korrusel suurusega 26,7 m². Ruum sobib suurepäraselt väikekontoriks, konsultatsiooniruumiks või teeninduspinnaks.
Pinna omadused:
Pindala: 26,7 m²
Kaasaegne siseviimistlus ja mugav planeering
Kasutada maja üldkasutatavad tualettruumid
Valmidus kööginurga paigalduseks
Suured aknad ja loomulik valgus
Tasuta parkimine maja ees nii töötajatele kui klientidele
Maja ja asukoht:
Pärnasalu 34 kerkib Saue ühe nähtavaima ja mugavaima ligipääsuga asukohta — Pärnasalu ja Tule tänava ristmikule. Läheduses Saue rongijaam, kool, kauplused ning mitmed uusarendused, mis toovad piirkonda aktiivset elu ja ettevõtlust.
Üürihind:
12 €/m² + KM
Lisanduvad kõrvalkulud vastavalt tarbimisele.
Vali pind enda ärile!
Lisaks sellele büroopinnale on II korrusel saadaval erinevas suuruses ruume alates 25,9 m² kuni 75,5 m², mida saab ka liita või kokku ühendada. Kogu korrusel võimalik rajada kuni 1000 m² äripinda. I korrusel vitriinaklaasidega äripinnad ja laoruumid.
Soovid osta või üürida oma ettevõttele uut äripinda? Võta meiega ühendust ja tee päring siin: www.pindi.ee/otsid-endale-uut-aripinda/
-------------------------------------------------------------------------------------------------------------------------------------------------------
PANGA SOODUSTUSED Teeme koostööd kõikide suuremate pankadega! Meie kliendina teenindatakse Sind eelisjärjekorras ning kodulaenu lepingutasule kehtivad soodustused.
VAHENDAMINE Pindi Kinnisvara on pakkunud esindusteenust kinnisvaraturul alates 1995. aastast. Suurima Eesti kinnisvarabüroona oleme esindatud 18 linnas.
OSTUESINDUS Otsid endale kinnisvara? Muudame Sinu otsinguprotsessi sujuvaks ning meeldivaks kogemuseks. Meil on suur kliendibaas ja südikad maaklerid.
HINDAMINE Meie 30 kutselise hindaja eksperthinnanguid aktsepteerivad kõik finantsasutused! Hindame nii elukondlikku kui ärikinnisvara.
HALDAMINE Pakume kinnisvara haldamisel täislahendust: raamatupidamist, tehnosüsteemide hooldust, heakorratöid kinnistul ja hoones, ehituse- ja renoveerimistööde korraldamist, energia-, vee ja kommunikatsiooniteenuste vahendamist ja eripuhastusteenuseid.
JURIIDILINE NÕUSTAMINE Pindi Kinnisvara tütarettevõtte Realia Õigusbüroo spetsialistid on Sulle abiks kõigis kinnisvara puudutavates juriidilistes küsimustes.
Täpsemalt loe ja võta ühendust: https://www.pindi.ee/ või konsulteeri oma maakleriga.
Üürile anda valgusküllane bürooruum II korrusel suurusega 26,7 m². Ruum sobib suurepäraselt väikekontoriks, konsultatsiooniruumiks või teeninduspinnaks.
Pinna omadused:
Pindala: 26,7 m²
Kaasaegne siseviimistlus ja mugav planeering
Kasutada maja üldkasutatavad tualettruumid
Valmidus kööginurga paigalduseks
Suured aknad ja loomulik valgus
Tasuta parkimine maja ees nii töötajatele kui klientidele
Maja ja asukoht:
Pärnasalu 34 kerkib Saue ühe nähtavaima ja mugavaima ligipääsuga asukohta — Pärnasalu ja Tule tänava ristmikule. Läheduses Saue rongijaam, kool, kauplused ning mitmed uusarendused, mis toovad piirkonda aktiivset elu ja ettevõtlust.
Üürihind:
12 €/m² + KM
Lisanduvad kõrvalkulud vastavalt tarbimisele.
Vali pind enda ärile!
Lisaks sellele büroopinnale on II korrusel saadaval erinevas suuruses ruume alates 25,9 m² kuni 75,5 m², mida saab ka liita või kokku ühendada. Kogu korrusel võimalik rajada kuni 1000 m² äripinda. I korrusel vitriinaklaasidega äripinnad ja laoruumid.
Soovid osta või üürida oma ettevõttele uut äripinda? Võta meiega ühendust ja tee päring siin: www.pindi.ee/otsid-endale-uut-aripinda/
-------------------------------------------------------------------------------------------------------------------------------------------------------
PANGA SOODUSTUSED Teeme koostööd kõikide suuremate pankadega! Meie kliendina teenindatakse Sind eelisjärjekorras ning kodulaenu lepingutasule kehtivad soodustused.
VAHENDAMINE Pindi Kinnisvara on pakkunud esindusteenust kinnisvaraturul alates 1995. aastast. Suurima Eesti kinnisvarabüroona oleme esindatud 18 linnas.
OSTUESINDUS Otsid endale kinnisvara? Muudame Sinu otsinguprotsessi sujuvaks ning meeldivaks kogemuseks. Meil on suur kliendibaas ja südikad maaklerid.
HINDAMINE Meie 30 kutselise hindaja eksperthinnanguid aktsepteerivad kõik finantsasutused! Hindame nii elukondlikku kui ärikinnisvara.
HALDAMINE Pakume kinnisvara haldamisel täislahendust: raamatupidamist, tehnosüsteemide hooldust, heakorratöid kinnistul ja hoones, ehituse- ja renoveerimistööde korraldamist, energia-, vee ja kommunikatsiooniteenuste vahendamist ja eripuhastusteenuseid.
JURIIDILINE NÕUSTAMINE Pindi Kinnisvara tütarettevõtte Realia Õigusbüroo spetsialistid on Sulle abiks kõigis kinnisvara puudutavates juriidilistes küsimustes.
Täpsemalt loe ja võta ühendust: https://www.pindi.ee/ või konsulteeri oma maakleriga.








