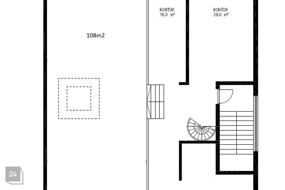
Üürile anda Sauel Tule tn 33 majas huvitegevuseks sobilik pind suurusega 124m2.
Pind asub maja teisel korrusel ning koosneb avatud ruumist ja wc-st.
Ruume kasutati eelnevalt tantsimiseks.
Saali mõõdud 5,9m laius ja 19m pikkus.
Parkida saab maja ees tasuta.
Ühe kuu üür on 700€, millele lisandub elektrikulu vastavalt tarbimisele ning käibemaks. Teised kommunaalkulud on üüris.
Võimalik juurde üürida saali kõrval asuvaid kahte tuba (29m2 + 26m2) kontoriks. Teine korrus kokku on 179m2.
Pakkumine on vahendustasuta!
Pind asub maja teisel korrusel ning koosneb avatud ruumist ja wc-st.
Ruume kasutati eelnevalt tantsimiseks.
Saali mõõdud 5,9m laius ja 19m pikkus.
Parkida saab maja ees tasuta.
Ühe kuu üür on 700€, millele lisandub elektrikulu vastavalt tarbimisele ning käibemaks. Teised kommunaalkulud on üüris.
Võimalik juurde üürida saali kõrval asuvaid kahte tuba (29m2 + 26m2) kontoriks. Teine korrus kokku on 179m2.
Pakkumine on vahendustasuta!















