VÕIMALUSED VÄIKEETTEVÕTTELE, VEESÕIDUKITELE TALVEKORTERIKS, HAAGISE HOIDMISEKS, MOTORSPORDIKS, PANIPAIGAKS VÕI ERINEVATE HOBIDEGA TEGELEMISEKS.
Ole esimene, kes saab uhiuue boksi üürida Tänassilma Äripargis! Boksid alates 7,7 €/m².
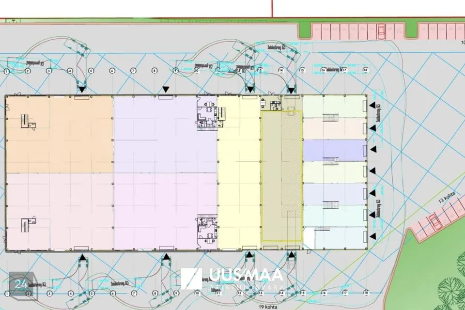
Tänapäevased ja paindlikud lahendused erinevatele vajadustele! Ideaalne valik ladustamiseks eraisikule või äritegevuseks väiksematele ettevõtetele.
Äripinna standardlahendus:
- Tõstanduksed 4,2 x 3,5 m
- Külma vee ja kanali valmidus
- Betoonpõrand koormusega 6T
Hoone omadused:
- 24/7 ligipääs
- Turvaline
- Kaasaegne
- Hea asukoht
- Energiasäästlik
- LED valgusriba fassaadil
- Võimalik teine tasapind tekitada
Projekti algfaasis võimalik kaasa rääkida boksi suuruste ja erilahenduste osas.
Eeldatav valmimisaeg 2026 aastal.
Hinnale lisandub KM.
Üürihinnale lisanduvad kõrvalkulud (püsikulu + mõõdetav kulu).
Pakkumine on ilma vahendustasuta!
ASUKOHT
Tänassilma Äripark asub Tallinna piiril, kuhu on mugav tulla sisseoste tegema nii tallinlastel kui lähivaldade elanikel. Äripargi vahetus läheduses asuvad ka Gate Tallinn, Saue Tehnopark ning 90 hektaril asuv Tänassilma Tööstus- ja Tehnopark. Äripark asub logistiliselt suurepärases asukohas, kuna ettevõtetel on hea ühendust nii Tallinna Ringteega kui Paldiski- ja Pärnu maanteega.
Jaga minu kontakti kõigile, kes vajavad kinnisvaranõu!
Liitu meie uudiskirjaga ja saa homset kinnisvarainfot juba täna! Vaata https://arikinnisvara.uusmaa.ee
UUS MAA ÄRIKINNISVARA - aastakümned kogemust ja klientide usaldust, läbimõeldud täisteenus ja suurim arv eksperte: vahendamine, hindamine, haldamine, nõustamine ja investeerimine.
Ole esimene, kes saab uhiuue boksi üürida Tänassilma Äripargis! Boksid alates 7,7 €/m².
Tänapäevased ja paindlikud lahendused erinevatele vajadustele! Ideaalne valik ladustamiseks eraisikule või äritegevuseks väiksematele ettevõtetele.
Äripinna standardlahendus:
- Tõstanduksed 4,2 x 3,5 m
- Külma vee ja kanali valmidus
- Betoonpõrand koormusega 6T
Hoone omadused:
- 24/7 ligipääs
- Turvaline
- Kaasaegne
- Hea asukoht
- Energiasäästlik
- LED valgusriba fassaadil
- Võimalik teine tasapind tekitada
Projekti algfaasis võimalik kaasa rääkida boksi suuruste ja erilahenduste osas.
Eeldatav valmimisaeg 2026 aastal.
Hinnale lisandub KM.
Üürihinnale lisanduvad kõrvalkulud (püsikulu + mõõdetav kulu).
Pakkumine on ilma vahendustasuta!
ASUKOHT
Tänassilma Äripark asub Tallinna piiril, kuhu on mugav tulla sisseoste tegema nii tallinlastel kui lähivaldade elanikel. Äripargi vahetus läheduses asuvad ka Gate Tallinn, Saue Tehnopark ning 90 hektaril asuv Tänassilma Tööstus- ja Tehnopark. Äripark asub logistiliselt suurepärases asukohas, kuna ettevõtetel on hea ühendust nii Tallinna Ringteega kui Paldiski- ja Pärnu maanteega.
Jaga minu kontakti kõigile, kes vajavad kinnisvaranõu!
Liitu meie uudiskirjaga ja saa homset kinnisvarainfot juba täna! Vaata https://arikinnisvara.uusmaa.ee
UUS MAA ÄRIKINNISVARA - aastakümned kogemust ja klientide usaldust, läbimõeldud täisteenus ja suurim arv eksperte: vahendamine, hindamine, haldamine, nõustamine ja investeerimine.













