Kaasaegne ja funktsionaalne stock-office pind Tänassilma Äripargis!
Tänassilma tee 23 aadressil, Saku vallas, on saadaval mitmekülgne ja hästi varustatud äripind, mis ühendab endas lao-, tootmis- ja büroopinna. See lahendus sobib ideaalselt ettevõttele, kes hindab head logistilist asukohta ning kvaliteetset töökeskkonda.
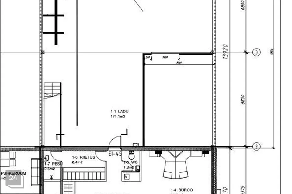
I korrusel asub 171,1 m² suurune ladu koos kontori, pesuruumide ja tualetiga
II korrusel on 80 m² ladu ja kontor ning eraldi tualettruum
Kokku üüritavat pinda on 382,50 m²
Laos/töökojas paikneb 2-tonnise tõstejõuga sildkraana
Lao- ja tööruumides on lisaks küttele ka jahutussüsteem
Hoones on oma gaasikatel, ventilatsiooniseade ja jahutus, mis tagavad madalad kõrvalkulud ja sisekliima iseseisva reguleerimise
Määratud 4 parkimiskohta asuvad hoone ees
Lisaparkimine on võimalik hoone otsas vabal alal
Ruumidest tehakse enne üleandmist suurpuhastus ja sanitaarremont
Piltidel nähtav sisustus on soovi korral üürihinna sees, vajadusel eemaldatav
Asukoht Tänassilma Äripargis tagab väga hea ühenduse Tallinna ringtee, sadama ja lennujaamaga
Piirkond on kaasaegne, hästi arenenud ning sobib ideaalselt tootmis- ja logistikaga seotud ettevõtetele
Kui soovid täpsemat infot või aeg broneerida objekti külastuseks, võta ühendust:
Fred Linnukütt
tel. 53 ** ** **
***@***.ee
Jaga minu kontakti kõigile, kes vajavad kinnisvaranõu!
Liitu meie uudiskirjaga ja saa homset kinnisvarainfot juba täna! Vaata https://arikinnisvara.uusmaa.ee
UUS MAA ÄRIKINNISVARA - aastakümned kogemust ja klientide usaldust, läbimõeldud täisteenus ja suurim arv eksperte: vahendamine, hindamine, haldamine, nõustamine ja investeerimine.
Tänassilma tee 23 aadressil, Saku vallas, on saadaval mitmekülgne ja hästi varustatud äripind, mis ühendab endas lao-, tootmis- ja büroopinna. See lahendus sobib ideaalselt ettevõttele, kes hindab head logistilist asukohta ning kvaliteetset töökeskkonda.
I korrusel asub 171,1 m² suurune ladu koos kontori, pesuruumide ja tualetiga
II korrusel on 80 m² ladu ja kontor ning eraldi tualettruum
Kokku üüritavat pinda on 382,50 m²
Laos/töökojas paikneb 2-tonnise tõstejõuga sildkraana
Lao- ja tööruumides on lisaks küttele ka jahutussüsteem
Hoones on oma gaasikatel, ventilatsiooniseade ja jahutus, mis tagavad madalad kõrvalkulud ja sisekliima iseseisva reguleerimise
Määratud 4 parkimiskohta asuvad hoone ees
Lisaparkimine on võimalik hoone otsas vabal alal
Ruumidest tehakse enne üleandmist suurpuhastus ja sanitaarremont
Piltidel nähtav sisustus on soovi korral üürihinna sees, vajadusel eemaldatav
Asukoht Tänassilma Äripargis tagab väga hea ühenduse Tallinna ringtee, sadama ja lennujaamaga
Piirkond on kaasaegne, hästi arenenud ning sobib ideaalselt tootmis- ja logistikaga seotud ettevõtetele
Kui soovid täpsemat infot või aeg broneerida objekti külastuseks, võta ühendust:
Fred Linnukütt
tel. 53 ** ** **
***@***.ee
Jaga minu kontakti kõigile, kes vajavad kinnisvaranõu!
Liitu meie uudiskirjaga ja saa homset kinnisvarainfot juba täna! Vaata https://arikinnisvara.uusmaa.ee
UUS MAA ÄRIKINNISVARA - aastakümned kogemust ja klientide usaldust, läbimõeldud täisteenus ja suurim arv eksperte: vahendamine, hindamine, haldamine, nõustamine ja investeerimine.

































