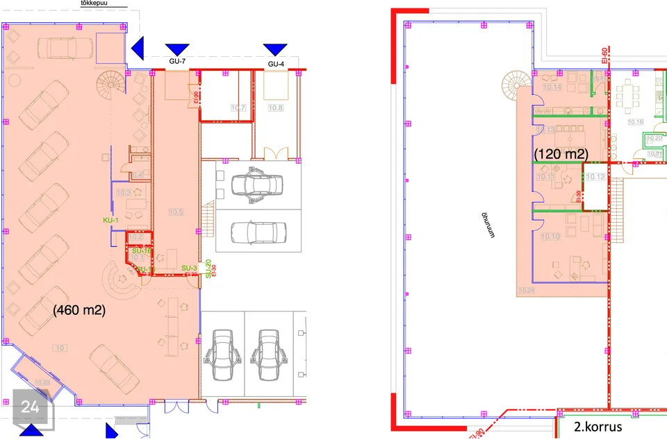
Anname üürile esindusliku äripinna Kuressaares, Auriga Kaubanduskeskuses.
Pinnal on avar ja väga hästi nähtav klaasfassaad Tallinna maantee suunas.
Pinnale on oma sissepääs maja eest ja maast laadimisega tõstuks kauba toomiseks.
2 korruseline pind on kokku 580 m2 ja koosneb:
1. korruse saal, olmeruumid, ladu, kokku 460 m2
2. korruse kontoriruumid, kokku 120 m2
Üürihinnale lisanduvad hoone üldkulud ca. 4,3 eur/m2.
Pinnal on avar ja väga hästi nähtav klaasfassaad Tallinna maantee suunas.
Pinnale on oma sissepääs maja eest ja maast laadimisega tõstuks kauba toomiseks.
2 korruseline pind on kokku 580 m2 ja koosneb:
1. korruse saal, olmeruumid, ladu, kokku 460 m2
2. korruse kontoriruumid, kokku 120 m2
Üürihinnale lisanduvad hoone üldkulud ca. 4,3 eur/m2.





