Kui oled otsinud tervet oma hoonet äritegevuseks, siis siin on Sinu võimalus!
Hoone asub Vete tn 6 ligipääsuga nii Tolli kui ka Vete tänavalt.
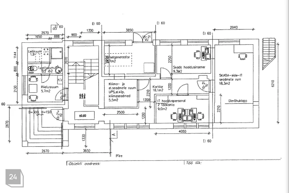
Hetkel on hoones esimesel korrusel 3 kabinetti (18,3 m², 9,3 m² ja 9 m²), saun ja dušš (5,1 m²) ja riietusruum (5,7 m²). Teisel korrusel paiknevad suur saal (67 m²), kabinet (11,7 m²) ja puhkeruum (7,1 m²).
Lisan plaanid piltidele.
Hoone sobib hästi nii stockofficeks kui kontoriks kui ka nt väikeseks tootmishooneks. Aga miks mitte nt kaubanduspinnaks. Parkimiskohad on ümber maja olemas.
Kui võtta ruumid üürile hetkeseisus, siis on kuu üür 692 €.
Kui lasta hoones teha ümberehitustööd vastavalt oma ettevõtte äritegevuse vajadustele, siis lepime kuu üüri kokku vastavalt ümberehituse maksumusele ja kulutustele. Kõik on läbirääkimiste küsimus :)
Lisanduvad igakuised kommunaalmaksed.
Helista 507**** ja läheme vaatame hoone üle!
















