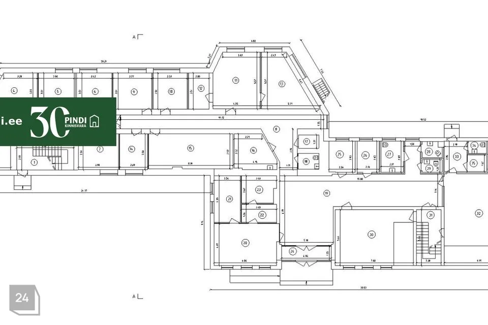
Üürile anda 289,4 m² funktsionaalne büroopind Rapla linnas Sauna tänaval. Ruumid paiknevad I ja II korrusel. Hoones pakkuda erineva suurusega kontoripindu, mis sobivad suurepäraselt nii bürooks kui ka teeninduspindadeks. Hoones on kaks sissepääsu, tänu eraldi sissepääsule otse väljast saavad töötajad ja kliendid siseneda kontorisse sõltumatult ülejäänud hoonest – praktiline lahendus ettevõtetele, kes vajavad privaatsust. Büroopinnad sobivad hästi erinevatele ettevõtetele, kes hindavad mugavat ning privaatset asukohta ja funktsionaalseid kontoriruume.
Ruumide omadused:
Ruumidel on avatavad aknad, mis toovad sisse loomulikku valgust. Keskküte tagab stabiilse soojuse. Mõned ruumid on varustatud konditsioneeriga, mis tagab värske õhu ja kaasaegse sisekliima.
Eraldi olemas laoruumid, mis võimaldavad hoida dokumente, inventari või töövahendeid eraldi kontoripinnast.
Tualettruumid asuvad koridoris.
Andmeside- ja kommunikatsioonisüsteemid paigaldab üürilevõtja.
Parkimine on korraldatud hoone ees asuvas avatud parklas, mis tagab töötajatele ja külalistele mugava ligipääsu otse kontori juurde.
Kuna hoone on kasutuses riigiasutusena on sissepääs piiratud kellaaegadel.
Asukoha eelised:
Bussipeatus asub 700 m kaugusel ja rongijaam 3 km kaugusel. Ümbruskonnas paiknevad erinevad teenindusettevõtted ja äripinnad. Läheduses on olemas ka kaubandus- ja toitlustusasustused.
Tingimused:
Üürihind sisaldab üüriteenuseid, millele lisanduvad kommunaalteenused vastavalt tarbimisele. Täpsemad üüritingimused sõltuvad konkreetsest pinnast. Üürilepingu sõlmimisel tasutakse üürisumma ja tagatisraha, mis võrdub ühe kuu üürisummaga. Kõikide hindadele lisandub käibemaks. Üürileping sõlmitakse tähtajatuna.
Kui tekib mitu huvilist, siis võib üürileandja teha hinnapakkumise ettepaneku.
Huvi korral ja lisainformatsiooni saamiseks võtke ühendust!
Vara omanikuks on Riigi Kinnisvara AS.
-------------------------------------------------------------------------------------------------------------------------------------------------------
PANGA SOODUSTUSED Teeme koostööd kõikide suuremate pankadega! Meie kliendina teenindatakse Sind eelisjärjekorras ning kodulaenu lepingutasule kehtivad soodustused.
VAHENDAMINE Pindi Kinnisvara on pakkunud esindusteenust kinnisvaraturul alates 1995. aastast. Suurima Eesti kinnisvarabüroona oleme esindatud 18 linnas.
OSTUESINDUS Otsid endale kinnisvara? Muudame Sinu otsinguprotsessi sujuvaks ning meeldivaks kogemuseks. Meil on suur kliendibaas ja südikad maaklerid.
HINDAMINE Meie 30 kutselise hindaja eksperthinnanguid aktsepteerivad kõik finantsasutused! Hindame nii elukondlikku kui ärikinnisvara.
HALDAMINE Pakume kinnisvara haldamisel täislahendust: raamatupidamist, tehnosüsteemide hooldust, heakorratöid kinnistul ja hoones, ehituse- ja renoveerimistööde korraldamist, energia-, vee ja kommunikatsiooniteenuste vahendamist ja eripuhastusteenuseid.
JURIIDILINE NÕUSTAMINE Pindi Kinnisvara tütarettevõtte Realia Õigusbüroo spetsialistid on Sulle abiks kõigis kinnisvara puudutavates juriidilistes küsimustes.
Täpsemalt loe ja võta ühendust: https://www.pindi.ee/ või konsulteeri oma maakleriga.
Ruumide omadused:
Ruumidel on avatavad aknad, mis toovad sisse loomulikku valgust. Keskküte tagab stabiilse soojuse. Mõned ruumid on varustatud konditsioneeriga, mis tagab värske õhu ja kaasaegse sisekliima.
Eraldi olemas laoruumid, mis võimaldavad hoida dokumente, inventari või töövahendeid eraldi kontoripinnast.
Tualettruumid asuvad koridoris.
Andmeside- ja kommunikatsioonisüsteemid paigaldab üürilevõtja.
Parkimine on korraldatud hoone ees asuvas avatud parklas, mis tagab töötajatele ja külalistele mugava ligipääsu otse kontori juurde.
Kuna hoone on kasutuses riigiasutusena on sissepääs piiratud kellaaegadel.
Asukoha eelised:
Bussipeatus asub 700 m kaugusel ja rongijaam 3 km kaugusel. Ümbruskonnas paiknevad erinevad teenindusettevõtted ja äripinnad. Läheduses on olemas ka kaubandus- ja toitlustusasustused.
Tingimused:
Üürihind sisaldab üüriteenuseid, millele lisanduvad kommunaalteenused vastavalt tarbimisele. Täpsemad üüritingimused sõltuvad konkreetsest pinnast. Üürilepingu sõlmimisel tasutakse üürisumma ja tagatisraha, mis võrdub ühe kuu üürisummaga. Kõikide hindadele lisandub käibemaks. Üürileping sõlmitakse tähtajatuna.
Kui tekib mitu huvilist, siis võib üürileandja teha hinnapakkumise ettepaneku.
Huvi korral ja lisainformatsiooni saamiseks võtke ühendust!
Vara omanikuks on Riigi Kinnisvara AS.
-------------------------------------------------------------------------------------------------------------------------------------------------------
PANGA SOODUSTUSED Teeme koostööd kõikide suuremate pankadega! Meie kliendina teenindatakse Sind eelisjärjekorras ning kodulaenu lepingutasule kehtivad soodustused.
VAHENDAMINE Pindi Kinnisvara on pakkunud esindusteenust kinnisvaraturul alates 1995. aastast. Suurima Eesti kinnisvarabüroona oleme esindatud 18 linnas.
OSTUESINDUS Otsid endale kinnisvara? Muudame Sinu otsinguprotsessi sujuvaks ning meeldivaks kogemuseks. Meil on suur kliendibaas ja südikad maaklerid.
HINDAMINE Meie 30 kutselise hindaja eksperthinnanguid aktsepteerivad kõik finantsasutused! Hindame nii elukondlikku kui ärikinnisvara.
HALDAMINE Pakume kinnisvara haldamisel täislahendust: raamatupidamist, tehnosüsteemide hooldust, heakorratöid kinnistul ja hoones, ehituse- ja renoveerimistööde korraldamist, energia-, vee ja kommunikatsiooniteenuste vahendamist ja eripuhastusteenuseid.
JURIIDILINE NÕUSTAMINE Pindi Kinnisvara tütarettevõtte Realia Õigusbüroo spetsialistid on Sulle abiks kõigis kinnisvara puudutavates juriidilistes küsimustes.
Täpsemalt loe ja võta ühendust: https://www.pindi.ee/ või konsulteeri oma maakleriga.







































