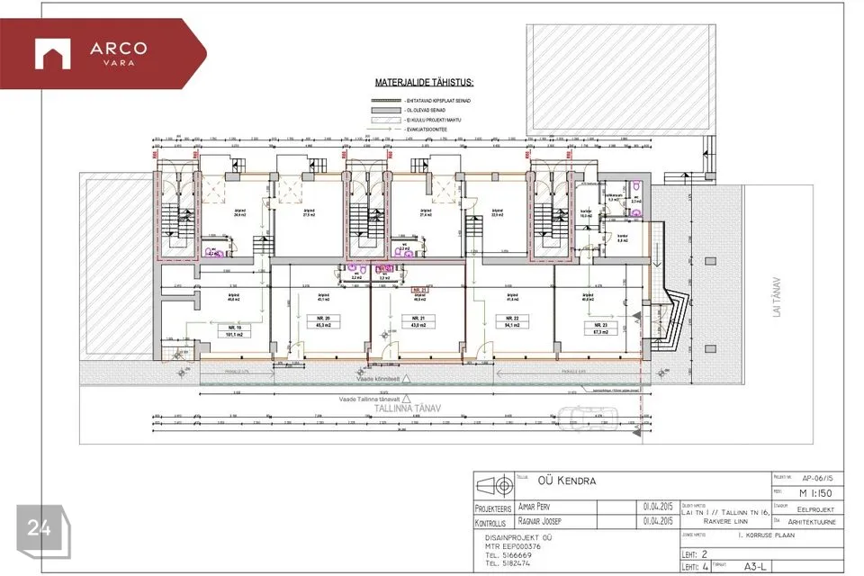
Suurte vitriinakendega avar äripind (67,3 m²) sobib suurepäraselt nii kaubandus- kui teeninduspinnaks.
Vitriinakendega on kaetud kogu tänavapoolne äripinna osa, mis võimaldab suurepäraselt teha nähtavaks oma teenuse/toote/brändi.
Äripind on valgusküllane ja avar, eraldi sissepääsuga tänavalt. Lisaks müügi/teenindussaalile on äripinnal veel eraldi kontoriruum, teine sissepääs ning tualettruum. Võimalus on kujundada ruumid oma käe järgi. Pinnal on keskküte.
Üürihind on 495+km, millele lisanduvad kõrvalkulud.
Maakleritasu ühe kuu üürisummas (lisandub km).
Vitriinakendega on kaetud kogu tänavapoolne äripinna osa, mis võimaldab suurepäraselt teha nähtavaks oma teenuse/toote/brändi.
Äripind on valgusküllane ja avar, eraldi sissepääsuga tänavalt. Lisaks müügi/teenindussaalile on äripinnal veel eraldi kontoriruum, teine sissepääs ning tualettruum. Võimalus on kujundada ruumid oma käe järgi. Pinnal on keskküte.
Üürihind on 495+km, millele lisanduvad kõrvalkulud.
Maakleritasu ühe kuu üürisummas (lisandub km).
--
Müüme, hindame ja teeme Sinu kinnisvara dokumendid korda - iga päev, suurima rõõmu ja pühendumisega!
Edasta müügisoov www.arcovara.ee/et/#edasta-myygisoov
Telli hindamine www.arcovara.ee/et/#telli-hindamine
Saada ehitus- või kasutusloa soov seadustamine.arcovara.ee















