Üürile anda Tallinn-Tartu mnt ääres Mõigu Tehnopargis äripind, mis koosneb kõrgest laost, büroost ja müügisaalist. Sära tee 11 hoone valmis 2018. aastal.
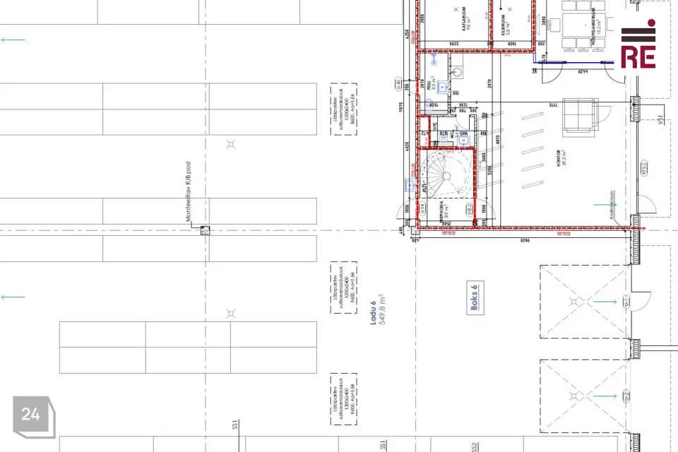
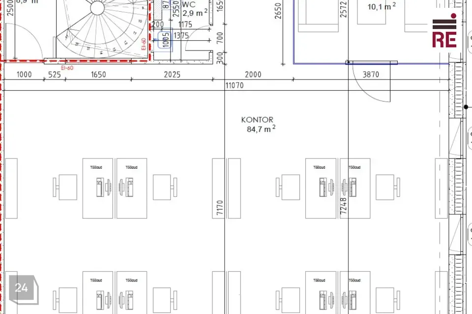
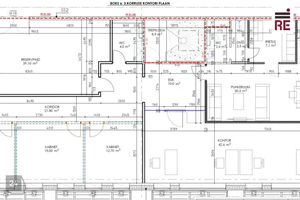
Üüripinna suurus on kokku 956 m². Pinnal on 550 m² ladu, 80 m² kaubandus- ja/või teeninduspind esimesel korrusel, 97 m² suurune büroo teisel korrusel, ca 129 m² büroo, abi- ja olmeruumid (sh puhke- ja riietusruum ning dušš) kolmandal korrusel. Igal korrusel on tualett. I korrusele võimalik luua pesuvõimalus.
Ruumide joonised on leitavad pakkumise galeriist.
- Laopinna vaba kõrgus on 9 meetrit.
- Elektrivõimsus 63A.
- Lattu pääseb läbi kahe suure tõstukse mõõtudega 3,5m x 4,2m (L x K). Üks ustest on maaga tasapinnas ning teine on laadimissillalt ligipääsuga.
- Loomulik valgus laopinnal nii akendest kui suitsuluukidest. Suitsuluuke saab tuulutuse otstarbel avada.
- Toomisruumis on suruõhutorustik.
- Tootmisruumi on paigaldatud 5 kaamerat.
- Mitmesse punkti on veetud jõupistikud.
- Hoones tagavad hea sisekliima sundventilatsioon, gaasiküte ning büroopinnal ka jahutus.
- Kontori viimistluses kasutatud naturaalseid materjale nagu betoon ja puit. Siseseinad on valdavalt klaasist.
- Tänu kaasaegsetele ning kvaliteetsetele tehnilistele lahendustele on tagatud soodsad kõrvalkulud.
- Ruumidesse ja territooriumile on 24h ligipääs.
- Parkimine kinnistul on tasuta. Hinna sees on 12-13 kaetud parkimiskohta.
- Hinnas sisaldub ka ca 200 m² väliala kasutamise õigus.
Üürihinnale lisanduvad kõrvalkulud ja käibemaks.
Sära tee 11 hoone ja pakkumistega saate tutvuda siin siin:
http://www.re.ee/aripinnad/lao-ja-tootmispinnad/sara-tee-11
Pakkumine on vahendustasuta.
Huvi korral annan meeleldi lisainfot ja korraldan objekti külastuse.
Kui antud objekt ei ole see mida otsite, siis andke oma soovist teada ja leiame just teile sobiva pinna.
RE Kinnisvara AS on tegutsenud 1995. aastast, olles üks vanimaid Eesti kinnisvaraettevõtteid.
Pakume kinnisvaraga seotud täisteenust:
- äri- ja elamispindade maaklerteenus
- kinnisvara hindamine laenu tagatiseks, sh kohtutele, finantsaruandluseks jne.
- äri- ja elukondlike arendusprojektide müügikorraldus
- kinnisvaraturu ja -projektide analüüs ja konsultatsioon
- kinnisvara seadustamine
Teeme koostööd kõigi Eesti pankade ja finantsasutustega. Meie eksperthinnangud on aktsepteeritud kõigi Eestis tegutsevate krediidiasutuste poolt.
Tutvu lähemalt re.ee.
RE Kinnisvara AS – PARIM OSA KINNISVARAST
Helista 66 88 666 või saada e-mail ***@***.ee
https://facebook.com/re.kinnisvara
https://www.instagram.com/rekinnisvara/
https://ee.linkedin.com/company/re-kinnisvara
Üüripinna suurus on kokku 956 m². Pinnal on 550 m² ladu, 80 m² kaubandus- ja/või teeninduspind esimesel korrusel, 97 m² suurune büroo teisel korrusel, ca 129 m² büroo, abi- ja olmeruumid (sh puhke- ja riietusruum ning dušš) kolmandal korrusel. Igal korrusel on tualett. I korrusele võimalik luua pesuvõimalus.
Ruumide joonised on leitavad pakkumise galeriist.
- Laopinna vaba kõrgus on 9 meetrit.
- Elektrivõimsus 63A.
- Lattu pääseb läbi kahe suure tõstukse mõõtudega 3,5m x 4,2m (L x K). Üks ustest on maaga tasapinnas ning teine on laadimissillalt ligipääsuga.
- Loomulik valgus laopinnal nii akendest kui suitsuluukidest. Suitsuluuke saab tuulutuse otstarbel avada.
- Toomisruumis on suruõhutorustik.
- Tootmisruumi on paigaldatud 5 kaamerat.
- Mitmesse punkti on veetud jõupistikud.
- Hoones tagavad hea sisekliima sundventilatsioon, gaasiküte ning büroopinnal ka jahutus.
- Kontori viimistluses kasutatud naturaalseid materjale nagu betoon ja puit. Siseseinad on valdavalt klaasist.
- Tänu kaasaegsetele ning kvaliteetsetele tehnilistele lahendustele on tagatud soodsad kõrvalkulud.
- Ruumidesse ja territooriumile on 24h ligipääs.
- Parkimine kinnistul on tasuta. Hinna sees on 12-13 kaetud parkimiskohta.
- Hinnas sisaldub ka ca 200 m² väliala kasutamise õigus.
Üürihinnale lisanduvad kõrvalkulud ja käibemaks.
Sära tee 11 hoone ja pakkumistega saate tutvuda siin siin:
http://www.re.ee/aripinnad/lao-ja-tootmispinnad/sara-tee-11
Pakkumine on vahendustasuta.
Huvi korral annan meeleldi lisainfot ja korraldan objekti külastuse.
Kui antud objekt ei ole see mida otsite, siis andke oma soovist teada ja leiame just teile sobiva pinna.
RE Kinnisvara AS on tegutsenud 1995. aastast, olles üks vanimaid Eesti kinnisvaraettevõtteid.
Pakume kinnisvaraga seotud täisteenust:
- äri- ja elamispindade maaklerteenus
- kinnisvara hindamine laenu tagatiseks, sh kohtutele, finantsaruandluseks jne.
- äri- ja elukondlike arendusprojektide müügikorraldus
- kinnisvaraturu ja -projektide analüüs ja konsultatsioon
- kinnisvara seadustamine
Teeme koostööd kõigi Eesti pankade ja finantsasutustega. Meie eksperthinnangud on aktsepteeritud kõigi Eestis tegutsevate krediidiasutuste poolt.
Tutvu lähemalt re.ee.
RE Kinnisvara AS – PARIM OSA KINNISVARAST
Helista 66 88 666 või saada e-mail ***@***.ee
https://facebook.com/re.kinnisvara
https://www.instagram.com/rekinnisvara/
https://ee.linkedin.com/company/re-kinnisvara













































