Vahetult Tallinna kesklinna ja Peetri aleviku piiril, aadressil Tartu maantee 98 on võimalik üürile võtta hea nähtavusega eraldiseisev ärihoone. Multifunktsionaalne hoone sobib väga hästi ettevõttele, kes soovib olla hoone ainukasutaja ning lisaks kaubanduspinnale, laole ja büroopinnale vajab ka parkimiskohti ja väliterritooriumit.
PAKUTAVAD PINNAD:
Üürile on pakkuda eraldiseisev hoone kogupinnaga ca 588 m². Kaubandus-, teenindus- või laofunktsiooniga ruumi põrandapinna suurus I korrusel on ca 329 m² (kõrgus fermini ca 5,3 m). Lisaks on I korrusel ka büroo-, olme- ja abiruumid suurusega ca 106 m².
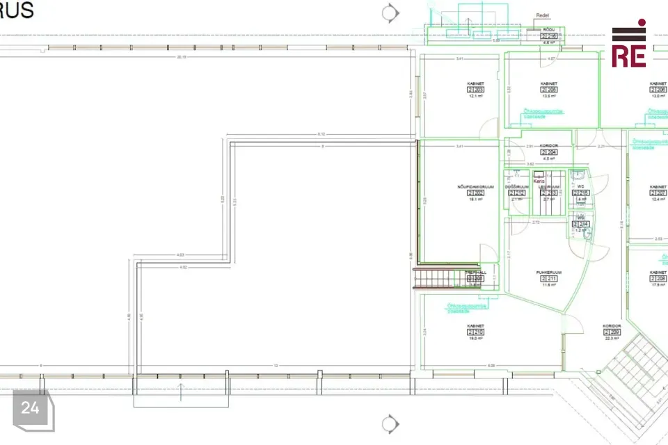
II korrusel paikneb kabineti jaotusega kontoripind suurusega 152 m². Hetke planeeringu järgi on pind jaotatud 6-ks kabinetiks ja eraldi nõupidamisteruumiks. II korrusel on ka riietusruum, pesuruum, saun ja tualetid.
Korruste joonised on leitavad kuulutuse galeriist.
PINNA TEHNILINE KIRJELDUS:
- Hoone on ehitatud 1999. aastal ja renoveeritud 2008. aastal.
- Lao- ja kaubanduspinna puhas kõrgus on 5,3 meetrit.
- Kauba laadimisvõimalus maaga tasapinnas tõstukse kaudu.
- Hoone esifassaadil on 2 maaga tasapinnas kahepoolset klaasust.
- Plaaditud põrand I korrusel.
- Loomulik valgus ja hea presenteerimisvõimalus läbi suurte maast-laeni vitriinakende.
- Hoones on kombineeritud küttelahendus: õhksoojuspumbad + õlikatel, mis soojendab vett radikates ja kalorifeerides.
- Hoones on sundventilatsioon ja jahutusseadmed.
- Hoone on väga hea nähtavusega Tartu maantee ääres.
- Hoone fassaadile ja aiale saab paigaldada välireklaami.
- Kinnistu on osaliselt aiaga piiratud.
- Majaesisel platsil on ca 17 sõiduauto parkimise võimalus.
- Maja taga olevat kõvakattega platsi võimalik kasutada väliladustamiseks.
ASUKOHT:
Tartu mnt 98 ärihoone asub vahetult Tartu maantee ääres, lennujaamast möödudes esimene hoone paremal pool teed. Hoone ees on Kanali tee bussipeatus
Üürnik haldab kinnistut ise ja tasub kogu kinnistu halduseks, hoolduseks ja ülalpidamiseks vajaminevad kõrvalkulud.
Üürihinnale lisandub käibemaks.
Üürilepingu sõlmimisel tuleb tasuda üüri ettemaks, tagatisraha ja maakleribüroo vahendustasu.
Huvi korral annan meeleldi lisainfot ja korraldan objekti külastuse.
Kui antud objekt ei ole see mida otsite, siis andke oma soovist teada ja leiame just Teile sobiva lahenduse. Andke oma tehnilisest erisoovidest teada ja vastavalt võimalustele proovime leida lahendusi.
RE Kinnisvara AS on tegutsenud 1995. aastast, olles üks vanimaid Eesti kinnisvaraettevõtteid.
Pakume kinnisvaraga seotud täisteenust:
- äri- ja elamispindade maaklerteenus
- kinnisvara hindamine laenu tagatiseks, sh kohtutele, finantsaruandluseks jne.
- äri- ja elukondlike arendusprojektide müügikorraldus
- kinnisvaraturu ja -projektide analüüs ja konsultatsioon
- kinnisvara seadustamine
Teeme koostööd kõigi Eesti pankade ja finantsasutustega. Meie eksperthinnangud on aktsepteeritud kõigi Eestis tegutsevate krediidiasutuste poolt.
Tutvu lähemalt re.ee.
RE Kinnisvara AS – PARIM OSA KINNISVARAST
Helista 66 88 666 või saada e-mail ***@***.ee
https://facebook.com/re.kinnisvara
https://www.instagram.com/rekinnisvara/
https://ee.linkedin.com/company/re-kinnisvara
PAKUTAVAD PINNAD:
Üürile on pakkuda eraldiseisev hoone kogupinnaga ca 588 m². Kaubandus-, teenindus- või laofunktsiooniga ruumi põrandapinna suurus I korrusel on ca 329 m² (kõrgus fermini ca 5,3 m). Lisaks on I korrusel ka büroo-, olme- ja abiruumid suurusega ca 106 m².
II korrusel paikneb kabineti jaotusega kontoripind suurusega 152 m². Hetke planeeringu järgi on pind jaotatud 6-ks kabinetiks ja eraldi nõupidamisteruumiks. II korrusel on ka riietusruum, pesuruum, saun ja tualetid.
Korruste joonised on leitavad kuulutuse galeriist.
PINNA TEHNILINE KIRJELDUS:
- Hoone on ehitatud 1999. aastal ja renoveeritud 2008. aastal.
- Lao- ja kaubanduspinna puhas kõrgus on 5,3 meetrit.
- Kauba laadimisvõimalus maaga tasapinnas tõstukse kaudu.
- Hoone esifassaadil on 2 maaga tasapinnas kahepoolset klaasust.
- Plaaditud põrand I korrusel.
- Loomulik valgus ja hea presenteerimisvõimalus läbi suurte maast-laeni vitriinakende.
- Hoones on kombineeritud küttelahendus: õhksoojuspumbad + õlikatel, mis soojendab vett radikates ja kalorifeerides.
- Hoones on sundventilatsioon ja jahutusseadmed.
- Hoone on väga hea nähtavusega Tartu maantee ääres.
- Hoone fassaadile ja aiale saab paigaldada välireklaami.
- Kinnistu on osaliselt aiaga piiratud.
- Majaesisel platsil on ca 17 sõiduauto parkimise võimalus.
- Maja taga olevat kõvakattega platsi võimalik kasutada väliladustamiseks.
ASUKOHT:
Tartu mnt 98 ärihoone asub vahetult Tartu maantee ääres, lennujaamast möödudes esimene hoone paremal pool teed. Hoone ees on Kanali tee bussipeatus
Üürnik haldab kinnistut ise ja tasub kogu kinnistu halduseks, hoolduseks ja ülalpidamiseks vajaminevad kõrvalkulud.
Üürihinnale lisandub käibemaks.
Üürilepingu sõlmimisel tuleb tasuda üüri ettemaks, tagatisraha ja maakleribüroo vahendustasu.
Huvi korral annan meeleldi lisainfot ja korraldan objekti külastuse.
Kui antud objekt ei ole see mida otsite, siis andke oma soovist teada ja leiame just Teile sobiva lahenduse. Andke oma tehnilisest erisoovidest teada ja vastavalt võimalustele proovime leida lahendusi.
RE Kinnisvara AS on tegutsenud 1995. aastast, olles üks vanimaid Eesti kinnisvaraettevõtteid.
Pakume kinnisvaraga seotud täisteenust:
- äri- ja elamispindade maaklerteenus
- kinnisvara hindamine laenu tagatiseks, sh kohtutele, finantsaruandluseks jne.
- äri- ja elukondlike arendusprojektide müügikorraldus
- kinnisvaraturu ja -projektide analüüs ja konsultatsioon
- kinnisvara seadustamine
Teeme koostööd kõigi Eesti pankade ja finantsasutustega. Meie eksperthinnangud on aktsepteeritud kõigi Eestis tegutsevate krediidiasutuste poolt.
Tutvu lähemalt re.ee.
RE Kinnisvara AS – PARIM OSA KINNISVARAST
Helista 66 88 666 või saada e-mail ***@***.ee
https://facebook.com/re.kinnisvara
https://www.instagram.com/rekinnisvara/
https://ee.linkedin.com/company/re-kinnisvara





































