Tallinnale ühes lähimas äripargis - Mõigu tehnopargis on võimalik üürile võtta eraldiseisev ärihoone aadressil Helgi tee 13 ja vahetult hoone kõrval paiknev kõvakattega plats aadressil Sära tee 14. Multifunktsionaalne kompleks sobib väga hästi ettevõttele, kes soovib olla hoone ainukasutaja, vajab palju parkimiskohti ning lisaks laole ja büroopinnale vajab ka kerge tootmis- või hooldusruume.
PAKUTAVAD PINNAD:
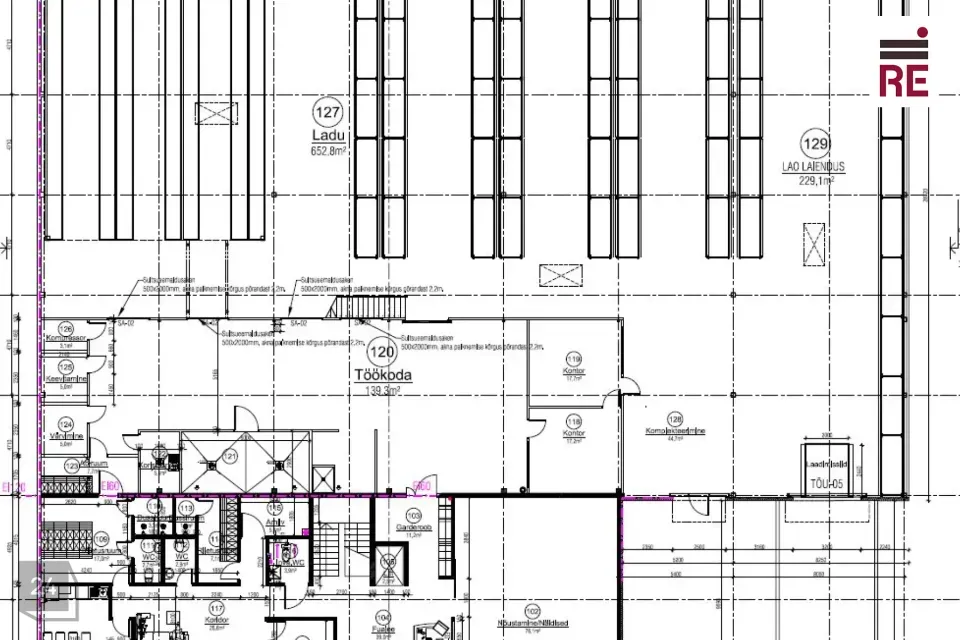
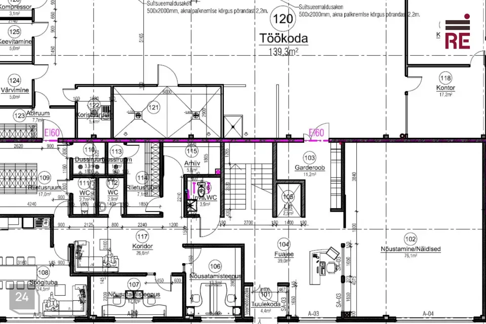
Üürile on pakkuda eraldiseisev hoone kogupinnaga ca 2035,4 m². Lao- või tootmisfunktsiooniga ruumi põrandapinna suurus I korrusel on ca 926,6 m² (kõrgus 7 m).
I korrusel asuvad veel ka vastuvõtuala, näidistesaal, söögi- ja puhketuba ning mitmed olmeruumid (2 komplekti riietus- ja pesuruume)
Lisaks asub I korrusel nn töökoda, mis on kõrge tehnilise valmidusega (valgustus, ventilatsioon, suurel hulgal pistikuid, suruõhutrass, värvimisruum, kompressoriruum, keevitusruum, pesuruum koos äravooludega, töökoja kontor jne)
II korrusel paikneb kabineti jaotusega kontoripind suurusega 243 m². Hetke planeeringu järgi on pind jaotatud 11-ks kabinetiks ja eraldi nõupidamisteruumiks. Korruseid ühendab trepp ja ka (inva) lift.
Üürniku kasutada on kergkauba ladustamiseks II korrusel käidav katus/lagi suurusega 225,8 m² ja riiulisüsteemile toetuv platvorm suurusega 169 m².
Korruste joonised on leitavad kuulutuse galeriist.
PINNA TEHNILINE KIRJELDUS:
- Hoone on ehitatud 2014. aastal. 2019. aastal on rajatud juurdeehitus lao laiendusena.
- Laopinna puhas kõrgus on 7 meetrit.
- Laadimisvõimalus erinevalt tasapinnalt võimaldades nii kaubiku kui rekka laadimist.
- Hoone esifassaadil on 1 maaga tasapinnas tõstvärav 3,6 m (k) x 2,5 m (l) ja 1 värav reguleeritava kõrgusega laadimissillaga 3,6 m (k) x 3,2 m (l).
- Hoone tagumisel fassaadil on 2 maaga tasapinnas tõstväravat 3,6 m (k) x 2,5 m (l).
- Tolmuvaba betoonpõrand.
- Loomulik valgus laoruumis läbi suitsuluukide.
- Ruume köetakse ökonoomsete gaasikalorifeeridega.
- Elektrivõimsus 80A.
- Hoone fassaadile saab paigaldada välireklaami.
- Invalift ühendab kahte korrust.
- Majaesisel platsil ca 21 sõiduauto parkimise võimalus.
VÄLIPLATS:
Hoone taga on võimalik täiendavalt üürida ca 2000 m2 kõvakattega väliplatsi ladustamiseks, parkimiseks või teenuse pakkumiseks. Väliplatsi igakuine üürihind on 1750 EUR + KM.
Platsi mitte üürimisel jääb kaubaga ligipääs ainult hoone esifassaadi poolt.
Hoone üürihind on 14 000 EUR + KM. Hoone ja väliplatsi eest kokku on üürihind 15 750 EUR + KM.
ASUKOHT:
Mõigu Tehnopark on pea täielikult välja arendatud ja Tallinnale üks lähimaid äriparke. Sinna on kolinud mitmed nii kohalikud kui ka rahvusvahelised ettevõtted, kes vajavad ühes asukohas multifunktsionaalset pinda nii lao- ja tootmistegevuse, kui ka müügi ja kontoriosaga.
Üürihinnale lisanduvad soodsad kõrvalkulud ja käibemaks.
Pakkumine on vahendustasuta.
Huvi korral annan meeleldi lisainfot ja korraldan objekti külastuse.
Kui antud objekt ei ole see mida otsite, siis andke oma soovist teada ja leiame just Teile sobiva lahenduse. Andke oma tehnilisest erisoovidest teada ja vastavalt võimalustele proovime leida lahendusi.
RE Kinnisvara AS on tegutsenud 1995. aastast, olles üks vanimaid Eesti kinnisvaraettevõtteid.
Pakume kinnisvaraga seotud täisteenust:
- äri- ja elamispindade maaklerteenus
- kinnisvara hindamine laenu tagatiseks, sh kohtutele, finantsaruandluseks jne.
- äri- ja elukondlike arendusprojektide müügikorraldus
- kinnisvaraturu ja -projektide analüüs ja konsultatsioon
- kinnisvara seadustamine
Teeme koostööd kõigi Eesti pankade ja finantsasutustega. Meie eksperthinnangud on aktsepteeritud kõigi Eestis tegutsevate krediidiasutuste poolt.
Tutvu lähemalt re.ee.
RE Kinnisvara AS – PARIM OSA KINNISVARAST
Helista 66 88 666 või saada e-mail ***@***.ee
https://facebook.com/re.kinnisvara
https://www.instagram.com/rekinnisvara/
https://ee.linkedin.com/company/re-kinnisvara
PAKUTAVAD PINNAD:
Üürile on pakkuda eraldiseisev hoone kogupinnaga ca 2035,4 m². Lao- või tootmisfunktsiooniga ruumi põrandapinna suurus I korrusel on ca 926,6 m² (kõrgus 7 m).
I korrusel asuvad veel ka vastuvõtuala, näidistesaal, söögi- ja puhketuba ning mitmed olmeruumid (2 komplekti riietus- ja pesuruume)
Lisaks asub I korrusel nn töökoda, mis on kõrge tehnilise valmidusega (valgustus, ventilatsioon, suurel hulgal pistikuid, suruõhutrass, värvimisruum, kompressoriruum, keevitusruum, pesuruum koos äravooludega, töökoja kontor jne)
II korrusel paikneb kabineti jaotusega kontoripind suurusega 243 m². Hetke planeeringu järgi on pind jaotatud 11-ks kabinetiks ja eraldi nõupidamisteruumiks. Korruseid ühendab trepp ja ka (inva) lift.
Üürniku kasutada on kergkauba ladustamiseks II korrusel käidav katus/lagi suurusega 225,8 m² ja riiulisüsteemile toetuv platvorm suurusega 169 m².
Korruste joonised on leitavad kuulutuse galeriist.
PINNA TEHNILINE KIRJELDUS:
- Hoone on ehitatud 2014. aastal. 2019. aastal on rajatud juurdeehitus lao laiendusena.
- Laopinna puhas kõrgus on 7 meetrit.
- Laadimisvõimalus erinevalt tasapinnalt võimaldades nii kaubiku kui rekka laadimist.
- Hoone esifassaadil on 1 maaga tasapinnas tõstvärav 3,6 m (k) x 2,5 m (l) ja 1 värav reguleeritava kõrgusega laadimissillaga 3,6 m (k) x 3,2 m (l).
- Hoone tagumisel fassaadil on 2 maaga tasapinnas tõstväravat 3,6 m (k) x 2,5 m (l).
- Tolmuvaba betoonpõrand.
- Loomulik valgus laoruumis läbi suitsuluukide.
- Ruume köetakse ökonoomsete gaasikalorifeeridega.
- Elektrivõimsus 80A.
- Hoone fassaadile saab paigaldada välireklaami.
- Invalift ühendab kahte korrust.
- Majaesisel platsil ca 21 sõiduauto parkimise võimalus.
VÄLIPLATS:
Hoone taga on võimalik täiendavalt üürida ca 2000 m2 kõvakattega väliplatsi ladustamiseks, parkimiseks või teenuse pakkumiseks. Väliplatsi igakuine üürihind on 1750 EUR + KM.
Platsi mitte üürimisel jääb kaubaga ligipääs ainult hoone esifassaadi poolt.
Hoone üürihind on 14 000 EUR + KM. Hoone ja väliplatsi eest kokku on üürihind 15 750 EUR + KM.
ASUKOHT:
Mõigu Tehnopark on pea täielikult välja arendatud ja Tallinnale üks lähimaid äriparke. Sinna on kolinud mitmed nii kohalikud kui ka rahvusvahelised ettevõtted, kes vajavad ühes asukohas multifunktsionaalset pinda nii lao- ja tootmistegevuse, kui ka müügi ja kontoriosaga.
Üürihinnale lisanduvad soodsad kõrvalkulud ja käibemaks.
Pakkumine on vahendustasuta.
Huvi korral annan meeleldi lisainfot ja korraldan objekti külastuse.
Kui antud objekt ei ole see mida otsite, siis andke oma soovist teada ja leiame just Teile sobiva lahenduse. Andke oma tehnilisest erisoovidest teada ja vastavalt võimalustele proovime leida lahendusi.
RE Kinnisvara AS on tegutsenud 1995. aastast, olles üks vanimaid Eesti kinnisvaraettevõtteid.
Pakume kinnisvaraga seotud täisteenust:
- äri- ja elamispindade maaklerteenus
- kinnisvara hindamine laenu tagatiseks, sh kohtutele, finantsaruandluseks jne.
- äri- ja elukondlike arendusprojektide müügikorraldus
- kinnisvaraturu ja -projektide analüüs ja konsultatsioon
- kinnisvara seadustamine
Teeme koostööd kõigi Eesti pankade ja finantsasutustega. Meie eksperthinnangud on aktsepteeritud kõigi Eestis tegutsevate krediidiasutuste poolt.
Tutvu lähemalt re.ee.
RE Kinnisvara AS – PARIM OSA KINNISVARAST
Helista 66 88 666 või saada e-mail ***@***.ee
https://facebook.com/re.kinnisvara
https://www.instagram.com/rekinnisvara/
https://ee.linkedin.com/company/re-kinnisvara




































