Peetri maja on Tartu maantee vahetus läheduses uus moodsate nutilahendustega ärihoone, kus on pakkuda 1. korruse üüripind.
Eesti ühe suurima liiklustihedusega Tallinn-Tartu maantee ääres asuv hoone on ideaalne äritegevuseks. Asukoht on vaid 4 kilomeetrit Tallinna piirist, otse ärilinnaku keskel. Neljakordses hoones asuvad avarad büroo- ja teeninduspinnad.
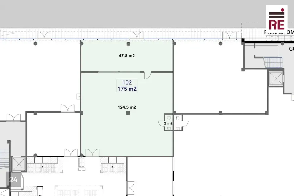
Üüritav 175 m2 suurune pind asub 1. korrusel. Tegemist on multifunktsionaalse äripinnaga, mis hõlmab bürood või esindusruumi, lao- ja toomisruumi. Ruumi muudavad avaraks kõrged ~4 m laed ning efekti annab terratsopõrand. Üürihinnas sisaldub (ja juba üürihinna sisse arvutatud) +10% tasu ühiskasutuses olevate lisavõimaluste eest:
* Büroopindade üürnikele on ühiskasutuses igal korrusel asuvad kaasaegse tehnikaga varustatud nõupidamisruumid, täisvarustuses köök koos puhkealaga, tualetid ning duširuumid.
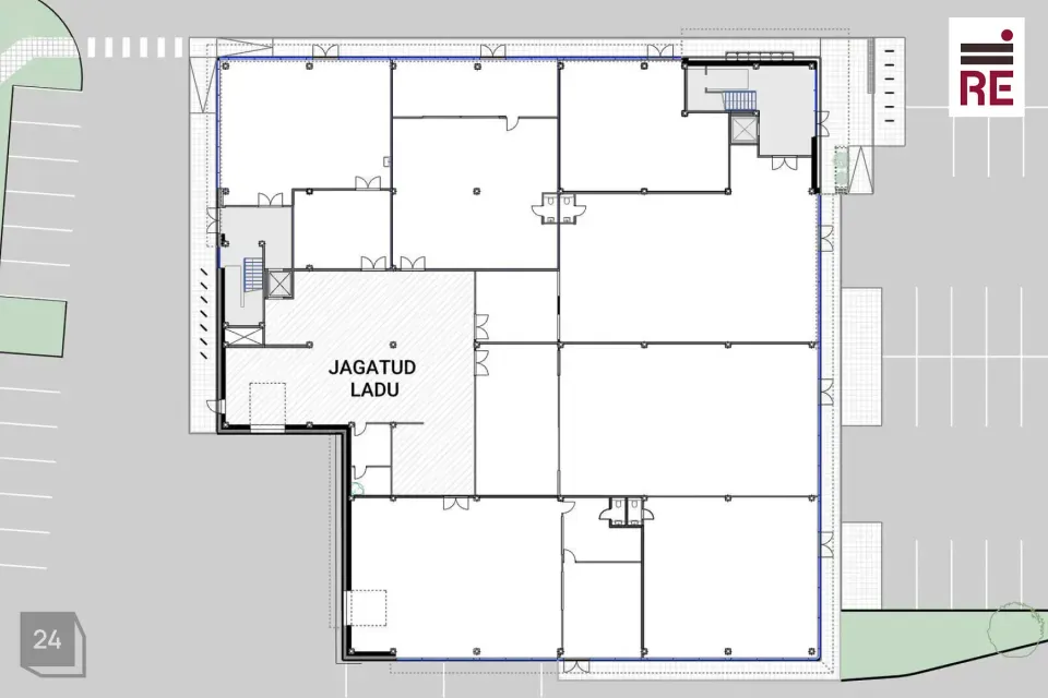
* Üürnikele on hoone 1. korrusel laoruumi kasutamise võimalus koos kulleritele pakkide toomiseks loodud eraldi tsooniga. Lattu on kõrgematelt korrustelt liftiga otse ligipääs.
*Lisaks on kõigil üürnikel võimalik kasutada printerit/koopiamasinat, snäkiautomaati ja pakiautomaati. Hoone fassaadile on võimalik paigaldada Tartu maanteelt hästi nähtav valgusreklaam.
Kõik pinnad on varustatud moodsate tehnosüsteemidega- sundventilatsioon, jahutus, distantsjuhtimisega turvasüsteemid ning sissepääsud.
Tasuta parkimine nii töötajatele kui ka klientidele on korraldatud vahetult hoone ümbruses.
Hoones saadaval erineva suurusega büroopinnad kuni 120 m2.
Üürihinnale lisanduvad kõrvalkulud ning käibemaks. Vahendustasu ei lisandu.
Võtke palun ühendust ning korraldan hea meelega külastuse ja vastan lisaküsimustele.
RE Kinnisvara AS on tegutsenud 1995. aastast, olles üks vanimaid Eesti kinnisvaraettevõtteid.
Pakume kinnisvaraga seotud täisteenust:
- äri- ja elamispindade maaklerteenus
- kinnisvara hindamine laenu tagatiseks, sh kohtutele, finantsaruandluseks jne.
- äri- ja elukondlike arendusprojektide müügikorraldus
- kinnisvaraturu ja -projektide analüüs ja konsultatsioon
- kinnisvara seadustamine
Teeme koostööd kõigi Eesti pankade ja finantsasutustega. Meie eksperthinnangud on aktsepteeritud kõigi Eestis tegutsevate krediidiasutuste poolt.
Tutvu lähemalt re.ee.
RE Kinnisvara AS – PARIM OSA KINNISVARAST
Helista 66 88 666 või saada e-mail ***@***.ee
https://facebook.com/re.kinnisvara
https://www.instagram.com/rekinnisvara/
https://ee.linkedin.com/company/re-kinnisvara
Eesti ühe suurima liiklustihedusega Tallinn-Tartu maantee ääres asuv hoone on ideaalne äritegevuseks. Asukoht on vaid 4 kilomeetrit Tallinna piirist, otse ärilinnaku keskel. Neljakordses hoones asuvad avarad büroo- ja teeninduspinnad.
Üüritav 175 m2 suurune pind asub 1. korrusel. Tegemist on multifunktsionaalse äripinnaga, mis hõlmab bürood või esindusruumi, lao- ja toomisruumi. Ruumi muudavad avaraks kõrged ~4 m laed ning efekti annab terratsopõrand. Üürihinnas sisaldub (ja juba üürihinna sisse arvutatud) +10% tasu ühiskasutuses olevate lisavõimaluste eest:
* Büroopindade üürnikele on ühiskasutuses igal korrusel asuvad kaasaegse tehnikaga varustatud nõupidamisruumid, täisvarustuses köök koos puhkealaga, tualetid ning duširuumid.
* Üürnikele on hoone 1. korrusel laoruumi kasutamise võimalus koos kulleritele pakkide toomiseks loodud eraldi tsooniga. Lattu on kõrgematelt korrustelt liftiga otse ligipääs.
*Lisaks on kõigil üürnikel võimalik kasutada printerit/koopiamasinat, snäkiautomaati ja pakiautomaati. Hoone fassaadile on võimalik paigaldada Tartu maanteelt hästi nähtav valgusreklaam.
Kõik pinnad on varustatud moodsate tehnosüsteemidega- sundventilatsioon, jahutus, distantsjuhtimisega turvasüsteemid ning sissepääsud.
Tasuta parkimine nii töötajatele kui ka klientidele on korraldatud vahetult hoone ümbruses.
Hoones saadaval erineva suurusega büroopinnad kuni 120 m2.
Üürihinnale lisanduvad kõrvalkulud ning käibemaks. Vahendustasu ei lisandu.
Võtke palun ühendust ning korraldan hea meelega külastuse ja vastan lisaküsimustele.
RE Kinnisvara AS on tegutsenud 1995. aastast, olles üks vanimaid Eesti kinnisvaraettevõtteid.
Pakume kinnisvaraga seotud täisteenust:
- äri- ja elamispindade maaklerteenus
- kinnisvara hindamine laenu tagatiseks, sh kohtutele, finantsaruandluseks jne.
- äri- ja elukondlike arendusprojektide müügikorraldus
- kinnisvaraturu ja -projektide analüüs ja konsultatsioon
- kinnisvara seadustamine
Teeme koostööd kõigi Eesti pankade ja finantsasutustega. Meie eksperthinnangud on aktsepteeritud kõigi Eestis tegutsevate krediidiasutuste poolt.
Tutvu lähemalt re.ee.
RE Kinnisvara AS – PARIM OSA KINNISVARAST
Helista 66 88 666 või saada e-mail ***@***.ee
https://facebook.com/re.kinnisvara
https://www.instagram.com/rekinnisvara/
https://ee.linkedin.com/company/re-kinnisvara





































