Üürile anda kaasaegne A-energiaklassi Stockoffice-tüüpi äripind, mis asub logistiliselt suurepärases asukohas – Suur-Sõjamäe 37a, Tallinna piiril.
Tegemist on hästi planeeritud ja madalate kõrvalkuludega büroo- ja laohoone kompleksiga, kus kõik vajalik on juba olemas. Pind sobib ideaalselt ettevõttele, kelle tegevus eeldab esindusruumi, kontorit ja ladu ühes kohas.
Pinnal on sisseehitatud kööginurk, maast laeni aknad ning soovikorral on võimalik laoruumi jätta olemasolevad laoriiulid. Samuti on olemas kaugjuhitav laouks (3,0 x 3,0 m), kaasaegne valve- ja tuleohutussüsteem. Küte on lahendatud gaasikatlaga (büroodes põrandaküte, ladudes puhurid), ventilatsioon soojustagastusega ning lisaks aitavad kulusid vähendada katusel paiknevad päikesepaneelid.
Territooriumil on piisavalt ruumi suurtel veokitel manööverdamiseks ja kaupade laadimiseks, samuti on olemas avar parkla töötajatele ja külastajatele. Vajadusel on võimalik kaupu ladustada samas hoones asuvas Pakendikeskuse logistikakeskuses.
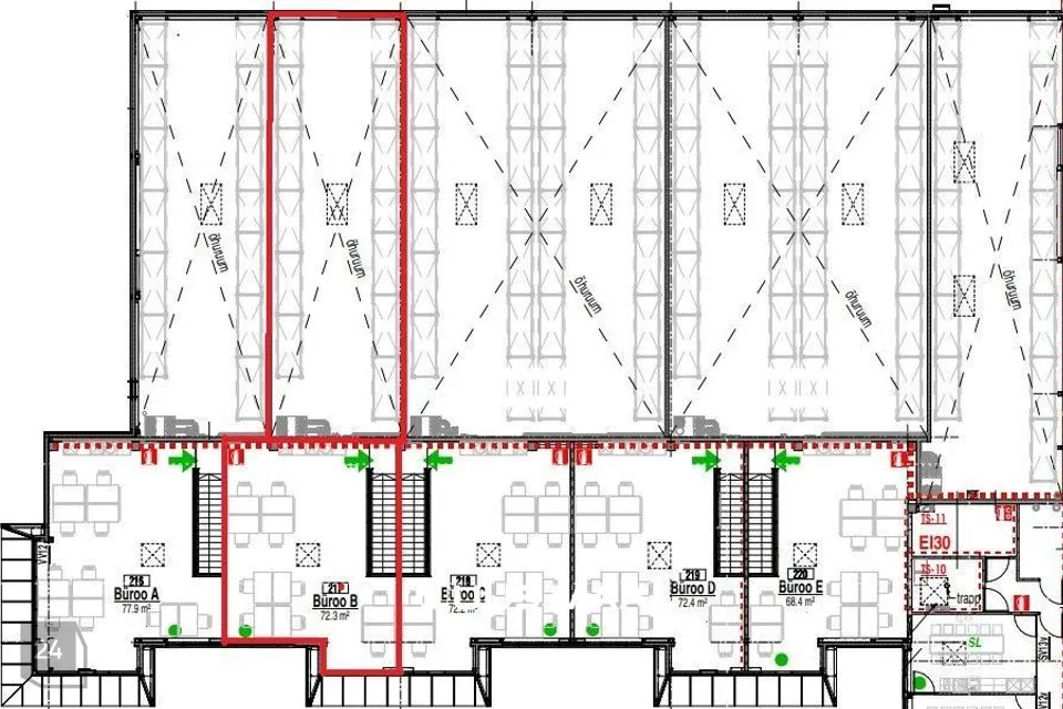
Pinna jaotus:
1. korrus: esindusruum 64,6 m², san. ruum 3,6 m², ladu 111,8 m².
2. korrus: büroo 72,3 m².
Kokku 252.30 m².
Hea ühendus Ülemiste keskuse, Tallinna ringtee ja kesklinnaga. Lähim bussipeatus Sõjamäe asub 250 m kaugusel (liinid 7, 15, 103).
Lepingu sõlmimisel tasutakse esimese kuu üür ja 1–3 kuu tagatisraha. Üürile lisandub käibemaks.
JAGA MINU KONTAKTI KÕIGILE, KES VAJAVAD KINNISVARANÕU!
- - - - - - - - - -
Telli hindamine UUS MAA Kinnisvarabüroolt https://uusmaa.ee/teenused/hindamine/
UUS MAA KINNISVARABÜROO EKSPERTHINNANGUID AKTSEPTEERIVAD KÕIK FINANTSASUTUSED.
- - - - - - - - - -
Liitu Uus Maa uudiskirjaga ja saa homset kinnisvarainfot juba täna!
https://www.uusmaa.ee/uudiskirjagaliitumine/
- - - - - - - - - -
Kodu aitab osta Swedbank.
Pakkumise saamiseks kasuta koodi UUSMAA ja Sind teenindatakse eelisjärjekorras.
Võtame ühendust 1 tööpäeva jooksul.
Uus Maa kliendile soodsam lepingutasu. Küsi täpsemat infot maaklerilt.
Finantsteenuseid pakub Swedbank AS. Tutvu tingimustega, pea nõu.
Tegemist on hästi planeeritud ja madalate kõrvalkuludega büroo- ja laohoone kompleksiga, kus kõik vajalik on juba olemas. Pind sobib ideaalselt ettevõttele, kelle tegevus eeldab esindusruumi, kontorit ja ladu ühes kohas.
Pinnal on sisseehitatud kööginurk, maast laeni aknad ning soovikorral on võimalik laoruumi jätta olemasolevad laoriiulid. Samuti on olemas kaugjuhitav laouks (3,0 x 3,0 m), kaasaegne valve- ja tuleohutussüsteem. Küte on lahendatud gaasikatlaga (büroodes põrandaküte, ladudes puhurid), ventilatsioon soojustagastusega ning lisaks aitavad kulusid vähendada katusel paiknevad päikesepaneelid.
Territooriumil on piisavalt ruumi suurtel veokitel manööverdamiseks ja kaupade laadimiseks, samuti on olemas avar parkla töötajatele ja külastajatele. Vajadusel on võimalik kaupu ladustada samas hoones asuvas Pakendikeskuse logistikakeskuses.
Pinna jaotus:
1. korrus: esindusruum 64,6 m², san. ruum 3,6 m², ladu 111,8 m².
2. korrus: büroo 72,3 m².
Kokku 252.30 m².
Hea ühendus Ülemiste keskuse, Tallinna ringtee ja kesklinnaga. Lähim bussipeatus Sõjamäe asub 250 m kaugusel (liinid 7, 15, 103).
Lepingu sõlmimisel tasutakse esimese kuu üür ja 1–3 kuu tagatisraha. Üürile lisandub käibemaks.
JAGA MINU KONTAKTI KÕIGILE, KES VAJAVAD KINNISVARANÕU!
- - - - - - - - - -
Telli hindamine UUS MAA Kinnisvarabüroolt https://uusmaa.ee/teenused/hindamine/
UUS MAA KINNISVARABÜROO EKSPERTHINNANGUID AKTSEPTEERIVAD KÕIK FINANTSASUTUSED.
- - - - - - - - - -
Liitu Uus Maa uudiskirjaga ja saa homset kinnisvarainfot juba täna!
https://www.uusmaa.ee/uudiskirjagaliitumine/
- - - - - - - - - -
Kodu aitab osta Swedbank.
Pakkumise saamiseks kasuta koodi UUSMAA ja Sind teenindatakse eelisjärjekorras.
Võtame ühendust 1 tööpäeva jooksul.
Uus Maa kliendile soodsam lepingutasu. Küsi täpsemat infot maaklerilt.
Finantsteenuseid pakub Swedbank AS. Tutvu tingimustega, pea nõu.





































