Üürile anda 2019. aasta valminud A-klassi büroo-, kaubandus- ja/või laopind suurusega 300 m². Pind asub Jüri alevikus aadressil Uus-Ringi tee 5.
Pind läbi kahe korruse jaguneb järgnevalt:
I korrusel 200, m², mis koosneb maast laeni kaubanduspinnast ja laopinnast. Esimese korruse lae kõrgus on 4,5 meetrit.
II korrusel 200 m², mis koosneb büroost, tootmisruumist, kööginurgast ja olmeruumidest. Teise korruse lae kõrgus on 3,2 meetrit.
Äripind on koos vajalike abiruumidega ning teisele korrusele viib kaubalift kandevõimega 750 kg, mis võimaldab ladustamist või tootmist ka teisel korrusel. Laadimine on maaga tasapinnas oleva tõstukse kaudu. Tõstukse mõõdud on 4,5 meetrit (laius) x 4,25 meetrit (kõrgus). Kaubanduspinnal on 2,3 meetri kõrgused klaasuksed ning kaubanduspinna ja laopinna vahel on tõsuks mõõtmetega 3x3 meetrit.
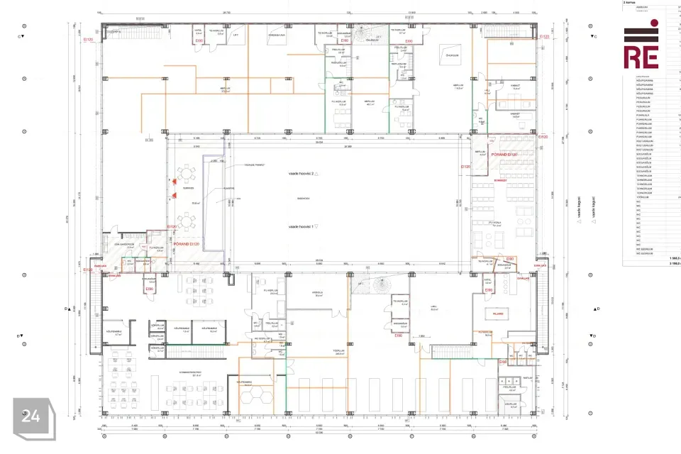
Ruumide joonised on leitavad pakkumise galeriist.
Hoone on rajatud energiatõhusana, mis tagab madalad kõrvalkulud. Hoones on gaasikatlaga põrandaküte, sundventilatsioon ja konditsioneerid.
Töötajatele ja klientidele on maja juures tasuta parkimine. Lisaks on tagatud ka mugav ligipääs suurematele veomasinatele.
Ruumidesse on ööpäevaringne ligipääs.
Hoone fassaadile saab paigaldada välireklaami.
Uus-Ringi tee 5 asub Tallinna südalinnast vaid 14 km ehk ca 20-minutilise autosõidu kaugusel. Hoone asub Tallinna ringtee lähedal Jüri alevikus. Suurepärase nähtavuse ja hea logistilise asukoha tagab paiknemine vahetult Tallinna ringtee ääres. Jüri alevikus on korrapärane bussiühendus Tallinna kesklinnaga. Alevikus on mitmeid kauplusi ja söögikohti.
Paljud Jüri inimesed kasutavad Uus-Ringi teed üha tihedamalt – see loob head võimalused ka kaubanduse ja teenindusega tegelemiseks. Naaberkinnistul asub Circle K tankla, selle kõrval omakorda Neste tankla.
Vaadake teisi Uus-Ringi tee 5 pakkumisi siit:
https://re.ee/kinnisvaraprojekt/aripinnad/stockoffice/uus-ringi-tee-5-2/
Üürihinnale lisanduvad kõrvalkulud ja käibemaks.
Ruumid on koheselt saadaval.
Pakkumine on Teile vahendustasuta.
Huvi korral annan meeleldi lisainfot ja korraldan objekti külastuse.
RE Kinnisvara AS on tegutsenud 1995. aastast, olles üks vanimaid Eesti kinnisvaraettevõtteid.
Pakume kinnisvaraga seotud täisteenust:
- äri- ja elamispindade maaklerteenus
- kinnisvara hindamine laenu tagatiseks, sh kohtutele, finantsaruandluseks jne.
- äri- ja elukondlike arendusprojektide müügikorraldus
- kinnisvaraturu ja -projektide analüüs ja konsultatsioon
- kinnisvara seadustamine
Teeme koostööd kõigi Eesti pankade ja finantsasutustega. Meie eksperthinnangud on aktsepteeritud kõigi Eestis tegutsevate krediidiasutuste poolt.
Tutvu lähemalt re.ee.
RE Kinnisvara AS – PARIM OSA KINNISVARAST
Helista 66 88 666 või saada e-mail ***@***.ee
https://facebook.com/re.kinnisvara
https://www.instagram.com/rekinnisvara/
https://ee.linkedin.com/company/re-kinnisvara
Pind läbi kahe korruse jaguneb järgnevalt:
I korrusel 200, m², mis koosneb maast laeni kaubanduspinnast ja laopinnast. Esimese korruse lae kõrgus on 4,5 meetrit.
II korrusel 200 m², mis koosneb büroost, tootmisruumist, kööginurgast ja olmeruumidest. Teise korruse lae kõrgus on 3,2 meetrit.
Äripind on koos vajalike abiruumidega ning teisele korrusele viib kaubalift kandevõimega 750 kg, mis võimaldab ladustamist või tootmist ka teisel korrusel. Laadimine on maaga tasapinnas oleva tõstukse kaudu. Tõstukse mõõdud on 4,5 meetrit (laius) x 4,25 meetrit (kõrgus). Kaubanduspinnal on 2,3 meetri kõrgused klaasuksed ning kaubanduspinna ja laopinna vahel on tõsuks mõõtmetega 3x3 meetrit.
Ruumide joonised on leitavad pakkumise galeriist.
Hoone on rajatud energiatõhusana, mis tagab madalad kõrvalkulud. Hoones on gaasikatlaga põrandaküte, sundventilatsioon ja konditsioneerid.
Töötajatele ja klientidele on maja juures tasuta parkimine. Lisaks on tagatud ka mugav ligipääs suurematele veomasinatele.
Ruumidesse on ööpäevaringne ligipääs.
Hoone fassaadile saab paigaldada välireklaami.
Uus-Ringi tee 5 asub Tallinna südalinnast vaid 14 km ehk ca 20-minutilise autosõidu kaugusel. Hoone asub Tallinna ringtee lähedal Jüri alevikus. Suurepärase nähtavuse ja hea logistilise asukoha tagab paiknemine vahetult Tallinna ringtee ääres. Jüri alevikus on korrapärane bussiühendus Tallinna kesklinnaga. Alevikus on mitmeid kauplusi ja söögikohti.
Paljud Jüri inimesed kasutavad Uus-Ringi teed üha tihedamalt – see loob head võimalused ka kaubanduse ja teenindusega tegelemiseks. Naaberkinnistul asub Circle K tankla, selle kõrval omakorda Neste tankla.
Vaadake teisi Uus-Ringi tee 5 pakkumisi siit:
https://re.ee/kinnisvaraprojekt/aripinnad/stockoffice/uus-ringi-tee-5-2/
Üürihinnale lisanduvad kõrvalkulud ja käibemaks.
Ruumid on koheselt saadaval.
Pakkumine on Teile vahendustasuta.
Huvi korral annan meeleldi lisainfot ja korraldan objekti külastuse.
RE Kinnisvara AS on tegutsenud 1995. aastast, olles üks vanimaid Eesti kinnisvaraettevõtteid.
Pakume kinnisvaraga seotud täisteenust:
- äri- ja elamispindade maaklerteenus
- kinnisvara hindamine laenu tagatiseks, sh kohtutele, finantsaruandluseks jne.
- äri- ja elukondlike arendusprojektide müügikorraldus
- kinnisvaraturu ja -projektide analüüs ja konsultatsioon
- kinnisvara seadustamine
Teeme koostööd kõigi Eesti pankade ja finantsasutustega. Meie eksperthinnangud on aktsepteeritud kõigi Eestis tegutsevate krediidiasutuste poolt.
Tutvu lähemalt re.ee.
RE Kinnisvara AS – PARIM OSA KINNISVARAST
Helista 66 88 666 või saada e-mail ***@***.ee
https://facebook.com/re.kinnisvara
https://www.instagram.com/rekinnisvara/
https://ee.linkedin.com/company/re-kinnisvara
















