ÜÜRIDA STOCK-OFFICE PEETRIS, LÄIKE TEEL!
ÄRIPIND
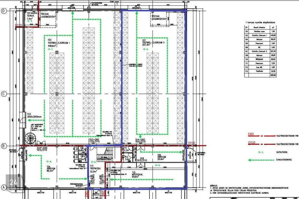
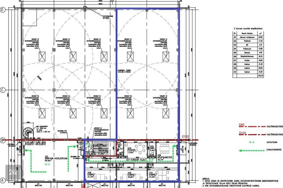
Äripinna üldpind 571,0 m².
Esimese korruse lao- ja tootmispind 297,4 m².
Esimesel korrusel kontor - müügisaali 120,1 m² ning teise korruse kontor/olmeruume kokku mahuga 104,1 m².
Üüritavele stockoffice äripinnale jääb ka esimese ja teise korruse vahel isiklikuks kasutuseks olev trepiala.
Korruste plaan joonistena leitav pildigaleriist (äripind märgitud sinisega).
MUU INFO:
- Väga hea asukoht Tallinna külje all Peetris (8 km kaugusel Tallinna kesklinnast).
- Tartu maantee lähedus.
- Madalad kõrvalkulud.
- Küttesüsteem- õhksoojuspumbad.
- Lao/tootmispinna kõrgus tala alla 7,5 meetrit.
- Ventilatsioon
- Konditsioneer ja kliima büroopindades
- Tõstanduks maatasapinnalt : 4,5 meetrit kõrgus * 4,0 meetrit laius.
- Hoone põrand maatasapinnas; Laos lihvitud betoonpõrand.
- Valgusreklaami paigaldamise võimalus hoone fassaadil.
- Kööginurk
- Nõupidamisruum
- Lagedes LED tulestik
- Tasuta kindlaksmääratud 10 parkimiskohta.
- Elektriautode laadimiseks mõeldud kohad hoone kõrval - 2 kohta (võimsust 22 kw).
Üürihind 7 €/m² kohta + madalad kõrvalkulud.
Hinnale lisandub käibemaks.
Helista ja küsi lisa!
Olete oodatud kohapeale äripinnaga tutvuma!
Pangad pakuvad Domus Kinnisvara klientidele eluasemelaenu lepingutasu soodustusi. Küsi lisainfot Domus Kinnisvara maaklerilt või hindajalt.
Müü ja hinda meiega! Teeme kinnisvara müügi Sinu jaoks sujuvaks ja pingevabaks.
ÄRIPIND
Äripinna üldpind 571,0 m².
Esimese korruse lao- ja tootmispind 297,4 m².
Esimesel korrusel kontor - müügisaali 120,1 m² ning teise korruse kontor/olmeruume kokku mahuga 104,1 m².
Üüritavele stockoffice äripinnale jääb ka esimese ja teise korruse vahel isiklikuks kasutuseks olev trepiala.
Korruste plaan joonistena leitav pildigaleriist (äripind märgitud sinisega).
MUU INFO:
- Väga hea asukoht Tallinna külje all Peetris (8 km kaugusel Tallinna kesklinnast).
- Tartu maantee lähedus.
- Madalad kõrvalkulud.
- Küttesüsteem- õhksoojuspumbad.
- Lao/tootmispinna kõrgus tala alla 7,5 meetrit.
- Ventilatsioon
- Konditsioneer ja kliima büroopindades
- Tõstanduks maatasapinnalt : 4,5 meetrit kõrgus * 4,0 meetrit laius.
- Hoone põrand maatasapinnas; Laos lihvitud betoonpõrand.
- Valgusreklaami paigaldamise võimalus hoone fassaadil.
- Kööginurk
- Nõupidamisruum
- Lagedes LED tulestik
- Tasuta kindlaksmääratud 10 parkimiskohta.
- Elektriautode laadimiseks mõeldud kohad hoone kõrval - 2 kohta (võimsust 22 kw).
Üürihind 7 €/m² kohta + madalad kõrvalkulud.
Hinnale lisandub käibemaks.
Helista ja küsi lisa!
Olete oodatud kohapeale äripinnaga tutvuma!
Pangad pakuvad Domus Kinnisvara klientidele eluasemelaenu lepingutasu soodustusi. Küsi lisainfot Domus Kinnisvara maaklerilt või hindajalt.
Müü ja hinda meiega! Teeme kinnisvara müügi Sinu jaoks sujuvaks ja pingevabaks.

















