Üldinfo: 2026. aasta kevad/suvi valmib Peetri alevikus, Vana-Tartu mnt 79 uus A-energiaklassi stockoffice-tüüpi multifunktsionaalne ärihoone!
Äripind nr 12, liftiga trepikoda:
– 30,6 m2, millest wc 3,1 m2
– Üürihind: 367,2 € kuus, millele lisanduvad fikseeritud kõrvalkulud 2,2 €/m2 + tarbitud vesi ja elekter. Hindadele lisandub käibemaks!
Üürnikke ootab peatselt ehitusega algust saav kolmekorruseline multifuntsionaalne stockoffice-tüüpi büroohoone koos ladude ja tootmise võimalusega. Kavandatud hoone arhitektuurne lahendus on lihte, soliidne, praktiline ning keskkonda sobituv. Hoone on varustatud liftiga, tagades mugava ligipääsu kõigile korrustele. Ladude kõrgus on ligikaudu 4,6 meetrit
Teisel korrusel paikneb nelja väljakuga sulgpallihall, millel on juba üürnik olemas.
PAKUME:
– Erineva suurusega ladu ja büroopindade kombinatsioone ning eraldiseisvad bürooruumid, ruumide planeeringut on võimalik varajasel broneerimisel muuta ning pindasid saab omavahel liita.
– Ladu-tootmise ja büroopindade kombinatsioonidel on esimesel korrusel eraldi sissepääsud
– Igal äripinnal on soojustagastusega ventilatsioon ning autonoomne jahutusseade.
– Hoones on gaasikatel ja radiaatorküte.
LISAKS:
– Telia valguskaabel
– Elektriautolaadijad (2 tk)
– Igal äripinnal on eraldi vee- ja elektriarvestid
– Vee ja kanalisatsooniühenduse ning trapiga laoruumd
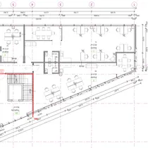
Planeering: – Hoonesse on sissepääsud Vana-Tartu mnt 77 poolt.
– Esimesel korrusel paiknevad lao-tootmisruumid koos äripindadega ning üks ca 95 m2 äripind ilma laota (võimalik liita laoga)
– Teisel korrusel asuvad sulgpallihall ja äripinnad.
– Kolmandal korrusel on äripinnad.
– Hoone ees ja külgedel palju parkimiskohti nii üürnikele kui klientidele.
Planeeringuid saab hetkel veel vastavalt vajadusele muuta. Planeeritud on, et igasse äripinda tuleb WC ja vajadusel ka duši- ning kööginurk.
ESIALGSED ÄRIPINDADE LAHENDUSED:
I korrus:
– Äripind 1 – 98 m2
– Äripind 2 – 23,3 m2 + ladu-tootmine 46,4 m2
– Äripind 3 – 23,6 m2 + ladu-tootmine 56,8 m2
– Äripind 4 – 44,0 m2 + ladu-tootmine 57 m2
– Äripind 5 – 27,5 m2 + ladu-tootmine 122,2 m2
– Äripind 6 – 43,7 m2 + ladu-tootmine 109,2 m2
– Äripind 7 – 37,5 m2 + ladu-tootmine 109,7 m2 ÜÜRITUD!
– Äripind 8 – 60,7 m2 + ladu-tootmine 111,0 m2 ÜÜRITUD!
– Äripind 9 – 74,7 m2 + ladu-tootmine 89,9 m2 ÜÜRITUD!
II korrus:
– Äripind 10 – 68,6 m2
– Äripind 11 – 86,2 m2
– Äripind 12 – 30,6 m2
– Äripind 13 – 36,5 m2
– Äripind 14 – 32,5 m2
– Äripind 15 – 61,5 m2
– Äripind 16 – 58,6 m2
– Äripind 17 – 61,9 m2
III korrus:
– Äripind 19 – 68,6 m2
– Äripind 20 – 86,2 m2
– Äripind 21 – 33,6 m2
– Äripind 22 – 39,5 m2
– Äripind 23 – 32,5 m2
– Äripind 24 – 60,2 m2
– Äripind 25 – 65 m2
– Äripind 26 – 78,8 m2
– Äripind 27 – 103,7 m2
Kommunaalkulud: Hoones on gaasiküte, soojustagastusega ventilatsioonisüsteem ning lokaalne jahutus konditsioneeri näol.
•Kõrvalkulud on ca 2 – 2,5 €/m2 + km, lisaks vesi ja elekter vastavalt tarbimisele.
•Hoones saab olema videovalve ja fonolukusüsteem.
Tallinna kesklinnast vaid umbes 15 minutilise autosõidu kaugusel paiknev Peetri alevik on kiiresti arenev piirkond, mis on atraktiivne kaubandus-, tööstus- ja logistikasektori ettevõtetele. Viimastel aastatel on sinna rajatud mitmeid kaasaegseid stock-office tüüpi ärihooneid, büroohooneid, kaubanduspindu ja ka elamukvartaleid.
Kinnistu asub strateegiliselt heas Rae valla asukohas aadressil Vana-Tartu mnt 79. Juurdepääs on tagatud Vana-Tartu maantee mahasõidult, mis võimaldab sujuva ühenduse peamiste liiklussõlmedega.
Kui otsite oma ettevõttele uusi üüripindu, võtke meiega ühendust – arutame teie vajadused läbi ja leiame parima lahenduse!
Äripind nr 12, liftiga trepikoda:
– 30,6 m2, millest wc 3,1 m2
– Üürihind: 367,2 € kuus, millele lisanduvad fikseeritud kõrvalkulud 2,2 €/m2 + tarbitud vesi ja elekter. Hindadele lisandub käibemaks!
Üürnikke ootab peatselt ehitusega algust saav kolmekorruseline multifuntsionaalne stockoffice-tüüpi büroohoone koos ladude ja tootmise võimalusega. Kavandatud hoone arhitektuurne lahendus on lihte, soliidne, praktiline ning keskkonda sobituv. Hoone on varustatud liftiga, tagades mugava ligipääsu kõigile korrustele. Ladude kõrgus on ligikaudu 4,6 meetrit
Teisel korrusel paikneb nelja väljakuga sulgpallihall, millel on juba üürnik olemas.
PAKUME:
– Erineva suurusega ladu ja büroopindade kombinatsioone ning eraldiseisvad bürooruumid, ruumide planeeringut on võimalik varajasel broneerimisel muuta ning pindasid saab omavahel liita.
– Ladu-tootmise ja büroopindade kombinatsioonidel on esimesel korrusel eraldi sissepääsud
– Igal äripinnal on soojustagastusega ventilatsioon ning autonoomne jahutusseade.
– Hoones on gaasikatel ja radiaatorküte.
LISAKS:
– Telia valguskaabel
– Elektriautolaadijad (2 tk)
– Igal äripinnal on eraldi vee- ja elektriarvestid
– Vee ja kanalisatsooniühenduse ning trapiga laoruumd
Planeering: – Hoonesse on sissepääsud Vana-Tartu mnt 77 poolt.
– Esimesel korrusel paiknevad lao-tootmisruumid koos äripindadega ning üks ca 95 m2 äripind ilma laota (võimalik liita laoga)
– Teisel korrusel asuvad sulgpallihall ja äripinnad.
– Kolmandal korrusel on äripinnad.
– Hoone ees ja külgedel palju parkimiskohti nii üürnikele kui klientidele.
Planeeringuid saab hetkel veel vastavalt vajadusele muuta. Planeeritud on, et igasse äripinda tuleb WC ja vajadusel ka duši- ning kööginurk.
ESIALGSED ÄRIPINDADE LAHENDUSED:
I korrus:
– Äripind 1 – 98 m2
– Äripind 2 – 23,3 m2 + ladu-tootmine 46,4 m2
– Äripind 3 – 23,6 m2 + ladu-tootmine 56,8 m2
– Äripind 4 – 44,0 m2 + ladu-tootmine 57 m2
– Äripind 5 – 27,5 m2 + ladu-tootmine 122,2 m2
– Äripind 6 – 43,7 m2 + ladu-tootmine 109,2 m2
– Äripind 7 – 37,5 m2 + ladu-tootmine 109,7 m2 ÜÜRITUD!
– Äripind 8 – 60,7 m2 + ladu-tootmine 111,0 m2 ÜÜRITUD!
– Äripind 9 – 74,7 m2 + ladu-tootmine 89,9 m2 ÜÜRITUD!
II korrus:
– Äripind 10 – 68,6 m2
– Äripind 11 – 86,2 m2
– Äripind 12 – 30,6 m2
– Äripind 13 – 36,5 m2
– Äripind 14 – 32,5 m2
– Äripind 15 – 61,5 m2
– Äripind 16 – 58,6 m2
– Äripind 17 – 61,9 m2
III korrus:
– Äripind 19 – 68,6 m2
– Äripind 20 – 86,2 m2
– Äripind 21 – 33,6 m2
– Äripind 22 – 39,5 m2
– Äripind 23 – 32,5 m2
– Äripind 24 – 60,2 m2
– Äripind 25 – 65 m2
– Äripind 26 – 78,8 m2
– Äripind 27 – 103,7 m2
Kommunaalkulud: Hoones on gaasiküte, soojustagastusega ventilatsioonisüsteem ning lokaalne jahutus konditsioneeri näol.
•Kõrvalkulud on ca 2 – 2,5 €/m2 + km, lisaks vesi ja elekter vastavalt tarbimisele.
•Hoones saab olema videovalve ja fonolukusüsteem.
Tallinna kesklinnast vaid umbes 15 minutilise autosõidu kaugusel paiknev Peetri alevik on kiiresti arenev piirkond, mis on atraktiivne kaubandus-, tööstus- ja logistikasektori ettevõtetele. Viimastel aastatel on sinna rajatud mitmeid kaasaegseid stock-office tüüpi ärihooneid, büroohooneid, kaubanduspindu ja ka elamukvartaleid.
Kinnistu asub strateegiliselt heas Rae valla asukohas aadressil Vana-Tartu mnt 79. Juurdepääs on tagatud Vana-Tartu maantee mahasõidult, mis võimaldab sujuva ühenduse peamiste liiklussõlmedega.
Kui otsite oma ettevõttele uusi üüripindu, võtke meiega ühendust – arutame teie vajadused läbi ja leiame parima lahenduse!
CKE Kinnisvara OÜ on aktiivselt tegutsenud alates 2009 aastast ning on Eesti üks suurimaid kinnisvara vahendusega tegelevaid ettevõtteid. CKE Kinnisvara OÜ kontorid asuvad Tallinnas, Tartus, Pärnus ja Kuressaares ning maaklerid tegutsevad aktiivselt üle Eesti.
Pakume:- - tasuta konsultatsioon ja hinnang teie kinnisvarale
- - professionaalsed fotod
- - aerofotod ja -videod drooniga
- - korrektsed lepingud
- - õigusabi
- - kolimisteenus










