Üürile anda büroopind 2023. aasta mais valminud stockoffice-tüüpi ärihoones, kus on ühendatud kontor ja ladu/tootmine.
Äripind asub Peetri alevikus Tartu maantee vahetus läheduses, aadressil Reti tee 8.
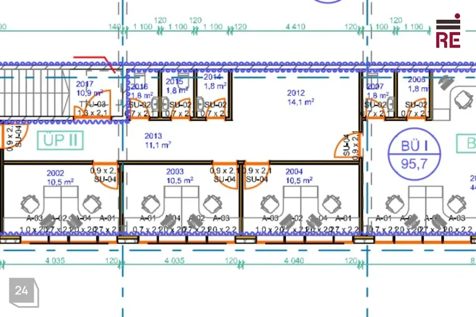
Teise korruse büroo, tähisega BÜ I, suurus 126,3 m², on jagatud viieks erineva suurusega kabinetiks. Äripinnal on olemas wc, puhkenurk ning kööginurga valmidus. Galeriis on näha sama hoone analoogilise büroopinna pildid.
Lisaks on võimalus büroopinna juurde üürida ladustamiseks väliplatsi.
Üürihinnale lisanduvad käibemaks ja soodsad kõrvalkulud, mille tagab gaasikütte ja õhk-õhk soojuspumba abil lahendatud küttesüsteem.
Hoone fassaadile saab paigaldada välireklaami. Hoone kõrvale on võimalik üürida parkimiseks ja ladustamiseks väliplatsi, mis asub vahetult Reti tee 8 hoone kõrval ning Tallinn-Tartu maantee ääres.
Kinnistu suurus on 14 000 m2 ning võimalik on üürida kõvakattega ning soovi korral aiaga piiratud väliplatsi.
Pakkumine on Teile vahendustasuta.
Huvi korral annan meeleldi lisainformatsiooni.
Küsige personaalset pakkumist!
Tutvu teiste Reti tee 8 hoone pakkumistega siin:
https://re.ee/projektid/aripinnad/stockoffice/reti-tee-8/
RE Kinnisvara AS on tegutsenud 1995. aastast, olles üks vanimaid Eesti kinnisvaraettevõtteid.
Pakume kinnisvaraga seotud täisteenust:
- äri- ja elamispindade maaklerteenus
- kinnisvara hindamine laenu tagatiseks, sh kohtutele, finantsaruandluseks jne.
- äri- ja elukondlike arendusprojektide müügikorraldus
- kinnisvaraturu ja -projektide analüüs ja konsultatsioon
- kinnisvara seadustamine
Teeme koostööd kõigi Eesti pankade ja finantsasutustega. Meie eksperthinnangud on aktsepteeritud kõigi Eestis tegutsevate krediidiasutuste poolt.
Tutvu lähemalt re.ee.
RE Kinnisvara AS – PARIM OSA KINNISVARAST
Helista 66 88 666 või saada e-mail ***@***.ee
https://facebook.com/re.kinnisvara
https://www.instagram.com/rekinnisvara/
https://ee.linkedin.com/company/re-kinnisvara
Äripind asub Peetri alevikus Tartu maantee vahetus läheduses, aadressil Reti tee 8.
Teise korruse büroo, tähisega BÜ I, suurus 126,3 m², on jagatud viieks erineva suurusega kabinetiks. Äripinnal on olemas wc, puhkenurk ning kööginurga valmidus. Galeriis on näha sama hoone analoogilise büroopinna pildid.
Lisaks on võimalus büroopinna juurde üürida ladustamiseks väliplatsi.
Üürihinnale lisanduvad käibemaks ja soodsad kõrvalkulud, mille tagab gaasikütte ja õhk-õhk soojuspumba abil lahendatud küttesüsteem.
Hoone fassaadile saab paigaldada välireklaami. Hoone kõrvale on võimalik üürida parkimiseks ja ladustamiseks väliplatsi, mis asub vahetult Reti tee 8 hoone kõrval ning Tallinn-Tartu maantee ääres.
Kinnistu suurus on 14 000 m2 ning võimalik on üürida kõvakattega ning soovi korral aiaga piiratud väliplatsi.
Pakkumine on Teile vahendustasuta.
Huvi korral annan meeleldi lisainformatsiooni.
Küsige personaalset pakkumist!
Tutvu teiste Reti tee 8 hoone pakkumistega siin:
https://re.ee/projektid/aripinnad/stockoffice/reti-tee-8/
RE Kinnisvara AS on tegutsenud 1995. aastast, olles üks vanimaid Eesti kinnisvaraettevõtteid.
Pakume kinnisvaraga seotud täisteenust:
- äri- ja elamispindade maaklerteenus
- kinnisvara hindamine laenu tagatiseks, sh kohtutele, finantsaruandluseks jne.
- äri- ja elukondlike arendusprojektide müügikorraldus
- kinnisvaraturu ja -projektide analüüs ja konsultatsioon
- kinnisvara seadustamine
Teeme koostööd kõigi Eesti pankade ja finantsasutustega. Meie eksperthinnangud on aktsepteeritud kõigi Eestis tegutsevate krediidiasutuste poolt.
Tutvu lähemalt re.ee.
RE Kinnisvara AS – PARIM OSA KINNISVARAST
Helista 66 88 666 või saada e-mail ***@***.ee
https://facebook.com/re.kinnisvara
https://www.instagram.com/rekinnisvara/
https://ee.linkedin.com/company/re-kinnisvara














