Ringi Äripargi II etapis rajatava Ringi 11 stock-office hoone ehitus on jõudnud poole peale. Pakkumisel on ca 6800 m2 üüripinda, mis on liigendatud erineva suurusega büroo-/teenindus-, lao- ja tootmispinnaks. Veel on võimalik kohandada ruumide planeeringut vastavalt tulevase üürniku vajadustele.
ASUKOHT
Strateegiline asukoht Harjumaa ühe suurima liiklussõlme - Jüri ringi - ääres, Jüri aleviku servas asuvas äripargis. Võimalus olla nähtav enam kui 40 000 sõidukist, mis läbivad ööpäevas liiklussõlme.
Oma unikaalse asukoha ja A-klassi nähtavuse poolest sobib hoone nii kaubandus-, teenindus- ja logistikaettevõtetele, kui ka väiketootmisele. Sealt on võrdselt hea ühendus kõikide Tallinna linnaosade, Eesti põhimaanteede, suurimate sadamate ja lennujaamaga.
Paiknemine väljakujunenud aleviku servas pakub olulisi eeliseid ja mugavusi nii tulevastele töötajatele kui klientidele. Poed, toitlustus jm teenused paiknevad vahetus läheduses ning toimib hea ühistranspordi ühendus Tallinnaga. Ümbruskonna suur elanikkond avab uusi võimalusi nii tööjõu kui kohalike teenuste pakkumise osas.
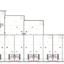
HOONE TEHNILINE KIRJELDUS
- kahel korrusel paiknev kontor, suured vitriinaknad, valguslogo paigutamise võimalus fassaadile
- Lao-/teeninduspinna kõrgus fermi alla 6 m, siledad betoonpõrandad
- 4,2 m kõrgused tõstanduksed ruumi esi- ja tagaküljel
- laadimine maaga tasapinnas
- Küte: soodne ja keskkonnasõbralik Jüri aleviku kaugküte
- Hoone energiamärgis - A
Maja valmib juba sügisel ja üüripindade üleandmine on kavandatud 2024.a. detsembrisse.
Küsi lisa: 566 88 665
ASUKOHT
Strateegiline asukoht Harjumaa ühe suurima liiklussõlme - Jüri ringi - ääres, Jüri aleviku servas asuvas äripargis. Võimalus olla nähtav enam kui 40 000 sõidukist, mis läbivad ööpäevas liiklussõlme.
Oma unikaalse asukoha ja A-klassi nähtavuse poolest sobib hoone nii kaubandus-, teenindus- ja logistikaettevõtetele, kui ka väiketootmisele. Sealt on võrdselt hea ühendus kõikide Tallinna linnaosade, Eesti põhimaanteede, suurimate sadamate ja lennujaamaga.
Paiknemine väljakujunenud aleviku servas pakub olulisi eeliseid ja mugavusi nii tulevastele töötajatele kui klientidele. Poed, toitlustus jm teenused paiknevad vahetus läheduses ning toimib hea ühistranspordi ühendus Tallinnaga. Ümbruskonna suur elanikkond avab uusi võimalusi nii tööjõu kui kohalike teenuste pakkumise osas.
HOONE TEHNILINE KIRJELDUS
- kahel korrusel paiknev kontor, suured vitriinaknad, valguslogo paigutamise võimalus fassaadile
- Lao-/teeninduspinna kõrgus fermi alla 6 m, siledad betoonpõrandad
- 4,2 m kõrgused tõstanduksed ruumi esi- ja tagaküljel
- laadimine maaga tasapinnas
- Küte: soodne ja keskkonnasõbralik Jüri aleviku kaugküte
- Hoone energiamärgis - A
Maja valmib juba sügisel ja üüripindade üleandmine on kavandatud 2024.a. detsembrisse.
Küsi lisa: 566 88 665













