Reti laod on 2022. aasta 1. juuniks valmiv moodne energiatõhus hoone, mis ühendab endas mitmefunktsionaalseid laopindasid ja väikeseid büroosid.
Hoone sobib ideaalselt logistikaettevõtetele kui ka teistele valdkondadele, sh ladustamine, väike-tootmine, väike-tööstus ja teenindus, kuna hoone on planeeritud Tallinn-Tartu mnt äärde.
Hoones olevatel pindadel on sundventilatsioon, mille seadmed asuvad igal pinnal eraldiseisvana. Hoone peakaitse on 3 x 160 A.
Hoones olevate põrandate kandevõime on 5 tonni, kõrgus on 6,1 meetrit.
Pinna suurus on 294,2 m/2 ning pinna laius on 12 meetrit ja pikkus 22,2 meetrit. Pinnal on tõstukuks suurusega 4,0 x 4,50 m.
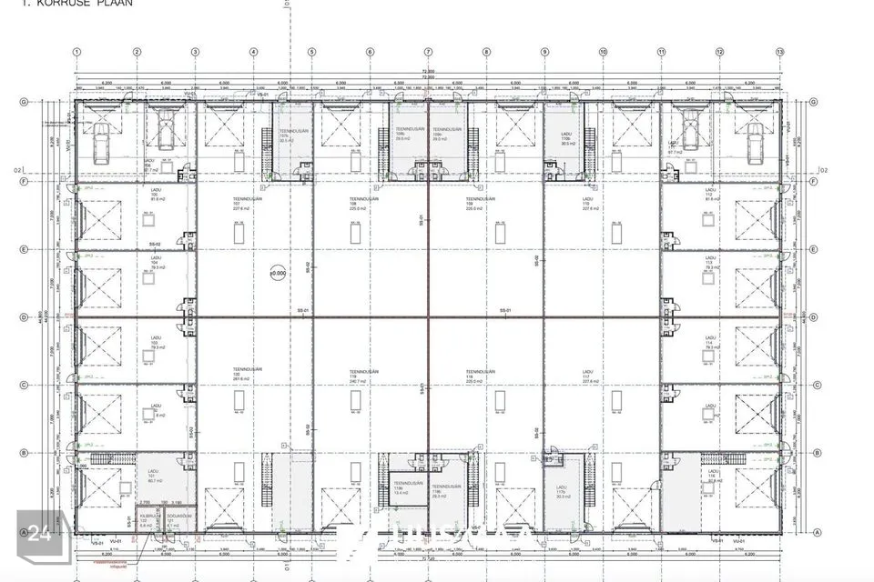
Pinna nr on korruse plaanilt vaadates 7.
Üürihinnale lisanduvad kommunaalmaksed ja käibemaks.
Pakkumine on Teile vahendustasuta!
Huvi ja lisaküsimuste korral võtke ühendust:
Fred Linnukütt
+372 **** 2228
***@***.ee
ja
Sandra Metsa
+372 **** 7530
***@***.ee
Jaga minu kontakti kõigile, kes vajavad kinnisvaranõu!
Liitu meie uudiskirjaga ja saa homset kinnisvarainfot juba täna! Vaata https://arikinnisvara.uusmaa.ee
UUS MAA ÄRIKINNISVARA - aastakümned kogemust ja klientide usaldust, läbimõeldud täisteenus ja suurim arv eksperte: vahendamine, hindamine, haldamine, nõustamine ja investeerimine.
Hoone sobib ideaalselt logistikaettevõtetele kui ka teistele valdkondadele, sh ladustamine, väike-tootmine, väike-tööstus ja teenindus, kuna hoone on planeeritud Tallinn-Tartu mnt äärde.
Hoones olevatel pindadel on sundventilatsioon, mille seadmed asuvad igal pinnal eraldiseisvana. Hoone peakaitse on 3 x 160 A.
Hoones olevate põrandate kandevõime on 5 tonni, kõrgus on 6,1 meetrit.
Pinna suurus on 294,2 m/2 ning pinna laius on 12 meetrit ja pikkus 22,2 meetrit. Pinnal on tõstukuks suurusega 4,0 x 4,50 m.
Pinna nr on korruse plaanilt vaadates 7.
Üürihinnale lisanduvad kommunaalmaksed ja käibemaks.
Pakkumine on Teile vahendustasuta!
Huvi ja lisaküsimuste korral võtke ühendust:
Fred Linnukütt
+372 **** 2228
***@***.ee
ja
Sandra Metsa
+372 **** 7530
***@***.ee
Jaga minu kontakti kõigile, kes vajavad kinnisvaranõu!
Liitu meie uudiskirjaga ja saa homset kinnisvarainfot juba täna! Vaata https://arikinnisvara.uusmaa.ee
UUS MAA ÄRIKINNISVARA - aastakümned kogemust ja klientide usaldust, läbimõeldud täisteenus ja suurim arv eksperte: vahendamine, hindamine, haldamine, nõustamine ja investeerimine.
















