Põlva kesklinna piirkonnas, Põlva haigla kõrval on pakkuda üürile ruumid, mis asuvad ambulatoorse arstiabi osutamise loaga hoones. Tänu sellele on ruumid eriti sobilikud kõigile tervishoiuteenuseid osutavatele või selle valdkonnaga seotud ettevõtetele.
Hoone asub Põlva kesklinna piirkonnas aktiivse liiklusega tänava ääres. Parkimine on tasuta ja juurdepääs on võimalik ka ratastooliga liikujatele.
Hoone on koridoriga ühendatud kõrval asuva Põlva haiglaga.
Hoones asuvad juba praegu apteek, invaabivahendite pakkuja, hambakliinik, psühholoogi teenus jne.
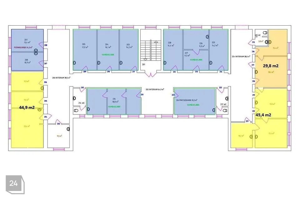
Antud ruumid on suurusega 29,8 m² ja koosnevad kahest toast, mis asuvad hoone teisel korrusel. Ruumid on joonisel number 216 ja 217(218). Mõlemas toas on vee- ja kanalisatsiooniühendus ning sundventilatsioon. Ruumide seisukord on hea, aga kokkuleppel on üürileandja valmis teostama ruumides remondi vastavalt üürniku soovidele. Samuti on võimalik üürniku enda poolne remondi tegemine, kui see kooskõlastatakse eelnevalt üürileandjaga.
Lisaks on sama maja 1. korrusel saadaval veel 2 üüripinda:
1. 2-toaline suurusega 33,6 m², on varustatud vee, kanalisatsiooni ja ventilatsiooniga
2. kahetoaline suurusega 39,6 m², millel on eraldi sissepääs, oma wc ja duširuum ja ventilatsioonisüsteem.
Küsige julgelt lisainformatsiooni.
Lisaks üüri hinnale on vaja tasuda ka lisakulud, mis on heal tasemel. Lisainfot kulude kohta saan jagada täpsema huvi korral.
Hindadele lisandub käibemaks.
JAGA MINU KONTAKTI KÕIGILE, KES VAJAVAD KINNISVARANÕU!
- - - - - - - - - -
Telli hindamine UUS MAA Kinnisvarabüroolt https://uusmaa.ee/teenused/hindamine/
UUS MAA KINNISVARABÜROO EKSPERTHINNANGUID AKTSEPTEERIVAD KÕIK FINANTSASUTUSED.
- - - - - - - - - -
Liitu Uus Maa uudiskirjaga ja saa homset kinnisvarainfot juba täna!
https://www.uusmaa.ee/uudiskirjagaliitumine/
- - - - - - - - - -
Kodu aitab osta Swedbank.
Pakkumise saamiseks kasuta koodi UUSMAA ja Sind teenindatakse eelisjärjekorras.
Võtame ühendust 1 tööpäeva jooksul.
Uus Maa kliendile soodsam lepingutasu. Küsi täpsemat infot maaklerilt.
Finantsteenuseid pakub Swedbank AS. Tutvu tingimustega, pea nõu.
Hoone asub Põlva kesklinna piirkonnas aktiivse liiklusega tänava ääres. Parkimine on tasuta ja juurdepääs on võimalik ka ratastooliga liikujatele.
Hoone on koridoriga ühendatud kõrval asuva Põlva haiglaga.
Hoones asuvad juba praegu apteek, invaabivahendite pakkuja, hambakliinik, psühholoogi teenus jne.
Antud ruumid on suurusega 29,8 m² ja koosnevad kahest toast, mis asuvad hoone teisel korrusel. Ruumid on joonisel number 216 ja 217(218). Mõlemas toas on vee- ja kanalisatsiooniühendus ning sundventilatsioon. Ruumide seisukord on hea, aga kokkuleppel on üürileandja valmis teostama ruumides remondi vastavalt üürniku soovidele. Samuti on võimalik üürniku enda poolne remondi tegemine, kui see kooskõlastatakse eelnevalt üürileandjaga.
Lisaks on sama maja 1. korrusel saadaval veel 2 üüripinda:
1. 2-toaline suurusega 33,6 m², on varustatud vee, kanalisatsiooni ja ventilatsiooniga
2. kahetoaline suurusega 39,6 m², millel on eraldi sissepääs, oma wc ja duširuum ja ventilatsioonisüsteem.
Küsige julgelt lisainformatsiooni.
Lisaks üüri hinnale on vaja tasuda ka lisakulud, mis on heal tasemel. Lisainfot kulude kohta saan jagada täpsema huvi korral.
Hindadele lisandub käibemaks.
JAGA MINU KONTAKTI KÕIGILE, KES VAJAVAD KINNISVARANÕU!
- - - - - - - - - -
Telli hindamine UUS MAA Kinnisvarabüroolt https://uusmaa.ee/teenused/hindamine/
UUS MAA KINNISVARABÜROO EKSPERTHINNANGUID AKTSEPTEERIVAD KÕIK FINANTSASUTUSED.
- - - - - - - - - -
Liitu Uus Maa uudiskirjaga ja saa homset kinnisvarainfot juba täna!
https://www.uusmaa.ee/uudiskirjagaliitumine/
- - - - - - - - - -
Kodu aitab osta Swedbank.
Pakkumise saamiseks kasuta koodi UUSMAA ja Sind teenindatakse eelisjärjekorras.
Võtame ühendust 1 tööpäeva jooksul.
Uus Maa kliendile soodsam lepingutasu. Küsi täpsemat infot maaklerilt.
Finantsteenuseid pakub Swedbank AS. Tutvu tingimustega, pea nõu.



























