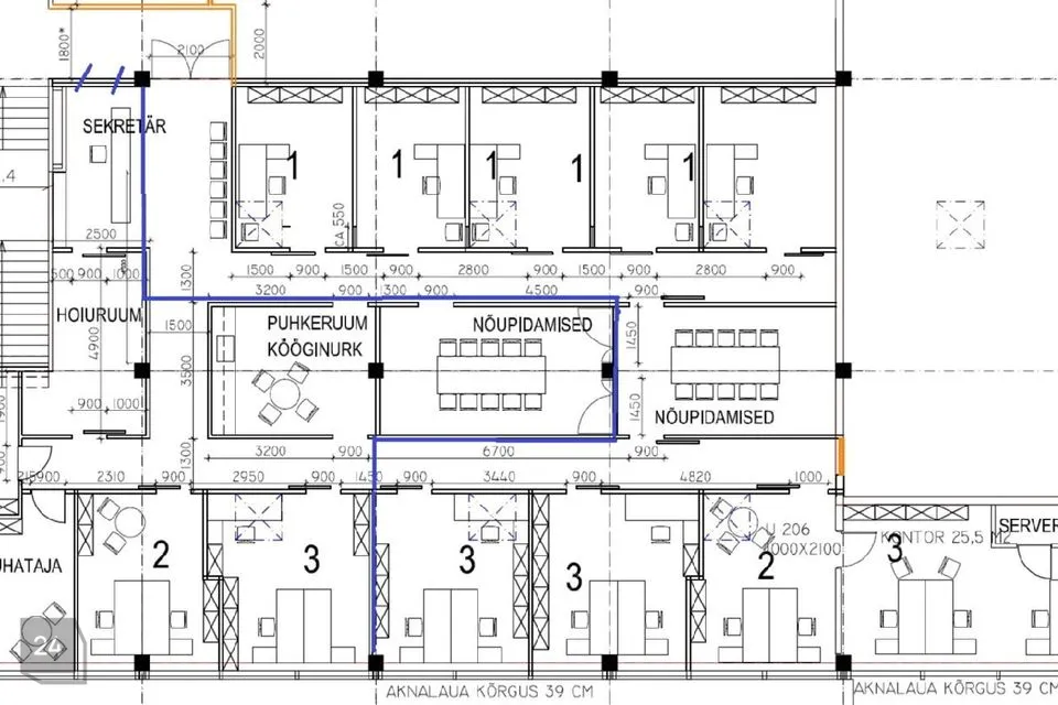
Sillakeskuse peamajas Büroohoones 1 üürile anda teisel korrusel asuvad kontoriruumid. Olemasolevad ruumid sobivad kuni 30-le töötajale. Olemas nii kööginurk kui ka nõupidamiste ruumid. Olemasolevat planeeringut saab soovi korral muuta. Võimalik rentida ka pinda osaliselt. Tule vaata üle ja leiame sobiva lahenduse.
Sillakeskuses on ligi 300 tasuta parkimiskohta.
Sillakeskus asub logistiliselt väga heas asukohas, tulevase Rail Balticu reisiterminali kõrval, transporditeede ristumiskohas.
Kui leidsid, et pakkumine võiks sulle sobida, siis küsi ka sõbrahinnaga pakkumist !
Sillakeskuses on ligi 300 tasuta parkimiskohta.
Sillakeskus asub logistiliselt väga heas asukohas, tulevase Rail Balticu reisiterminali kõrval, transporditeede ristumiskohas.
Kui leidsid, et pakkumine võiks sulle sobida, siis küsi ka sõbrahinnaga pakkumist !
















